eXp UK says ..
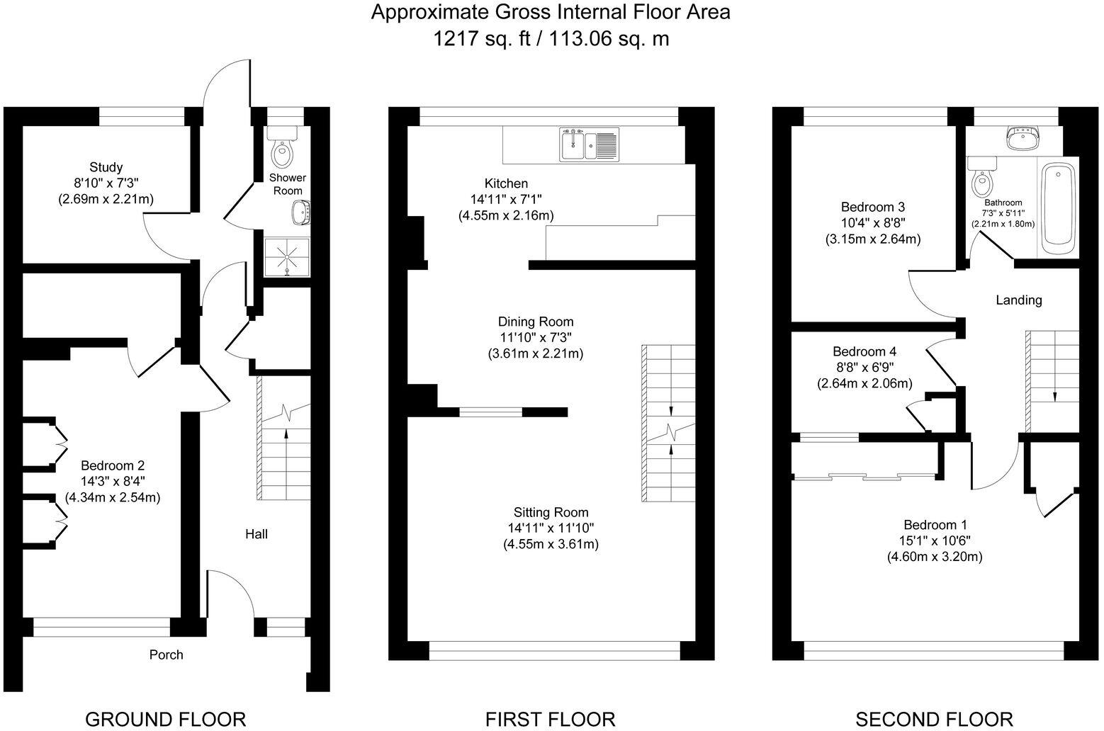
Chain-free and move-in ready, this spacious four-bedroom townhouse is tucked away in one of South Sutton’s most sought-after neighbourhoods. Set over three floors, it offers flexible living ideal for families or professionals – from a converted garage perfect for a home office or g...
Property Oracle says ..
Therefore, we give this property 7 / 10. *Disclaimer: This is our option and does constitute a recommendation or financial advice. Do your own research. *
- Price
- 6
- Condition
- 8
- Location
- 8
- Land
- 7
- Bedrooms
- 4
- Bathrooms
- 2
- Sqft (est)
- 905.21
The heatmap indicates the level of crime in the area. The color of the heatmap indicates the crime severity and recency.
Metrics Year-on-Year
- Average area value
- 322,857.00 £Decreased by 19.08 %
- Est sale value
- 477,045.67 £Increased by 10.48 %
- Average area rental value
- 1,596.00 £/moDecreased by 5.17 %
- Est letting value
- 1,810.42 £/moUnchanged by 0.00 %
- Est rental Yield
- 5.93 %Increased by 17.19 %
- Crime Rate
- 6.00 %Unchanged by 0.00 %
from 398,961.00 £
from 431,785.17 £
from 1,683.00 £/mo
from 1,810.42 £/mo
from 5.06 %
from 6.00 %
Agent Activity
eXp UK created the listing.
Nearby Schools
| Name | Type | Ofsted | Distance |
|---|---|---|---|
| Eagle House School Sutton | Other Independent Special School | Good | 0.22 KM |
| Overton Grange School | Academy Converter | Good | 0.38 KM |
| Devonshire Primary School | Community School | Good | 0.39 KM |
| Orchard Hill College Of Further Education | Special Post 16 Institution | Outstanding | 0.66 KM |
| Harris Academy Sutton | Free Schools | 0.76 KM |
Images
Nearby Streets
| Name | Average Price | Average Sqft | Distance |
|---|---|---|---|
| Felbridge Close | £ 0 | 0 | 0.00 KM |
| Mulgrave Road | £ 215,000 | 0 | 0.00 KM |
| Wells Place | £ 250,000 | 0 | 0.00 KM |
| The Causeway | £ 0 | 0 | 0.00 KM |
| Bramble Acres Close | £ 0 | 0 | 0.00 KM |
Nearby Transport
| Name | NLC | TLC | Distance |
|---|---|---|---|
| Sutton | 5385 | SUO | 0.65 KM |
| Belmont | 5350 | BLM | 1.30 KM |
| West Sutton | 5293 | WSU | 1.87 KM |
| Cheam | 5352 | CHE | 2.33 KM |
| Sutton Common | 5436 | SUC | 2.35 KM |
Nearby Listings
| Address | Price | Type | Score | Distance |
|---|---|---|---|---|
| South Sutton, Surrey | £ 550,000 | BUY | 7 / 10 | 0.00 KM |
| Bonchurch Close, Sutton, SM2 | £ 350,000 | BUY | 6 / 10 | 0.09 KM |
| Bonchurch Close, Sutton, Surrey, SM2 | £ 249,950 | BUY | 6 / 10 | 0.11 KM |
| Bonchurch Close, Sutton, SM2 | £ 240,000 | BUY | 7 / 10 | 0.12 KM |
| Blackbush Close, Sutton, Surrey | £ 214,500 | BUY | Unknown | 0.12 KM |
Nearby Properties
| Address | Price | Distance |
|---|---|---|
| 42 Effingham Close | £ 238,500 | 0.01 KM |
| 44 Effingham Close | £ 510,000 | 0.01 KM |
| 24 Effingham Close | £ 159,950 | 0.01 KM |
| 4 Effingham Close | £ 600,000 | 0.01 KM |
| 10 Effingham Close | £ 715,000 | 0.01 KM |