The Old Library, Cheltenham Road, Bristol
By Ocean
£ 325,000
Reviews
3 out of 5 stars
Ocean says ..
This elegant urban development is designed to offer the perfect blend of contemporary living and classic charm.
Property Oracle says ..
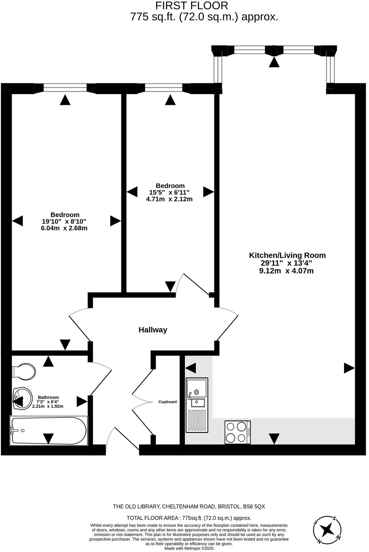
The property is a 2-bedroom flat located in Cotham, Bristol. The area benefits from its proximity to excellent schools such as Montpelier High School (Outstanding Ofsted rating) and The Dolphin School (Good Ofsted rating), both within a short distance. The location also offers convenient access to public transportation with several train stations within a reasonable distance. The flat itself appears to be in good condition, modern and well-maintained based on the provided images. While the plot size is relatively small for a property in this area, the internal space is well-utilized. The list price of £325,000 is slightly below the average price for the area (£533,726), but the average property size is significantly larger (1089 sqft vs 675 sqft). Considering the smaller size and lack of outdoor space, the price may be reasonable for a modern flat in a desirable location.
Therefore, we give this property 7 / 10. *Disclaimer: This is our option and does constitute a recommendation or financial advice. Do your own research. *
- Price
- 7
- Condition
- 9
- Location
- 9
- Land
- 3
- Bedrooms
- 2
- Bathrooms
- 1
- Sqft (est)
- 675.16
- Lot (est)
- 775.00
The heatmap indicates the level of crime in the area. The color of the heatmap indicates the crime severity and recency.
Metrics Year-on-Year
- Average area value
- 533,333.00 £Increased by 2.35 %
- Est sale value
- 221,452.48 £Decreased by 37.28 %
- Average area rental value
- 1,689.00 £/moDecreased by 10.11 %
- Est letting value
- 675.16 £/moUnchanged by 0.00 %
- Est rental Yield
- 3.80 %Decreased by 12.24 %
- Crime Rate
- 5.00 %Unchanged by 0.00 %
Agent Activity
Ocean created the listing.
Nearby Schools
| Name | Type | Ofsted | Distance |
|---|---|---|---|
| Montpelier High School | Academy Sponsor Led | Outstanding | 0.09 KM |
| The Dolphin School | Academy Sponsor Led | Good | 0.27 KM |
| Cotham Gardens Primary School | Academy Converter | Good | 0.73 KM |
| North Bristol Post 16 Centre | Sixth Form Centres | 0.81 KM | |
| St Pauls Nursery School & Children'S Centre | Local Authority Nursery School | Outstanding | 1.02 KM |
Images
Nearby Streets
| Name | Average Price | Average Sqft | Distance |
|---|---|---|---|
| Arley Cottages | £ 375,000 | 0 | 0.00 KM |
| Brookfield Road | £ 0 | 0 | 0.00 KM |
| Brookfield Lane | £ 0 | 0 | 0.00 KM |
| Armidale Avenue | £ 260,000 | 0 | 0.00 KM |
| Zetland Road | £ 0 | 0 | 0.00 KM |
Nearby Transport
| Name | NLC | TLC | Distance |
|---|---|---|---|
| Montpelier | 3203 | MTP | 0.38 KM |
| Redland | 3247 | RDA | 0.79 KM |
| Clifton Down | 3202 | CFN | 2.21 KM |
| Bristol Temple Meads | 3231 | BRI | 2.39 KM |
| Stapleton Road | 3250 | SRD | 2.85 KM |
Nearby Listings
| Address | Price | Type | Score | Distance |
|---|---|---|---|---|
| The Old Library, Cheltenham Road, Bristol, Bristol | £ 325,000 | BUY | 8 / 10 | 0.00 KM |
| The Old Library, Cheltenham Road, Bristol | £ 325,000 | BUY | 7 / 10 | 0.00 KM |
| The Od Library, Montpelier | £ 275,000 | BUY | 7 / 10 | 0.01 KM |
| The Old Library, Cheltenham Road, Bristol, BS6 | £ 230,000 | BUY | 6 / 10 | 0.01 KM |
| Cheltenham Road, The Old Library Cheltenham Road, BS6 | £ 335,000 | BUY | 6 / 10 | 0.02 KM |
Nearby Properties
| Address | Price | Distance |
|---|---|---|
| 197 Cheltenham Road | £ 73,500 | 0.04 KM |
| 2 Winsley Road | £ 119,000 | 0.07 KM |
| 12 Winsley Road | £ 79,500 | 0.07 KM |
| 4 Winsley Road | £ 130,000 | 0.07 KM |
| 5 Winsley Road | £ 110,000 | 0.07 KM |