Dyrham Road, Bristol
HO

Dyrham Road, Bristol

By House + Co Property

£ 400,000

Reviews

3 out of 5 stars

House + Co Property says ..

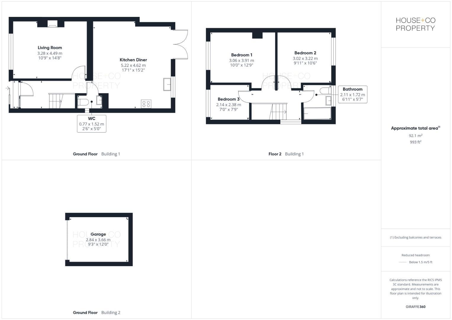
Welcome to this lovely 1960's three bed semi-detached home situated on Dyrham Road and only a stones throw away from the Kingswood High Street. With lovely views, off street parking and a garage, this property is ideal for first time buyers and families alike! Comprising of inner hallwa...

Property Oracle says ..

Therefore, we give this property 7 / 10. *Disclaimer: This is our option and does constitute a recommendation or financial advice. Do your own research. *

Price
7
Condition
8
Location
8
Land
7
Bedrooms
3
Bathrooms
2
Sqft (est)
991.36

The heatmap indicates the level of crime in the area. The color of the heatmap indicates the crime severity and recency.

Metrics Year-on-Year

Average area value
286,661.00 £
Decreased by 17.29 %
from 346,601.00 £
Est sale value
362,837.76 £
Increased by 6.71 %
from 340,036.48 £
Average area rental value
1,263.00 £/mo
Decreased by 11.86 %
from 1,433.00 £/mo
Est letting value
991.36 £/mo
Unchanged by 0.00 %
from 991.36 £/mo
Est rental Yield
5.29 %
Increased by 6.65 %
from 4.96 %
Crime Rate
3.00 %
Unchanged by 0.00 %
from 3.00 %

Agent Activity

  • House + Co Property created the listing.

Nearby Schools

NameTypeOfstedDistance
New Horizons Learning CentreCommunity Special SchoolGood0.70 KM
Courtney Primary SchoolCommunity SchoolGood0.85 KM
King'S Oak AcademyAcademy Sponsor LedGood0.86 KM
The Park Primary SchoolCommunity SchoolGood0.95 KM
Kingswood Children'S CentreChildren's Centre0.95 KM

Images

IMG_1517.jpg CAM01576G0-PR0308-STILL005.jpg CAM01576G0-PR0308-STILL011.jpg CAM01576G0-PR0308-STILL028.jpg CAM01576G0-PR0308-STILL001.jpg CAM01576G0-PR0308-STILL022.jpg CAM01576G0-PR0308-STILL032.jpg CAM01576G0-PR0308-STILL040.jpg CAM01576G0-PR0308-STILL036.jpg IMG_1351.jpg IMG_1328.jpg CAM01576G0-PR0308-STILL008.jpg CAM01576G0-PR0308-STILL007.jpg CAM01576G0-PR0308-STILL016.jpg CAM01576G0-PR0308-STILL019.jpg CAM01576G0-PR0308-STILL017.jpg CAM01576G0-PR0308-STILL013.jpg CAM01576G0-PR0308-STILL012.jpg CAM01576G0-PR0308-STILL009.jpg CAM01576G0-PR0308-STILL021.jpg CAM01576G0-PR0308-STILL029.jpg CAM01576G0-PR0308-STILL030.jpg CAM01576G0-PR0308-STILL031.jpg CAM01576G0-PR0308-STILL004.jpg CAM01576G0-PR0308-STILL002.jpg CAM01576G0-PR0308-STILL025.jpg CAM01576G0-PR0308-STILL026.jpg CAM01576G0-PR0308-STILL023.jpg CAM01576G0-PR0308-STILL024.jpg CAM01576G0-PR0308-STILL027.jpg CAM01576G0-PR0308-STILL034.jpg CAM01576G0-PR0308-STILL035.jpg CAM01576G0-PR0308-STILL039.jpg CAM01576G0-PR0308-STILL037.jpg CAM01576G0-PR0308-STILL041.jpg CAM01576G0-PR0308-STILL042.jpg

Nearby Streets

NameAverage PriceAverage SqftDistance
Baxter Close £ 350,00000.00 KM
Walnut Close £ 290,00000.00 KM
Fairview Road £ 316,66700.00 KM
Walnut Lane £ 370,00000.00 KM
Woodstock Close £ 000.00 KM

Nearby Transport

NameNLCTLCDistance
Keynsham3237KYN4.94 KM
Bristol Parkway3230BPW7.97 KM
Lawrence Hill3225LWH8.01 KM
Stapleton Road3250SRD8.21 KM
Filton Abbey Wood3235FIT9.11 KM

Nearby Listings

AddressPriceTypeScoreDistance
Dyrham Road, Bristol £ 400,000BUY7 / 100.00 KM
Filwood House, Kingswood, Bristol £ 265,000BUY8 / 100.06 KM
Honey Hill Road, Kingswood, Bristol £ 319,950BUYUnknown0.13 KM
Honey Hill Road, Staple Hill, Bristol £ 319,950BUY7 / 100.13 KM
Hill Street, Kingswood, Bristol, BS15 £ 280,000BUY6 / 100.14 KM

Nearby Properties

AddressPriceDistance
36 Dyrham Road £ 270,0000.05 KM
42 Dyrham Road £ 405,0000.05 KM
20 Dyrham Road £ 230,0000.05 KM
4 Dyrham Road £ 190,0000.05 KM
18 Dyrham Road £ 305,0000.05 KM