Plot 9, The Pastures, Medburn, Newcastle Upon Tyne
By Finest Properties
£ 925,000
Reviews
3 out of 5 stars
Finest Properties says ..
An exceptional contemporary home on a generous plot, built to a high specification in the desirable hamlet of Medburn
Property Oracle says ..
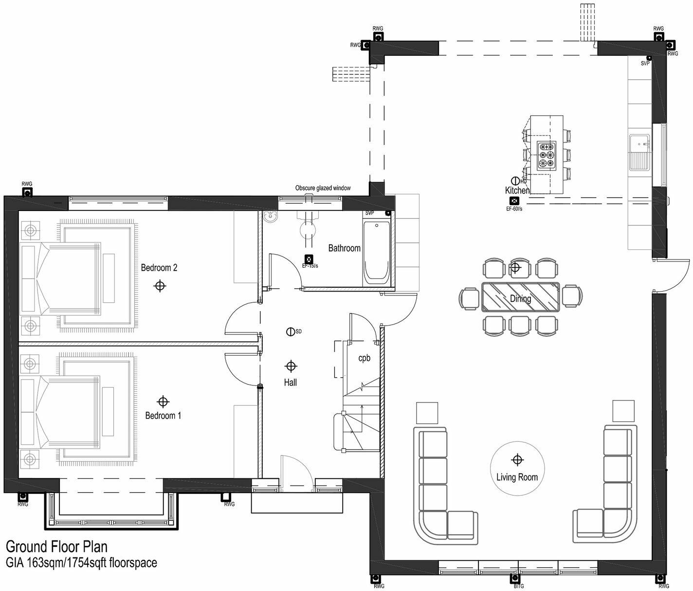
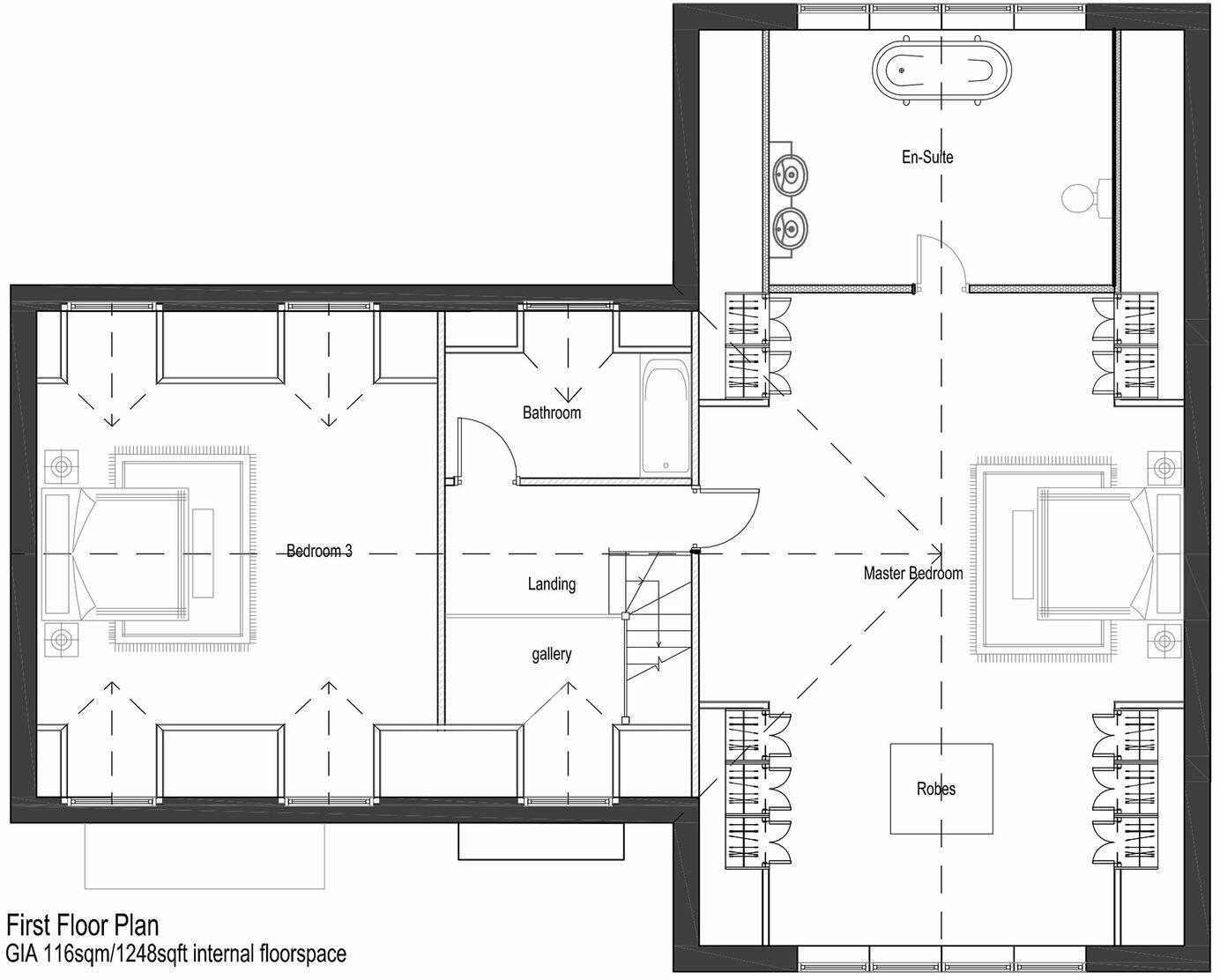
Based on the provided information, the property at Plot 9, The Pastures, Medburn appears to be a new build, 4 bedroom detached home with 2 bathrooms. The property is situated in Medburn, Northumberland, a seemingly desirable location given the high prices of nearby properties. The images suggest a modern and well-finished property, though this is based on artist impressions and not actual photographs of the completed build. The plot size of 1,754 sqft is relatively modest, but sufficient for a property of this size. The list price of £925,000 is difficult to assess without detailed comparable sales data for similar properties in the immediate vicinity. However, considering the surrounding properties and the apparent high quality of the build, the price may be reasonable. More information regarding the local market, including average price per square foot, would be needed to provide a more definitive assessment of the price.
Therefore, we give this property 7 / 10. *Disclaimer: This is our option and does constitute a recommendation or financial advice. Do your own research. *
- Price
- 7
- Condition
- 9
- Location
- 8
- Land
- 6
- Bedrooms
- 4
- Bathrooms
- 2
- Sqft (est)
- 1,054.00
- Lot (est)
- 1,754.00
The heatmap indicates the level of crime in the area. The color of the heatmap indicates the crime severity and recency.
Metrics Year-on-Year
- Average area value
- 625,000.00 £Increased by 9.15 %
- Est sale value
- 697,748.00 £Increased by 24.67 %
- Average area rental value
- 1,525.00 £/moIncreased by 1.26 %
- Est letting value
- 1,054.00 £/moUnchanged by 0.00 %
- Est rental Yield
- 2.93 %Decreased by 7.28 %
- Crime Rate
- 30.00 %Unchanged by 0.00 %
Agent Activity
Finest Properties created the listing.
Nearby Schools
| Name | Type | Ofsted | Distance |
|---|---|---|---|
| Darras Hall Primary School | Academy Converter | 3.37 KM | |
| Heddon-On-The-Wall, St Andrew'S Church Of England Primary School | Academy Converter | 3.69 KM | |
| Throckley Primary School | Foundation School | Outstanding | 4.97 KM |
| Ponteland Children'S Centre | Children's Centre Linked Site | 5.50 KM | |
| Ponteland Primary School | Academy Converter | 5.50 KM |
Images
Nearby Streets
| Name | Average Price | Average Sqft | Distance |
|---|---|---|---|
| Dalton Close | £ 0 | 0 | 0.00 KM |
| South Dissington Farm Cottages | £ 0 | 0 | 0.00 KM |
| The Crescent | £ 495,000 | 0 | 0.00 KM |
Nearby Transport
| Name | NLC | TLC | Distance |
|---|---|---|---|
| Wylam | 7514 | WYM | 6.55 KM |
Nearby Listings
| Address | Price | Type | Score | Distance |
|---|---|---|---|---|
| Plot 3, The Pastures, Medburn, Northumberland | £ 925,000 | BUY | 8 / 10 | 0.00 KM |
| Plot 8, The Pastures, Medburn, Northumberland | £ 925,000 | BUY | 7 / 10 | 0.00 KM |
| Plot 9, The Pastures, Medburn, Newcastle Upon Tyne | £ 925,000 | BUY | 7 / 10 | 0.00 KM |
| The Avenue,Medburn,Newcastle Upon Tyne,NE20 0JD | £ 1,395,000 | BUY | 8 / 10 | 0.02 KM |
| Medburn Lodge, Medburn, NE20 0JD | £ 950,000 | BUY | 7 / 10 | 0.02 KM |
Nearby Properties
| Address | Price | Distance |
|---|---|---|
| Beechwood | £ 175,000 | 0.03 KM |
| Medburn Lodge | £ 680,000 | 0.03 KM |
| Delaware House | £ 625,000 | 0.04 KM |
| Windyridge | £ 74,500 | 0.06 KM |
| Alderview | £ 695,000 | 0.06 KM |