FO
Wiverton Road, Sydenham, London, SE26
By Foxtons
£ 950,000
Reviews
3 out of 5 stars
Foxtons says ..
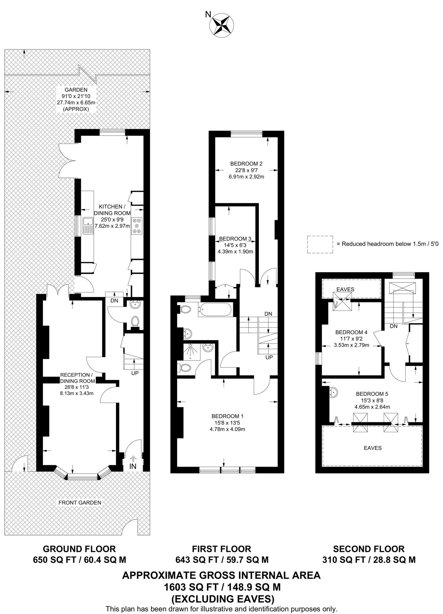
Boasting colourful interiors throughout, this superb 5 bedroom house benefits from a spacious double reception room, modern kitchen and dining, main bedroom with en-suite and a lovely garden.
Property Oracle says ..
Therefore, we give this property 7 / 10. *Disclaimer: This is our option and does constitute a recommendation or financial advice. Do your own research. *
- Price
- 6
- Condition
- 7
- Location
- 8
- Land
- 7
- Bedrooms
- 5
- Bathrooms
- 2
The heatmap indicates the level of crime in the area. The color of the heatmap indicates the crime severity and recency.
Metrics Year-on-Year
- Average area value
- 470,278.00 £Decreased by 9.27 %
- Average area rental value
- 1,755.00 £/moDecreased by 20.59 %
- Est rental Yield
- 4.48 %Decreased by 12.50 %
- Crime Rate
- 8.00 %Unchanged by 0.00 %
from 518,343.00 £
from 2,210.00 £/mo
from 5.12 %
from 8.00 %
Agent Activity
Foxtons created the listing.
Nearby Schools
| Name | Type | Ofsted | Distance |
|---|---|---|---|
| St John'S Church Of England Primary School | Academy Sponsor Led | Good | 0.65 KM |
| Harris Primary Academy Crystal Palace | Academy Sponsor Led | Good | 0.77 KM |
| Alexandra Junior School | Academy Converter | Good | 0.85 KM |
| Harris Primary Academy Kent House | Academy Sponsor Led | Outstanding | 1.11 KM |
| Community Vision Children And Family Centre | Children's Centre | 1.13 KM |
Images
Nearby Streets
| Name | Average Price | Average Sqft | Distance |
|---|---|---|---|
| Alexandra Road | £ 0 | 0 | 0.00 KM |
| High Street | £ 0 | 0 | 0.00 KM |
| London Bridge to Windmill Bridge Junction | £ 0 | 0 | 0.00 KM |
| Meaford Way | £ 285,000 | 0 | 0.00 KM |
| Evergreen Close | £ 0 | 0 | 0.00 KM |
Nearby Transport
| Name | NLC | TLC | Distance |
|---|---|---|---|
| Penge East | 5072 | PNE | 0.18 KM |
| Sydenham | 5437 | SYD | 0.71 KM |
| Penge West | 5378 | PNW | 0.86 KM |
| Kent House | 5080 | KTH | 1.35 KM |
| Anerley | 5397 | ANZ | 1.65 KM |
Nearby Listings
| Address | Price | Type | Score | Distance |
|---|---|---|---|---|
| Wiverton Road, Sydenham, London, SE26 | £ 950,000 | BUY | 7 / 10 | 0.00 KM |
| Wiverton Road, Sydenham, SE26 | £ 360,000 | BUY | Unknown | 0.03 KM |
| Wiverton Road, Sydenham, London, SE26 | £ 850,000 | BUY | Unknown | 0.03 KM |
| Wiverton Road, London | £ 800,000 | BUY | 6 / 10 | 0.04 KM |
| Wiverton Road, London | £ 400,000 | BUY | 6 / 10 | 0.04 KM |
Nearby Properties
| Address | Price | Distance |
|---|---|---|
| 32 Wiverton Road | £ 462,000 | 0.02 KM |
| 28 Wiverton Road | £ 815,000 | 0.03 KM |
| 46 Wiverton Road | £ 675,000 | 0.03 KM |
| 14 Wiverton Road | £ 970,000 | 0.03 KM |
| 14a Wiverton Road | £ 877,500 | 0.03 KM |