ED
Wilson Close, Thelwall, Warrington
By Edward Mellor Ltd
£ 350,000
Reviews
3 out of 5 stars
Edward Mellor Ltd says ..
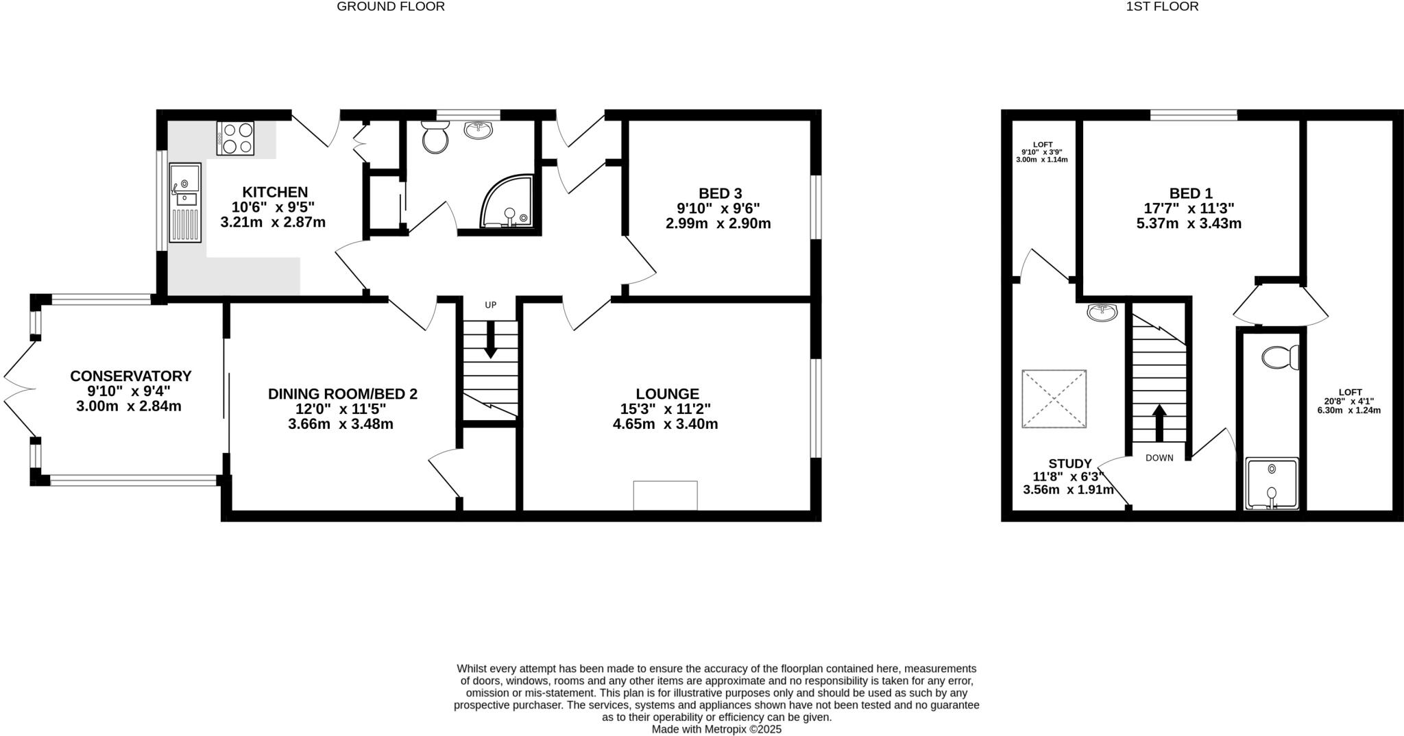
If you’re looking for a bungalow that’s not your average layout, this might be the one! Tucked away in a quiet, established cul-de-sac where homes rarely come up for sale, this semi-detached property has been thoughtfully enlarged to offer much more than meets the eye. It stands on one of the ...
Property Oracle says ..
Therefore, we give this property 6 / 10. *Disclaimer: This is our option and does constitute a recommendation or financial advice. Do your own research. *
- Price
- 6
- Condition
- 6
- Location
- 8
- Land
- 7
- Bedrooms
- 3
- Bathrooms
- 2
- Sqft (est)
- 983.39
The heatmap indicates the level of crime in the area. The color of the heatmap indicates the crime severity and recency.
Metrics Year-on-Year
- Average area value
- 415,495.00 £Increased by 10.96 %
- Est sale value
- 503,495.68 £Increased by 57.06 %
- Average area rental value
- 1,617.00 £/moIncreased by 34.75 %
- Est letting value
- 983.39 £/moUnchanged by 0.00 %
- Est rental Yield
- 4.67 %Increased by 21.30 %
- Crime Rate
- 6.00 %Unchanged by 0.00 %
from 374,440.00 £
from 320,585.14 £
from 1,200.00 £/mo
from 983.39 £/mo
from 3.85 %
from 6.00 %
Agent Activity
Edward Mellor Ltd created the listing.
Nearby Schools
| Name | Type | Ofsted | Distance |
|---|---|---|---|
| Thelwall Community Junior School | Community School | Good | 0.46 KM |
| Thelwall Infant School | Academy Converter | 0.81 KM | |
| Bradshaw Community Primary School | Community School | Good | 1.26 KM |
| Chaigeley School | Non-maintained Special School | Good | 1.42 KM |
| Grappenhall St Wilfrid'S Cofe Primary School | Voluntary Aided School | Good | 1.65 KM |
Images
Nearby Streets
| Name | Average Price | Average Sqft | Distance |
|---|---|---|---|
| Trans-Pennine Trail | £ 475,000 | 0 | 0.00 KM |
| All Saint's Drive | £ 0 | 0 | 0.00 KM |
| Parry Drive | £ 0 | 0 | 0.00 KM |
| Woodford Close | £ 0 | 0 | 0.00 KM |
| Gately Close | £ 799,950 | 0 | 0.00 KM |
Nearby Transport
| Name | NLC | TLC | Distance |
|---|---|---|---|
| Birchwood | 2304 | BWD | 3.73 KM |
| Padgate | 2387 | PDG | 3.91 KM |
| Warrington Central | 2390 | WAC | 6.81 KM |
| Warrington Bank Quay | 2384 | WBQ | 7.73 KM |
| Glazebrook | 2301 | GLZ | 9.71 KM |
Nearby Listings
| Address | Price | Type | Score | Distance |
|---|---|---|---|---|
| Wilson Close, Thelwall, Warrington | £ 350,000 | BUY | 6 / 10 | 0.00 KM |
| Barley Road, Thelwall | £ 370,000 | BUY | Unknown | 0.04 KM |
| Wilson Close, Thelwall | £ 350,000 | BUY | Unknown | 0.06 KM |
| Stanton Road, Thelwall, Warrington, WA4 2EY | £ 475,000 | BUY | 7 / 10 | 0.07 KM |
| Stanton Road WA4 | £ 325,000 | BUY | Unknown | 0.07 KM |
Nearby Properties
| Address | Price | Distance |
|---|---|---|
| 20 Wilson Close | £ 162,500 | 0.10 KM |
| 9 Wilson Close | £ 180,000 | 0.10 KM |
| 5 Wilson Close | £ 280,000 | 0.10 KM |
| 6 Wilson Close | £ 240,000 | 0.10 KM |
| 10 Wilson Close | £ 215,000 | 0.10 KM |