RO
North Mill Apartments, Lovelace Street, E8
By Rooted
£ 625,000
Reviews
3 out of 5 stars
Rooted says ..
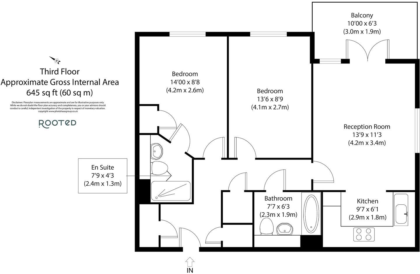
*Guide Price £625,000-£650,000* Located on the third floor of this desirable modern development, is this exceptional two double bedroom apartment. Beautifully presented throughout and benefiting from a secure underground parking space, this property comprises; a...
Property Oracle says ..
Therefore, we give this property 6 / 10. *Disclaimer: This is our option and does constitute a recommendation or financial advice. Do your own research. *
- Price
- 5
- Condition
- 8
- Location
- 8
- Land
- 3
- Bedrooms
- 2
- Bathrooms
- 2
- Sqft (est)
- 597.78
The heatmap indicates the level of crime in the area. The color of the heatmap indicates the crime severity and recency.
Metrics Year-on-Year
- Average area value
- 1,266,250.00 £Increased by 109.04 %
- Est sale value
- 521,861.94 £Increased by 4.30 %
- Average area rental value
- 3,273.00 £/moIncreased by 14.32 %
- Est letting value
- 1,195.56 £/moDecreased by 33.33 %
- Est rental Yield
- 3.10 %Decreased by 45.33 %
- Crime Rate
- 5.00 %Unchanged by 0.00 %
from 605,736.00 £
from 500,341.86 £
from 2,863.00 £/mo
from 1,793.34 £/mo
from 5.67 %
from 5.00 %
Agent Activity
Rooted created the listing.
Nearby Schools
| Name | Type | Ofsted | Distance |
|---|---|---|---|
| Queensbridge Primary School | Community School | Outstanding | 0.17 KM |
| The Bridge Academy | Academy Sponsor Led | Good | 0.29 KM |
| Mapledene Children'S Centre | Children's Centre | 0.44 KM | |
| Waterside Academy | Free Schools | 0.47 KM | |
| Randal Cremer Primary School | Community School | Good | 0.58 KM |
Images
Nearby Streets
| Name | Average Price | Average Sqft | Distance |
|---|---|---|---|
| Nursery Lane | £ 0 | 0 | 0.00 KM |
| Boat Lane | £ 440,000 | 0 | 0.00 KM |
| Bryant Street | £ 0 | 0 | 0.00 KM |
| Holly Street | £ 0 | 0 | 0.00 KM |
| Richmond Road | £ 0 | 0 | 0.00 KM |
Nearby Transport
| Name | NLC | TLC | Distance |
|---|---|---|---|
| Haggerston | 1022 | HGG | 0.32 KM |
| Hoxton | 1023 | HOX | 0.81 KM |
| Dalston Junction | 1443 | DLJ | 0.92 KM |
| Dalston Kingsland | 1429 | DLK | 1.16 KM |
| Shoreditch High Street | 1024 | SDC | 1.67 KM |
Nearby Listings
| Address | Price | Type | Score | Distance |
|---|---|---|---|---|
| North Mill Apartments, Lovelace Street, E8 | £ 625,000 | BUY | 6 / 10 | 0.00 KM |
| Lovelace Street, London, E8 | £ 450,000 | BUY | Unknown | 0.00 KM |
| North Mill Apartments, Lovelace Street, Hackney, E8 | £ 600,000 | BUY | 6 / 10 | 0.00 KM |
| North Mill Apartments, Lovelace Street, Hackney, E8 | £ 625,000 | BUY | 7 / 10 | 0.00 KM |
| North Mill Apartments, Hackney, London, E8 | £ 475,000 | BUY | 6 / 10 | 0.00 KM |
Nearby Properties
| Address | Price | Distance |
|---|---|---|
| 210a Haggerston Road | £ 328,000 | 0.14 KM |
| 33 Clarissa Street | £ 358,000 | 0.15 KM |
| 59 Clarissa Street | £ 320,000 | 0.15 KM |
| 21 Clarissa Street | £ 875,000 | 0.15 KM |
| 71 Clarissa Street | £ 220,000 | 0.15 KM |