Stoughton Road, Oadby, Leicester
Phillips George Estate Agents logo

Stoughton Road, Oadby, Leicester

By Phillips George Estate Agents

£ 475,000

Reviews

4 out of 5 stars

Phillips George Estate Agents says ..

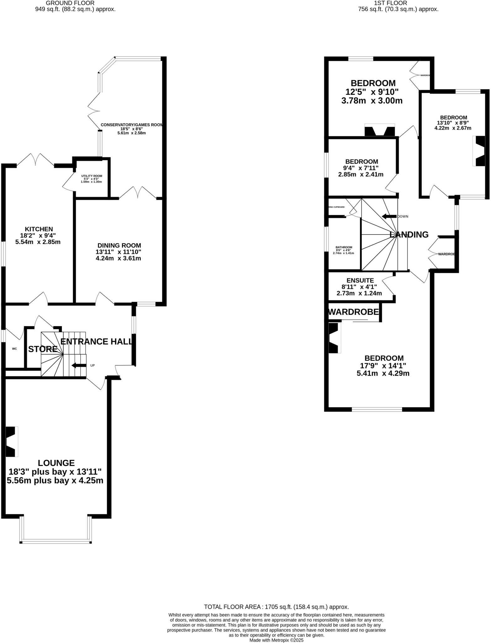
*** No Chain *** Immaculate 1920's semi detached family home on arguably one of the most sought after streets in Oadby. The property has been lovingly maintained during the sellers ownership, retaining original features. The accommodation comprises entrance hall, lounge, dining room, conservatory...

Property Oracle says ..

Therefore, we give this property 8 / 10. *Disclaimer: This is our option and does constitute a recommendation or financial advice. Do your own research. *

Price
9
Condition
8
Location
8
Land
7
Bedrooms
4
Bathrooms
2
Sqft (est)
1,151.85

The heatmap indicates the level of crime in the area. The color of the heatmap indicates the crime severity and recency.

Metrics Year-on-Year

Average area value
413,725.00 £
Decreased by 24.83 %
from 550,396.00 £
Est sale value
696,869.25 £
Increased by 87.31 %
from 372,047.55 £
Average area rental value
642.00 £/mo
Decreased by 62.06 %
from 1,692.00 £/mo
Est letting value
0.00 £/mo
from 0.00 £/mo
Est rental Yield
1.86 %
Decreased by 49.59 %
from 3.69 %
Crime Rate
2.00 %
Unchanged by 0.00 %
from 2.00 %

Agent Activity

  • Phillips George Estate Agents created the listing.

Nearby Schools

NameTypeOfstedDistance
Launde Primary SchoolAcademy Converter0.41 KM
Langmoor Primary School OadbyAcademy Converter1.07 KM
Brocks Hill Primary SchoolAcademy Converter1.60 KM
Gartree High SchoolAcademy ConverterOutstanding1.66 KM
Glenmere Community Primary SchoolAcademy ConverterOutstanding1.74 KM

Images

Untitled-2493 2-m... Untitled-2521 1-m... Untitled-2520-min Untitled-2499-min Untitled-2515 1-m... Untitled-2516-min Untitled-2508-min Untitled-2518-min Untitled-2504 1-m... Untitled-2503 1-m... Untitled-2502-min Untitled-2505-min Untitled-2501-min Untitled-2498-min Untitled-2497-min Untitled-2512-min Untitled-2517-min Untitled-2519-min Untitled-2507 1-m... Untitled-2509 1-m... Untitled-2514-min Untitled-2506-min Untitled-2494-min Untitled-2495-min Untitled-2513-min Untitled-2492-min

Nearby Streets

NameAverage PriceAverage SqftDistance
North Street £ 000.00 KM
Hawthorn Grove £ 000.00 KM
Albion Court £ 000.00 KM
Hornbeam Close £ 000.00 KM
Meadow View £ 000.00 KM

Nearby Transport

NameNLCTLCDistance
Leicester1947LEI5.95 KM
South Wigston1949SWS6.30 KM

Nearby Listings

AddressPriceTypeScoreDistance
Stoughton Road, Oadby, Leicester £ 475,000BUY8 / 100.00 KM
Stoughton Road, Oadby £ 550,000BUY7 / 100.04 KM
Stoughton Road, Oadby, Leicester, LE2 £ 515,000BUY6 / 100.09 KM
Parkland Drive, Oadby, LE2 £ 390,000BUY8 / 100.13 KM
Harborough Road, Oadby £ 475,000BUY8 / 100.14 KM

Nearby Properties

AddressPriceDistance
75 Stoughton Road £ 207,5000.07 KM
63 Stoughton Road £ 232,0000.07 KM
83 Stoughton Road £ 475,0000.07 KM
61 Stoughton Road £ 240,0000.07 KM
85 Stoughton Road £ 510,0000.07 KM