AB Properties says ..
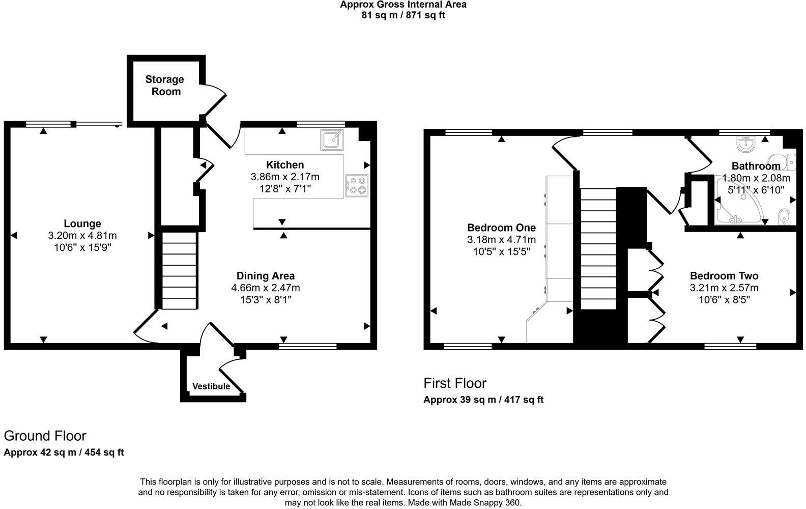
Well presented two bedroom terraced villa situated within a popular residential area in Carluke. The property boasts generous accommodation arranged over two levels with the ground floor comprising of a welcoming entrance vestibule, a lounge with patio doors to the rear garden, and ...
Property Oracle says ..
This is a two-bedroom terraced house in Carluke, South Lanarkshire. The property has a bathroom and a garden. The interior design is somewhat dated and may benefit from modernisation. Carluke train station is 2.67 KM away. The property is listed for £89,995, which seems reasonable given its size and location. The average price per square foot in the area is £509.
Therefore, we give this property 6 / 10. *Disclaimer: This is our option and does constitute a recommendation or financial advice. Do your own research. *
- Price
- 7
- Condition
- 6
- Location
- 6
- Land
- 7
- Bedrooms
- 2
- Bathrooms
- 1
- Sqft (est)
- 670.05
The heatmap indicates the level of crime in the area. The color of the heatmap indicates the crime severity and recency.
Metrics Year-on-Year
- Average area value
- 300,000.00 £Decreased by 54.85 %
- Est sale value
- 341,055.45 £Increased by 92.08 %
- Average area rental value
- 1,007.00 £/moDecreased by 25.41 %
- Est letting value
- 670.05 £/mo
- Est rental Yield
- 4.03 %Increased by 65.16 %
- Crime Rate
- 0.00 %
Agent Activity
AB Properties created the listing.
Images
Nearby Streets
| Name | Average Price | Average Sqft | Distance |
|---|---|---|---|
| Deeside Drive | £ 369,995 | 0 | 0.00 KM |
| Braemar Crescent | £ 187,500 | 0 | 0.00 KM |
| Stonedyke Crescent | £ 0 | 0 | 0.00 KM |
| Waterlands Gardens | £ 0 | 0 | 0.00 KM |
| Stonedyke Road | £ 350,000 | 0 | 0.00 KM |
Nearby Transport
| Name | NLC | TLC | Distance |
|---|---|---|---|
| Carluke | 9702 | CLU | 2.67 KM |
| Hartwood | 9246 | HTW | 7.78 KM |
| Shotts | 9739 | SHS | 9.06 KM |
| Lanark | 9710 | LNK | 9.71 KM |
Nearby Listings
| Address | Price | Type | Score | Distance |
|---|---|---|---|---|
| Gair Crescent, Carluke | £ 89,995 | BUY | 6 / 10 | 0.00 KM |
| 14 Stonedyke Road Carluke ML8 4BQ | £ 285,000 | BUY | 7 / 10 | 0.23 KM |
| Honeybank Crescent, Carluke, South Lanarkshire, ML8 | £ 95,000 | BUY | 7 / 10 | 0.44 KM |
| Honeybank Crescent, Carluke | £ 99,995 | BUY | 6 / 10 | 0.61 KM |
| Cairneymount Road, Carluke | £ 78,000 | BUY | 7 / 10 | 0.71 KM |