TH
Halewood, Bracknell, RG12
By The Property Explorer
£ 365,000
Reviews
3 out of 5 stars
The Property Explorer says ..
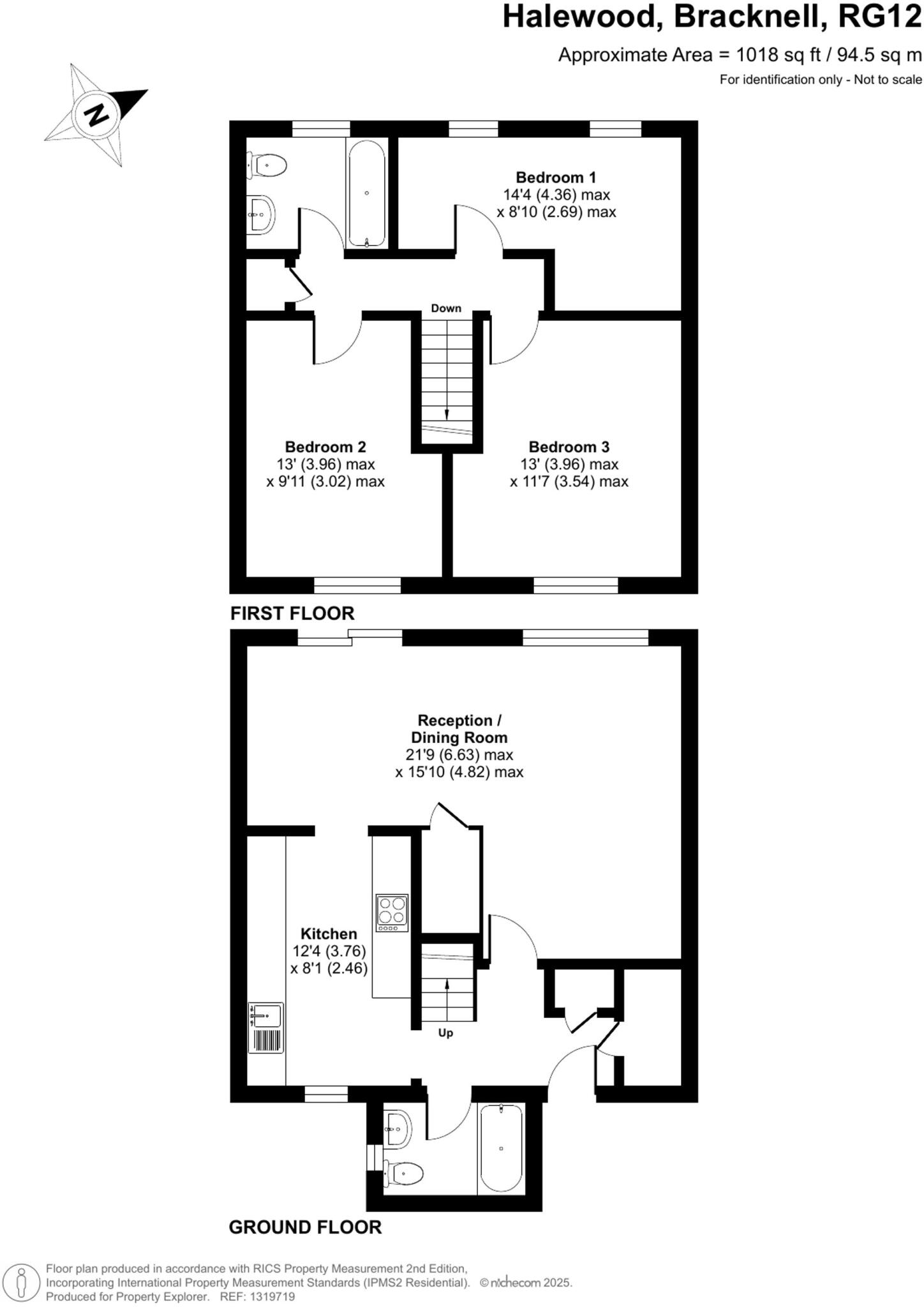
LAUNCH DAY SATURDAY 2nd AUGUST 2025 11am 3-bed terraced house with 2 reception rooms, ideal for families or investors. Fully fitted kitchen, private back garden, gas central heating, and UPVC windows. Sold with tenants, maintained in good order, close to Bracknell amenities. Viewings recommended.
Property Oracle says ..
Therefore, we give this property 6 / 10. *Disclaimer: This is our option and does constitute a recommendation or financial advice. Do your own research. *
- Price
- 6
- Condition
- 6
- Location
- 7
- Land
- 7
- Bedrooms
- 3
- Bathrooms
- 1
- Sqft (est)
- 1,018.00
The heatmap indicates the level of crime in the area. The color of the heatmap indicates the crime severity and recency.
Metrics Year-on-Year
- Average area value
- 217,143.00 £Decreased by 10.70 %
- Est sale value
- 250,428.00 £Decreased by 12.14 %
- Average area rental value
- 1,267.00 £/moIncreased by 25.57 %
- Est letting value
- 1,018.00 £/moUnchanged by 0.00 %
- Est rental Yield
- 7.00 %Increased by 40.56 %
- Crime Rate
- 31.00 %Unchanged by 0.00 %
from 243,173.00 £
from 285,040.00 £
from 1,009.00 £/mo
from 1,018.00 £/mo
from 4.98 %
from 31.00 %
Agent Activity
The Property Explorer created the listing.
Nearby Schools
| Name | Type | Ofsted | Distance |
|---|---|---|---|
| Oaks And Hollies Children'S Centre | Children's Centre | 0.41 KM | |
| The Hollies Children'S Centre | Children's Centre Linked Site | 0.41 KM | |
| Great Hollands Primary School | Academy Sponsor Led | 0.43 KM | |
| St Margaret Clitherow Catholic Primary School, Bracknell | Academy Converter | Good | 0.80 KM |
| The Pines School | Community School | Requires improvement | 0.86 KM |
Images
Nearby Streets
| Name | Average Price | Average Sqft | Distance |
|---|---|---|---|
| Great Hollands Road | £ 340,000 | 0 | 0.00 KM |
| Aysgarth | £ 0 | 0 | 0.00 KM |
| Ringmead | £ 0 | 0 | 0.00 KM |
| Dry Pond Ride | £ 0 | 0 | 0.00 KM |
| Redwing Place | £ 0 | 0 | 0.00 KM |
Nearby Transport
| Name | NLC | TLC | Distance |
|---|---|---|---|
| Bracknell | 5693 | BCE | 2.72 KM |
| Martins Heron | 5692 | MAO | 5.22 KM |
| Crowthorne | 5628 | CRN | 6.38 KM |
| Sandhurst (Berks) | 5646 | SND | 6.76 KM |
| Blackwater | 5625 | BAW | 7.35 KM |
Nearby Listings
| Address | Price | Type | Score | Distance |
|---|---|---|---|---|
| Halewood, Bracknell, RG12 | £ 365,000 | BUY | 6 / 10 | 0.00 KM |
| Halewood, Bracknell, Bracknell Forest, RG12 | £ 360,000 | BUY | 6 / 10 | 0.05 KM |
| 115 Holbeck, Bracknell, Berkshire, RG12 8XF | £ 235,000 | BUY | 5 / 10 | 0.08 KM |
| Holbeck, Bracknell, Berkshire, RG12 | £ 390,000 | BUY | 6 / 10 | 0.09 KM |
| Holbeck, Bracknell | £ 360,000 | BUY | 6 / 10 | 0.09 KM |
Nearby Properties
| Address | Price | Distance |
|---|---|---|
| 14 Halewood | £ 171,000 | 0.05 KM |
| 10 Halewood | £ 294,950 | 0.05 KM |
| 45 Halewood | £ 327,000 | 0.05 KM |
| 25 Halewood | £ 144,950 | 0.05 KM |
| 19 Halewood | £ 350,000 | 0.05 KM |