MA
The Colonnades, 34 Porchester Square
By Marsh & Parsons
£ 775,000
Reviews
4 out of 5 stars
Marsh & Parsons says ..
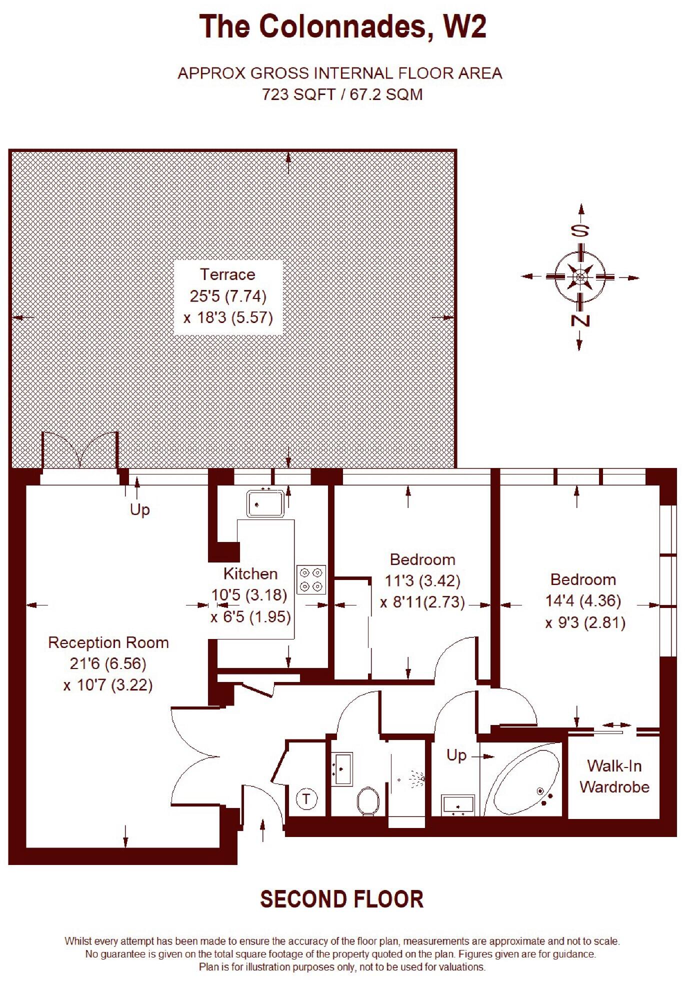
A wonderful opportunity to acquire a two bedroom second floor apartment with a large roof terrace within this popular portered building in the heart of Bayswater. Offering superb lateral space, the accommodation comprises a large reception room with excellent dining space and floor to ceiling win...
Property Oracle says ..
Therefore, we give this property 8 / 10. *Disclaimer: This is our option and does constitute a recommendation or financial advice. Do your own research. *
- Price
- 9
- Condition
- 8
- Location
- 9
- Land
- 7
- Bedrooms
- 2
- Bathrooms
- 2
- Sqft (est)
- 995.53
The heatmap indicates the level of crime in the area. The color of the heatmap indicates the crime severity and recency.
Metrics Year-on-Year
- Average area value
- 1,797,217.00 £Increased by 26.51 %
- Est sale value
- 1,743,173.03 £Increased by 40.64 %
- Average area rental value
- 3,101.00 £/moIncreased by 21.61 %
- Est letting value
- 2,986.59 £/moIncreased by 50.00 %
- Est rental Yield
- 2.07 %Decreased by 3.72 %
- Crime Rate
- 13.00 %Unchanged by 0.00 %
from 1,420,594.00 £
from 1,239,434.85 £
from 2,550.00 £/mo
from 1,991.06 £/mo
from 2.15 %
from 13.00 %
Agent Activity
Marsh & Parsons created the listing.
Nearby Schools
| Name | Type | Ofsted | Distance |
|---|---|---|---|
| Hallfield Primary School | Community School | Good | 0.40 KM |
| Queensway Children'S Centre | Children's Centre Linked Site | 0.43 KM | |
| Edward Wilson Primary School | Community School | Good | 0.49 KM |
| Westbourne Children'S Centre | Children's Centre Linked Site | 0.49 KM | |
| College Park School | Community Special School | Good | 0.54 KM |
Images
Nearby Streets
| Name | Average Price | Average Sqft | Distance |
|---|---|---|---|
| Porchester Walk | £ 0 | 0 | 0.00 KM |
| Pickering Mews | £ 750,000 | 0 | 0.00 KM |
| Cervantes Court | £ 0 | 0 | 0.00 KM |
| Kensington Gardens Square | £ 0 | 0 | 0.00 KM |
| Kensington Gardens Square | £ 0 | 0 | 0.00 KM |
Nearby Transport
| Name | NLC | TLC | Distance |
|---|---|---|---|
| Paddington | 3087 | PAD | 1.30 KM |
| Kilburn High Road | 1415 | KBN | 2.27 KM |
| Queens Park (London) | 1419 | QPW | 2.65 KM |
| Marylebone | 1475 | MYB | 2.82 KM |
| South Hampstead | 1451 | SOH | 2.86 KM |
Nearby Listings
| Address | Price | Type | Score | Distance |
|---|---|---|---|---|
| The Colonnades, 34 Porchester Square | £ 775,000 | BUY | 8 / 10 | 0.00 KM |
| Porchester Square, London | £ 600,000 | BUY | 7 / 10 | 0.00 KM |
| Porchester Square, Hyde Park | £ 450,000 | BUY | 6 / 10 | 0.00 KM |
| The Colonnades, 34 Porchester Square, London, W2 | £ 1,000,000 | BUY | Unknown | 0.01 KM |
| Porchester Square, Bayswater, London, W2 | £ 945,000 | BUY | 7 / 10 | 0.03 KM |
Nearby Properties
| Address | Price | Distance |
|---|---|---|
| 19e Porchester Square | £ 785,000 | 0.07 KM |
| 25a Porchester Square | £ 490,000 | 0.07 KM |
| 17e Porchester Square | £ 870,000 | 0.07 KM |
| 10e Porchester Square | £ 325,000 | 0.07 KM |
| 31d Porchester Square | £ 550,000 | 0.07 KM |