Watson Homes says ..
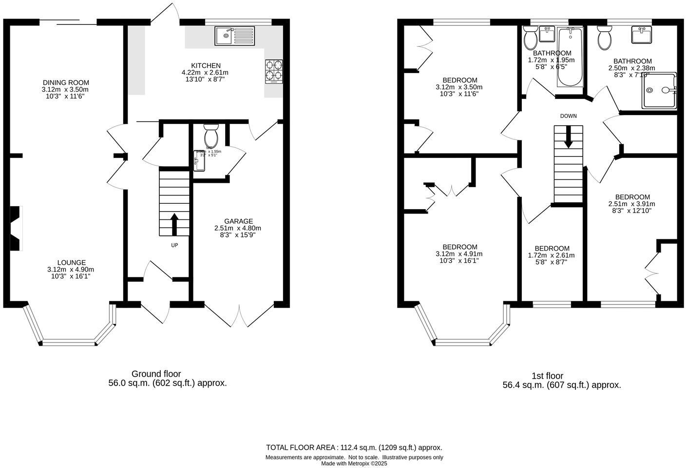
Nestled in the tranquil cul-de-sac of Barrington Road, Sutton, this family home offers a perfect blend of comfort and convenience. With four bedrooms, this property is ideal for families seeking a peaceful retreat from the hustle and bustle of everyday life. The home boasts two bright reception r...
Property Oracle says ..
Therefore, we give this property 6 / 10. *Disclaimer: This is our option and does constitute a recommendation or financial advice. Do your own research. *
- Price
- 6
- Condition
- 5
- Location
- 7
- Land
- 6
- Bedrooms
- 4
- Bathrooms
- 2
The heatmap indicates the level of crime in the area. The color of the heatmap indicates the crime severity and recency.
Metrics Year-on-Year
- Average area value
- 584,167.00 £Increased by 7.05 %
- Average area rental value
- 2,325.00 £/moIncreased by 3.33 %
- Est rental Yield
- 4.78 %Decreased by 3.43 %
- Crime Rate
- 2.00 %Unchanged by 0.00 %
from 545,689.00 £
from 2,250.00 £/mo
from 4.95 %
from 2.00 %
Agent Activity
Watson Homes created the listing.
Nearby Schools
| Name | Type | Ofsted | Distance |
|---|---|---|---|
| Glenthorne High School | Academy Converter | Outstanding | 0.37 KM |
| Westbourne Primary School | Academy Converter | 0.66 KM | |
| Abbey Primary School | Academy Converter | 0.82 KM | |
| Cheam Park Farm Primary Academy | Academy Converter | Outstanding | 1.26 KM |
| Brookfield Primary Academy | Academy Converter | Good | 1.29 KM |
Images
Nearby Streets
| Name | Average Price | Average Sqft | Distance |
|---|---|---|---|
| Anderson Close | £ 0 | 0 | 0.00 KM |
| Poplar Road | £ 606,250 | 0 | 0.00 KM |
| Anton Crescent | £ 0 | 0 | 0.00 KM |
| Wentworth Close | £ 615,000 | 0 | 0.00 KM |
| Love Lane | £ 403,333 | 0 | 0.00 KM |
Nearby Transport
| Name | NLC | TLC | Distance |
|---|---|---|---|
| Sutton Common | 5436 | SUC | 0.93 KM |
| St Helier | 5290 | SIH | 1.35 KM |
| West Sutton | 5293 | WSU | 1.46 KM |
| Morden South | 5291 | MDS | 1.98 KM |
| Sutton | 5385 | SUO | 2.56 KM |
Nearby Listings
| Address | Price | Type | Score | Distance |
|---|---|---|---|---|
| Barrington Road, Sutton | £ 650,000 | BUY | 6 / 10 | 0.00 KM |
| Barrington Road, Sutton | £ 600,000 | BUY | Unknown | 0.01 KM |
| Barrington Road, Sutton | £ 700,000 | BUY | 7 / 10 | 0.02 KM |
| Sherborne Road, Sutton | £ 525,000 | BUY | 6 / 10 | 0.12 KM |
| Sherborne Road, Sutton, SM3 | £ 500,000 | BUY | 6 / 10 | 0.13 KM |
Nearby Properties
| Address | Price | Distance |
|---|---|---|
| 58 Barrington Road | £ 99,950 | 0.05 KM |
| 104 Barrington Road | £ 425,000 | 0.05 KM |
| 82 Barrington Road | £ 279,950 | 0.05 KM |
| 98 Barrington Road | £ 336,000 | 0.05 KM |
| 100 Barrington Road | £ 210,000 | 0.05 KM |