Vicinity Homes says ..
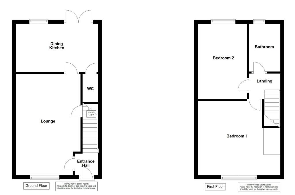
Vicinity Homes are delighted to offer to the market this immaculately presented, two double bedroom semi detached house situated within the popular Gleeson Homes Moorside Place Development which is located to the South East of Carlisle City Centre. The property is close to a range of local amenit...
Property Oracle says ..
This is a well-presented semi-detached property in a popular residential area of Carlisle. The house benefits from a modern interior, a good-sized garden, and proximity to local amenities and schools. The property is competitively priced, making it an attractive option for first-time buyers or small families. The location offers a balance of suburban living with convenient access to Carlisle city center and transport links.
Therefore, we give this property 7 / 10. *Disclaimer: This is our option and does constitute a recommendation or financial advice. Do your own research. *
- Price
- 8
- Condition
- 9
- Location
- 7
- Land
- 7
- Bedrooms
- 2
- Bathrooms
- 1
- Sqft (est)
- 1,000.00
The heatmap indicates the level of crime in the area. The color of the heatmap indicates the crime severity and recency.
Metrics Year-on-Year
- Average area value
- 282,389.00 £Decreased by 5.89 %
- Est sale value
- 410,000.00 £Increased by 16.48 %
- Average area rental value
- 1,083.00 £/moDecreased by 11.16 %
- Est letting value
- 1,000.00 £/moUnchanged by 0.00 %
- Est rental Yield
- 4.60 %Decreased by 5.74 %
- Crime Rate
- 5.00 %Unchanged by 0.00 %
Agent Activity
Vicinity Homes created the listing.
Nearby Schools
| Name | Type | Ofsted | Distance |
|---|---|---|---|
| Pennine Way Primary School | Community School | Good | 0.53 KM |
| St John Henry Newman Catholic School | Voluntary Aided School | Requires improvement | 1.01 KM |
| Scotby Cofe Primary School | Foundation School | Good | 1.34 KM |
| Inglewood Junior School | Community School | Good | 1.86 KM |
| Inglewood Infant School | Community School | Requires improvement | 2.01 KM |
Images
Nearby Streets
| Name | Average Price | Average Sqft | Distance |
|---|---|---|---|
| Oak Lane | £ 0 | 0 | 0.00 KM |
| Silverdale Road | £ 170,000 | 0 | 0.00 KM |
| Axon Drive | £ 282,500 | 0 | 0.00 KM |
| Pasture Walk | £ 0 | 0 | 0.00 KM |
| Sutton Court | £ 155,000 | 0 | 0.00 KM |
Nearby Transport
| Name | NLC | TLC | Distance |
|---|---|---|---|
| Carlisle | 2118 | CAR | 5.33 KM |
| Wetheral | 7572 | WRL | 6.02 KM |
Nearby Listings
| Address | Price | Type | Score | Distance |
|---|---|---|---|---|
| Moorside Drive, Carlisle | £ 150,000 | BUY | 7 / 10 | 0.00 KM |
| Moorside Drive, Carlisle | £ 199,950 | BUY | 8 / 10 | 0.04 KM |
| Moorside Drive, Carlisle, CA1 3UE | £ 210,000 | BUY | 7 / 10 | 0.10 KM |
| Moorside Drive, Carlton Grange, Carlisle, CA1 | £ 169,995 | BUY | 7 / 10 | 0.10 KM |
| Moorside Drive, Carlisle, CA1 | £ 210,000 | BUY | 7 / 10 | 0.10 KM |
Nearby Properties
| Address | Price | Distance |
|---|---|---|
| 106 Valley Drive | £ 124,500 | 0.09 KM |
| 55 Valley Drive | £ 116,000 | 0.09 KM |
| 95 Valley Drive | £ 129,000 | 0.09 KM |
| 146 Valley Drive | £ 119,950 | 0.09 KM |
| 56 Valley Drive | £ 183,950 | 0.09 KM |