Holme Meadow, Cumwhinton, Carlisle
By Vicinity Homes
£ 525,000
Reviews
3 out of 5 stars
Vicinity Homes says ..
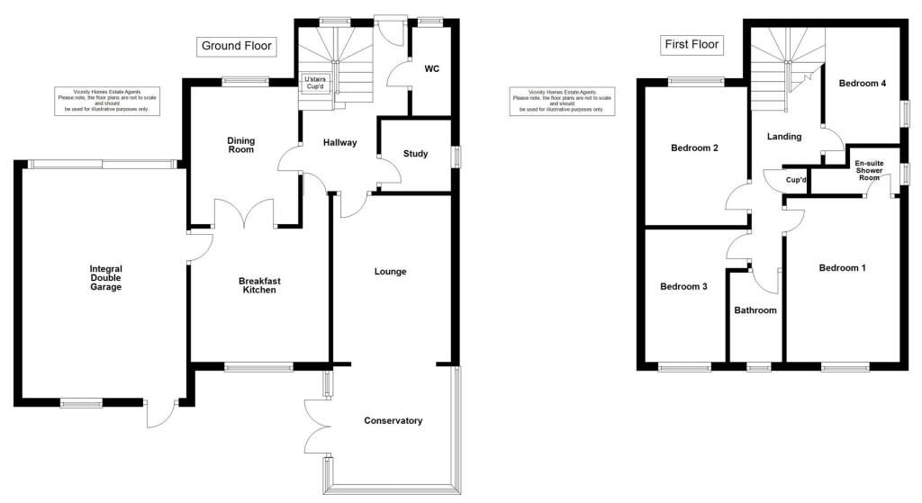
Vicinity Homes are delighted to offer to the market this immaculately presented and deceptively spacious, four double bedroom detached family home situated within the sought after village of Cumwhinton. The property is on a good sized plot in a cul-de-sac which has a small amount of executive det...
Property Oracle says ..
Holme Meadow is a detached property in Cumwhinton, Carlisle, featuring four bedrooms and two bathrooms. The house appears to be in good condition, with a modern interior and a well-maintained garden and patio. It benefits from a double garage and a study. The location offers a balance between rural living and accessibility, with a nearby school and transport links. The asking price is above the average for the area, but this may be justified by the property’s size, condition, and features.
Therefore, we give this property 7 / 10. *Disclaimer: This is our option and does constitute a recommendation or financial advice. Do your own research. *
- Price
- 6
- Condition
- 8
- Location
- 7
- Land
- 7
- Bedrooms
- 4
- Bathrooms
- 2
The heatmap indicates the level of crime in the area. The color of the heatmap indicates the crime severity and recency.
Metrics Year-on-Year
- Average area value
- 282,389.00 £Decreased by 5.89 %
- Average area rental value
- 1,083.00 £/moDecreased by 11.16 %
- Est rental Yield
- 4.60 %Decreased by 5.74 %
- Crime Rate
- 78.00 %Unchanged by 0.00 %
Agent Activity
Vicinity Homes created the listing.
Nearby Schools
| Name | Type | Ofsted | Distance |
|---|---|---|---|
| Cumwhinton School | Community School | Good | 0.78 KM |
| Scotby Cofe Primary School | Foundation School | Good | 3.31 KM |
| Pennine Way Primary School | Community School | Good | 3.78 KM |
| St John Henry Newman Catholic School | Voluntary Aided School | Requires improvement | 4.27 KM |
| Wreay Church Of England Primary School | Academy Converter | 4.50 KM |
Images
Nearby Streets
| Name | Average Price | Average Sqft | Distance |
|---|---|---|---|
| Reeds Way | £ 347,500 | 0 | 0.00 KM |
| Paddock Lane | £ 0 | 0 | 0.00 KM |
| Ridge Close | £ 595,000 | 0 | 0.00 KM |
Nearby Transport
| Name | NLC | TLC | Distance |
|---|---|---|---|
| Wetheral | 7572 | WRL | 3.68 KM |
| Carlisle | 2118 | CAR | 8.52 KM |
Nearby Listings
| Address | Price | Type | Score | Distance |
|---|---|---|---|---|
| Holme Meadow, Cumwhinton, Carlisle | £ 525,000 | BUY | 7 / 10 | 0.00 KM |
| Holme Meadow, Cumwhinton, Carlisle, CA4 8DR | £ 575,000 | BUY | 7 / 10 | 0.07 KM |
| Cherry Tree Lane, Cumwhinton, Carlisle, CA4 | £ 200,000 | BUY | 7 / 10 | 0.08 KM |
| Cherry Tree Lane, Cumwhinton, Carlisle, Cumbria, CA4 | £ 200,000 | BUY | 8 / 10 | 0.09 KM |
| Cumwhinton, Carlisle, CA4 8DH | £ 515,000 | BUY | 7 / 10 | 0.14 KM |
Nearby Properties
| Address | Price | Distance |
|---|---|---|
| 4 Beech Tree Farm | £ 120,000 | 0.11 KM |
| 2 Beech Tree Farm | £ 107,000 | 0.11 KM |
| 7 Beech Tree Farm | £ 373,000 | 0.11 KM |
| 13 Beech Tree Farm | £ 245,000 | 0.11 KM |
| 1 Beech Tree Farm | £ 150,000 | 0.11 KM |