HU
Queensholm Drive, Downend, Bristol, BS16 6LG
By Hunters
£ 525,000
Reviews
3 out of 5 stars
Hunters says ..
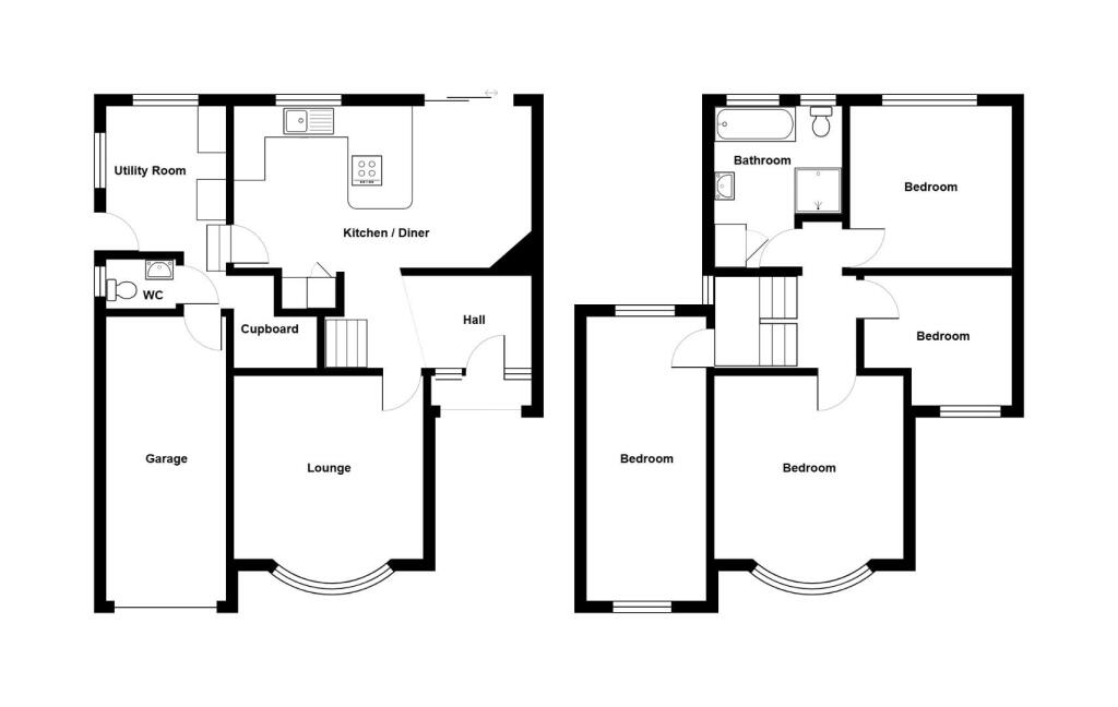
Offered for sale with no onward chain and located within the desirable Bromley Heath area this well presented extended semi-detached home. Comprising: lounge, kitchen/diner with newly fitted kitchen, utility, cloakroom, 4 bedrooms & family bathroom. Benefiting from having: driveway, garage and re...
Property Oracle says ..
Therefore, we give this property 7 / 10. *Disclaimer: This is our option and does constitute a recommendation or financial advice. Do your own research. *
- Price
- 7
- Condition
- 8
- Location
- 8
- Land
- 7
- Bedrooms
- 4
- Bathrooms
- 1
- Sqft (est)
- 1,315.00
The heatmap indicates the level of crime in the area. The color of the heatmap indicates the crime severity and recency.
Metrics Year-on-Year
- Average area value
- 407,556.00 £Decreased by 13.89 %
- Est sale value
- 497,070.00 £Decreased by 13.70 %
- Average area rental value
- 1,679.00 £/moIncreased by 16.92 %
- Est letting value
- 1,315.00 £/moUnchanged by 0.00 %
- Est rental Yield
- 4.94 %Increased by 35.71 %
- Crime Rate
- 0.00 %
from 473,314.00 £
from 575,970.00 £
from 1,436.00 £/mo
from 1,315.00 £/mo
from 3.64 %
from 0.00 %
Agent Activity
Hunters created the listing.
Nearby Schools
| Name | Type | Ofsted | Distance |
|---|---|---|---|
| Bromley Heath Infant School | Community School | Good | 0.31 KM |
| Bromley Heath Junior School | Community School | Outstanding | 0.33 KM |
| St Augustine Of Canterbury Catholic Primary School | Voluntary Aided School | Good | 1.01 KM |
| Hambrook Primary School | Community School | Good | 1.37 KM |
| Downend School | Academy Converter | Good | 1.45 KM |
Images
Nearby Streets
| Name | Average Price | Average Sqft | Distance |
|---|---|---|---|
| Church Lane | £ 0 | 0 | 0.00 KM |
| Charlotte Close | £ 525,000 | 0 | 0.00 KM |
| Windsor Court | £ 0 | 0 | 0.00 KM |
| Meadow Close | £ 462,500 | 0 | 0.00 KM |
| Cleeve Court | £ 0 | 0 | 0.00 KM |
Nearby Transport
| Name | NLC | TLC | Distance |
|---|---|---|---|
| Bristol Parkway | 3230 | BPW | 4.60 KM |
| Filton Abbey Wood | 3235 | FIT | 6.65 KM |
| Patchway | 3213 | PWY | 7.19 KM |
| Stapleton Road | 3250 | SRD | 8.03 KM |
| Lawrence Hill | 3225 | LWH | 8.42 KM |
Nearby Listings
| Address | Price | Type | Score | Distance |
|---|---|---|---|---|
| Queensholm Drive, Downend, Bristol, BS16 6LG | £ 525,000 | BUY | 7 / 10 | 0.00 KM |
| Fouracre Road, Bristol, BS16 | £ 600,000 | BUY | 7 / 10 | 0.11 KM |
| Fouracre Crescent, Downend, Bristol, BS16 | £ 425,000 | BUY | Unknown | 0.18 KM |
| Queensholm Crescent, Downend, Bristol, BS16 6LH | £ 550,000 | BUY | 7 / 10 | 0.22 KM |
| Bury Hill View, Downend, Bristol, BS16 6PA | £ 465,000 | BUY | Unknown | 0.25 KM |
Nearby Properties
| Address | Price | Distance |
|---|---|---|
| 87 Fouracre Road | £ 285,000 | 0.09 KM |
| 97 Fouracre Road | £ 320,000 | 0.09 KM |
| 101 Fouracre Road | £ 405,000 | 0.09 KM |
| 64 Fouracre Road | £ 250,000 | 0.09 KM |
| 70 Fouracre Road | £ 485,000 | 0.09 KM |