Chancellors says ..
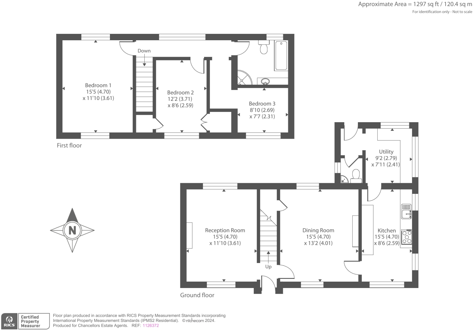
A grade II listed Georgian three bedroom detached stone built home. The property is elevated within its own grounds benefiting from gated access on the outskirts of the village. The property benefits from two reception rooms as well as a kitchen and utility room
Property Oracle says ..
This three-bedroom, two-bathroom detached property in Byfield, Northamptonshire, offers a blend of charm and potential. Situated in a sought-after village setting, it benefits from its proximity to Byfield School, a school rated ‘Good’ by Ofsted. Additional schools are also located within a short driving distance. The property itself presents a mix of original features, such as exposed beams, and what appear to be updated bathrooms. However, many of the rooms require updating. The existing kitchen and living areas require modernisation and redecoration, suggesting a need for investment by the buyer. The outdoor space is visible in the pictures but the extent is not specified, limiting its appeal. The list price reflects the desirability of the village location and the size of the house, but buyers should factor in the cost of renovations when considering their offer. Overall, the property is a potentially worthwhile investment for those seeking a project in a desirable village setting but requires a significant amount of work to transform into a modern property.
Therefore, we give this property 5 / 10. *Disclaimer: This is our option and does constitute a recommendation or financial advice. Do your own research. *
- Price
- 7
- Condition
- 5
- Location
- 7
- Land
- 4
- Bedrooms
- 3
- Bathrooms
- 2
- Sqft (est)
- 1,297.00
The heatmap indicates the level of crime in the area. The color of the heatmap indicates the crime severity and recency.
Metrics Year-on-Year
- Average area value
- 434,990.00 £Increased by 2.41 %
- Est sale value
- 357,972.00 £Decreased by 9.80 %
- Average area rental value
- 1,000.00 £/moDecreased by 22.96 %
- Est letting value
- 0.00 £/mo
- Est rental Yield
- 2.76 %Decreased by 24.80 %
- Crime Rate
- 16.00 %Unchanged by 0.00 %
Agent Activity
Chancellors created the listing.
Nearby Schools
| Name | Type | Ofsted | Distance |
|---|---|---|---|
| Byfield School | Academy Converter | Good | 0.87 KM |
| Woodford Halse Library And Children'S Centre | Children's Centre | 3.92 KM | |
| Woodford Halse Church Of England Primary Academy | Academy Converter | Good | 4.07 KM |
| St Mary'S Catholic Primary School, Aston-Le-Walls | Voluntary Aided School | Good | 4.56 KM |
| Chipping Warden Primary Academy | Academy Converter | Good | 5.38 KM |
Images
Nearby Streets
| Name | Average Price | Average Sqft | Distance |
|---|---|---|---|
| Queens Close | £ 0 | 0 | 0.00 KM |
| Muddy Lane (Ef14) | £ 0 | 0 | 0.00 KM |
Nearby Listings
| Address | Price | Type | Score | Distance |
|---|---|---|---|---|
| Byfield, Northants, NN11 | £ 475,000 | BUY | 5 / 10 | 0.00 KM |
| BYFIELD, Northamptonshire | £ 188,000 | BUY | 7 / 10 | 0.15 KM |
| Curgenven Close, Byfield, Northamptonshire, NN11 3HP | £ 204,000 | BUY | 6 / 10 | 0.15 KM |
| The Causeway, Byfield, NN11 | £ 300,000 | BUY | 7 / 10 | 0.20 KM |
| Becketts Close, BYFIELD, Northamptonshire, NN11 | £ 385,000 | BUY | 7 / 10 | 0.28 KM |
Nearby Properties
| Address | Price | Distance |
|---|---|---|
| 3 Curgenven Close | £ 133,250 | 0.14 KM |
| 38 Woodford Road | £ 267,500 | 0.16 KM |
| 20 Woodford Road | £ 202,000 | 0.16 KM |
| 2 Woodford Road | £ 292,500 | 0.16 KM |
| 36 Woodford Road | £ 160,000 | 0.20 KM |