Courtneys, Wheldrake
By Churchills Estate Agents
£ 275,000
Reviews
2 out of 5 stars
Churchills Estate Agents says ..
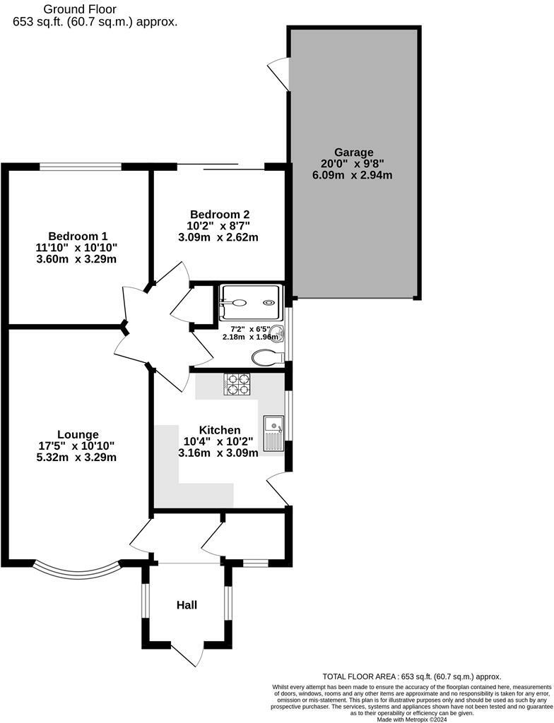
NO ONWARD CHAIN! BACKING ONTO FIELDS! CUL-DE-SAC LOCATION! A fabulous opportunity to purchase this two bedroom detached bungalow in this sought after and highly regarded village of Wheldrake, convenient for York city centre, the A64 and the A19. Although in need of some updating the property pro...
Property Oracle says ..
This two-bedroom detached bungalow in Wheldrake, York, presents a mixed bag. Located in a desirable village close to York and with access to several primary schools (though transport information is missing), the location is a strong point. The property itself, however, requires modernisation. The images reveal that the kitchen and bathroom are dated and would likely require significant renovation. While the property is habitable, the overall presentation is not one of modern, updated living. The garden, though present, needs significant attention. It appears overgrown and unkempt, detracting from the property’s overall appeal. The listing price, while potentially justified by the location and scarcity of similar properties in Wheldrake, reflects the need for renovation and updating. Ultimately, a potential buyer needs to carefully weigh the costs of modernisation against the desirability of the village location before making a decision.
Therefore, we give this property 5 / 10. *Disclaimer: This is our option and does constitute a recommendation or financial advice. Do your own research. *
- Price
- 7
- Condition
- 5
- Location
- 7
- Land
- 3
- Bedrooms
- 2
- Bathrooms
- 1
- Sqft (est)
- 653.37
The heatmap indicates the level of crime in the area. The color of the heatmap indicates the crime severity and recency.
Metrics Year-on-Year
- Average area value
- 591,875.00 £Increased by 5.13 %
- Est sale value
- 311,657.49 £Decreased by 6.47 %
- Average area rental value
- 1,194.00 £/moDecreased by 3.63 %
- Est letting value
- 0.00 £/moDecreased by 100.00 %
- Est rental Yield
- 2.42 %Decreased by 8.33 %
- Crime Rate
- 48.00 %Unchanged by 0.00 %
Agent Activity
Churchills Estate Agents marked this listing as sold.
Churchills Estate Agents created the listing.
Nearby Schools
| Name | Type | Ofsted | Distance |
|---|---|---|---|
| Wheldrake With Thorganby Church Of England Primary School | Academy Converter | 0.64 KM | |
| Elvington Church Of England Voluntary Controlled Primary School | Voluntary Controlled School | Good | 3.56 KM |
| Sutton Upon Derwent Church Of England Voluntary Controlled Primary School | Voluntary Controlled School | Good | 4.37 KM |
| Dunnington Church Of England Primary School | Academy Converter | 7.92 KM | |
| North Duffield Community Primary School | Community School | Good | 8.11 KM |
Images
Nearby Streets
| Name | Average Price | Average Sqft | Distance |
|---|---|---|---|
| Hall Close | £ 240,000 | 0 | 0.00 KM |
| Broadlands | £ 0 | 0 | 0.00 KM |
Nearby Listings
| Address | Price | Type | Score | Distance |
|---|---|---|---|---|
| Courtneys, Wheldrake | £ 600,000 | BUY | Unknown | 0.04 KM |
| Derwent Park, Wheldrake, York | £ 750,000 | BUY | 7 / 10 | 0.16 KM |
| Courtneys, Wheldrake, York | £ 525,000 | BUY | 7 / 10 | 0.17 KM |
| Courtneys, Wheldrake, York | £ 375,000 | BUY | 6 / 10 | 0.20 KM |
| Church Lane, York, North Yorkshire, YO19 | £ 550,000 | BUY | 7 / 10 | 0.22 KM |
Nearby Properties
| Address | Price | Distance |
|---|---|---|
| 18 Blake Court | £ 275,000 | 0.08 KM |
| 11 Blake Court | £ 408,000 | 0.08 KM |
| 12 Blake Court | £ 510,000 | 0.08 KM |
| 8 Blake Court | £ 279,000 | 0.08 KM |
| 9 Blake Court | £ 370,000 | 0.08 KM |