Molyneux says ..
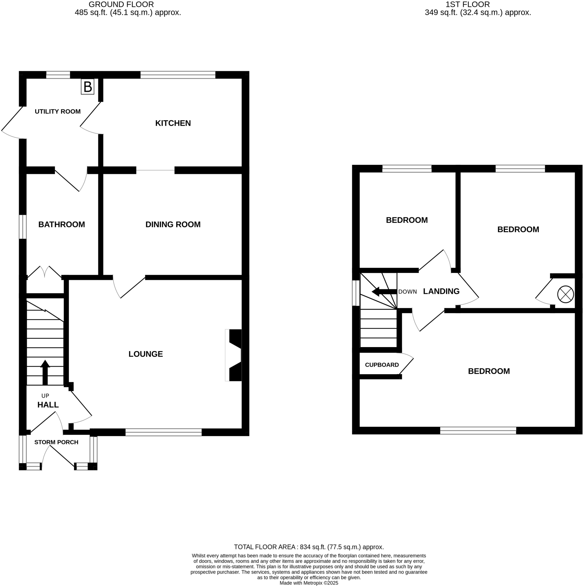
Situated in this much favoured and sought after semi rural village location is this delightful 3 bedroom extended semi detached property with spectacular views over the surrounding countryside to the front and rear elevations, living accommodation briefly comprises of entrance porch, entrance hal...
Property Oracle says ..
This property is a 3-bedroom semi-detached house located in Bwlchgwyn, Wrexham. The location benefits from being relatively close to Bwlchgwyn C.P. School (0.36km), and several other primary schools within a reasonable driving distance. There are also several train stations within a 7-8km radius. The property itself appears well-maintained and in good condition from the photos provided. It features a modern kitchen and bathroom, and a good-sized garden with various outbuildings including sheds and a greenhouse. The list price of £229,950 is lower than the average price for the area (£363,275), however, the lack of square footage data makes a direct price per square foot comparison impossible. Nearby comparable properties show a wide range of prices, suggesting that the market in this area is quite varied. More information is needed to fully assess the value for money.
Therefore, we give this property 7 / 10. *Disclaimer: This is our option and does constitute a recommendation or financial advice. Do your own research. *
- Price
- 7
- Condition
- 8
- Location
- 7
- Land
- 7
- Bedrooms
- 3
- Bathrooms
- 0
The heatmap indicates the level of crime in the area. The color of the heatmap indicates the crime severity and recency.
Metrics Year-on-Year
- Average area value
- 502,500.00 £Increased by 40.73 %
- Average area rental value
- 961.00 £/moDecreased by 1.13 %
- Est rental Yield
- 2.29 %Decreased by 29.97 %
- Crime Rate
- 26.00 %Unchanged by 0.00 %
Agent Activity
Molyneux marked this listing as sold.
Molyneux created the listing.
Nearby Schools
| Name | Type | Ofsted | Distance |
|---|---|---|---|
| Bwlchgwyn C.P. School | Welsh Establishment | 0.36 KM | |
| Carla House | Welsh Establishment | 1.42 KM | |
| Minera Aided Primary School | Welsh Establishment | 1.84 KM | |
| Ysgol Bryn Tabor | Welsh Establishment | 3.53 KM | |
| Penygelli Primary | Welsh Establishment | 3.57 KM |
Images
Nearby Streets
| Name | Average Price | Average Sqft | Distance |
|---|---|---|---|
| Cefn Road | £ 0 | 0 | 0.00 KM |
| Nebo Hill | £ 0 | 0 | 0.00 KM |
| Cae Glas Lane | £ 675,000 | 0 | 0.00 KM |
| Gegin Hill | £ 0 | 0 | 0.00 KM |
| Milestone Court | £ 0 | 0 | 0.00 KM |
Nearby Transport
| Name | NLC | TLC | Distance |
|---|---|---|---|
| Cefn-Y-Bedd | 2425 | CYB | 7.25 KM |
| Caergwrle | 2536 | CGW | 7.51 KM |
| Hope (Flintshire) | 2432 | HPE | 7.74 KM |
| Gwersyllt | 4300 | GWE | 8.18 KM |
| Penyffordd | 2433 | PNF | 8.68 KM |
Nearby Listings
| Address | Price | Type | Score | Distance |
|---|---|---|---|---|
| Bwlchgwyn, Wrexham | £ 229,950 | BUY | 7 / 10 | 0.00 KM |
| Yr Hendy, Brymbo Road, Bwlchgwyn, LL11 | £ 300,000 | BUY | 7 / 10 | 0.21 KM |
| Brymbo Road, Bwlchgwyn, Wrexham | £ 535,000 | BUY | Unknown | 0.35 KM |
| Ruthin Road, Bwlchgwyn, Wrexham | £ 550,000 | BUY | 6 / 10 | 0.68 KM |
| Ruthin Road, Bwlchgwyn, Wrexham | £ 227,500 | BUY | 7 / 10 | 0.81 KM |
Nearby Properties
| Address | Price | Distance |
|---|---|---|
| 1 Arllwyn | £ 136,000 | 0.00 KM |
| 11 Arllwyn | £ 113,500 | 0.00 KM |
| 9 Arllwyn | £ 122,000 | 0.00 KM |
| 3 Arllwyn | £ 92,500 | 0.00 KM |
| 17 Brymbo Road | £ 130,000 | 0.23 KM |