Millington Close, Prenton, Wirral, CH43
By Move Residential
£ 220,000
Reviews
3 out of 5 stars
Move Residential says ..
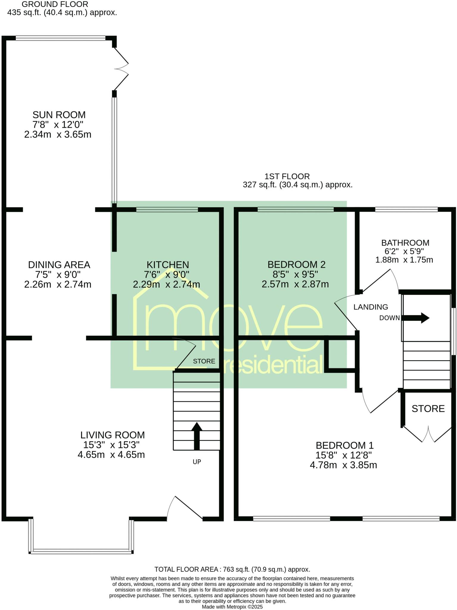
This delightful two bedroom extended detached home, enjoying a peaceful cul-de-sac location in the desirable residential area of Prenton, is welcomed to the sales market by appointed agents Move Residential. The property boasts an attractive modern frontage and has undergone extensive updates wit...
Property Oracle says ..
This is a two-bedroom detached property in Prenton, Wirral. The property appears to be in good, modern condition, with a well-maintained interior and a reasonable-sized garden. The location is convenient for schools and transport links. The price seems fair given the size of the property and the local market.
Therefore, we give this property 7 / 10. *Disclaimer: This is our option and does constitute a recommendation or financial advice. Do your own research. *
- Price
- 7
- Condition
- 8
- Location
- 7
- Land
- 7
- Bedrooms
- 2
- Bathrooms
- 1
- Sqft (est)
- 223.57
The heatmap indicates the level of crime in the area. The color of the heatmap indicates the crime severity and recency.
Metrics Year-on-Year
- Average area value
- 287,500.00 £Increased by 19.71 %
- Est sale value
- 47,620.41 £Increased by 16.39 %
- Average area rental value
- 850.00 £/moIncreased by 25.00 %
- Est letting value
- 0.00 £/mo
- Est rental Yield
- 3.55 %Increased by 4.41 %
- Crime Rate
- 2.00 %Unchanged by 0.00 %
Agent Activity
Move Residential created the listing.
Nearby Schools
| Name | Type | Ofsted | Distance |
|---|---|---|---|
| Prenton Children'S Centre | Children's Centre Linked Site | 0.98 KM | |
| Townfield Primary School | Academy Converter | Good | 1.09 KM |
| Prenton Primary School | Community School | Good | 1.18 KM |
| St Michael And All Angels Catholic Primary School | Voluntary Aided School | Good | 1.27 KM |
| Foxfield School | Community Special School | Good | 1.49 KM |
Images
Nearby Streets
| Name | Average Price | Average Sqft | Distance |
|---|---|---|---|
| Redwood Close | £ 0 | 0 | 0.00 KM |
| Stretton Close | £ 250,000 | 0 | 0.00 KM |
| Hartford Close | £ 0 | 0 | 0.00 KM |
| Hargrave Avenue | £ 155,000 | 0 | 0.00 KM |
| OvertonClose | £ 250,000 | 0 | 0.00 KM |
Nearby Transport
| Name | NLC | TLC | Distance |
|---|---|---|---|
| Upton (Merseyside) | 2141 | UPT | 3.16 KM |
| Birkenhead North | 2145 | BKN | 4.16 KM |
| Birkenhead Park | 2220 | BKP | 4.25 KM |
| Heswall | 2138 | HSW | 4.36 KM |
| Bidston | 2136 | BID | 4.95 KM |
Nearby Listings
| Address | Price | Type | Score | Distance |
|---|---|---|---|---|
| Millington Close, Prenton, Wirral, CH43 | £ 220,000 | BUY | 7 / 10 | 0.00 KM |
| Millington Close, Prenton | £ 270,000 | BUY | 7 / 10 | 0.01 KM |
| Melford Drive, Prenton | £ 75,000 | BUY | 6 / 10 | 0.07 KM |
| Shipton Close, Prenton | £ 159,950 | BUY | 7 / 10 | 0.09 KM |
| Mapleton Close, Prenton, Wirral | £ 200,000 | BUY | 7 / 10 | 0.13 KM |
Nearby Properties
| Address | Price | Distance |
|---|---|---|
| 11 Millington Close | £ 203,000 | 0.01 KM |
| 15 Millington Close | £ 200,000 | 0.01 KM |
| 6 Millington Close | £ 54,000 | 0.01 KM |
| 12 Millington Close | £ 155,000 | 0.01 KM |
| 19 Millington Close | £ 145,000 | 0.01 KM |