Ampthill Road, Bedford
By Goodacres Residential
£ 240,000
Reviews
2 out of 5 stars
Goodacres Residential says ..
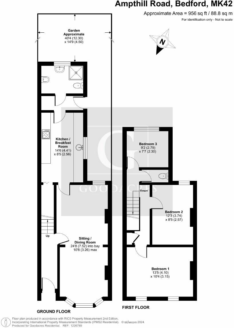
A superb 3 bedroom, Victorian period property, situated within close proximity to all local amenities, transport links and Bedford Hospital. This excellent property offers large and spacious accommodation across 2 floors whilst also providing a low maintenance garden. A viewing is highly advised
Property Oracle says ..
This three-bedroom end-of-terrace house on Ampthill Road, Bedford, presents a mixed bag for potential buyers. Its location is a definite plus, offering relatively easy access to Bedford St Johns train station and several local schools. The proximity to amenities is also beneficial. However, the property’s interior reveals its age. The decor and fixtures are dated, requiring a considerable investment in modernization. The kitchen and bathroom are particularly in need of updating, with the latter displaying aspects that appear to be in need of an upgrade. The small, primarily paved rear garden provides some outdoor space but lacks significant landscaping. Overall, the property offers potential as a family home, given its location, but prospective buyers should budget for significant refurbishment costs. The list price appears reasonable in the context of the area, but isn’t outstanding value due to its condition and the relatively small size of the property and garden. A more accurate square footage would provide a more precise evaluation of the property’s value per square foot.
Therefore, we give this property 5 / 10. *Disclaimer: This is our option and does constitute a recommendation or financial advice. Do your own research. *
- Price
- 7
- Condition
- 5
- Location
- 7
- Land
- 3
- Bedrooms
- 3
- Bathrooms
- 1
- Sqft (est)
- 956.00
The heatmap indicates the level of crime in the area. The color of the heatmap indicates the crime severity and recency.
Metrics Year-on-Year
- Average area value
- 240,833.00 £Decreased by 4.05 %
- Est sale value
- 286,800.00 £Increased by 11.11 %
- Average area rental value
- 1,135.00 £/moDecreased by 6.74 %
- Est letting value
- 956.00 £/moUnchanged by 0.00 %
- Est rental Yield
- 5.66 %Decreased by 2.75 %
- Crime Rate
- 11.00 %Unchanged by 0.00 %
Agent Activity
Goodacres Residential marked this listing as sold.
Goodacres Residential created the listing.
Nearby Schools
| Name | Type | Ofsted | Distance |
|---|---|---|---|
| Cauldwell School | Academy Converter | 0.41 KM | |
| Peter Pan Nursery School | Local Authority Nursery School | Outstanding | 0.42 KM |
| Cauldwell Cc (Bedford Borough) | Children's Centre | 0.54 KM | |
| E-Spired Centre Of Excellence | Other Independent School | Good | 0.77 KM |
| Cherry Trees Nursery School | Local Authority Nursery School | Outstanding | 1.05 KM |
Images
Nearby Streets
| Name | Average Price | Average Sqft | Distance |
|---|---|---|---|
| Bunyan Road | £ 0 | 0 | 0.00 KM |
| St Leonards Court | £ 0 | 0 | 0.00 KM |
| Mile Road | £ 220,000 | 0 | 0.00 KM |
| Britannia Road | £ 0 | 0 | 0.00 KM |
| Melbourne Street | £ 0 | 0 | 0.00 KM |
Nearby Transport
| Name | NLC | TLC | Distance |
|---|---|---|---|
| Bedford St Johns | 1510 | BSJ | 0.96 KM |
| Bedford | 1512 | BDM | 1.68 KM |
| Kempston Hardwick | 1384 | KMH | 4.83 KM |
| Stewartby | 1386 | SWR | 7.97 KM |
Nearby Listings
| Address | Price | Type | Score | Distance |
|---|---|---|---|---|
| Ampthill Road, Bedford | £ 240,000 | BUY | 5 / 10 | 0.00 KM |
| Eastville Road, Bedford | £ 260,000 | BUY | 5 / 10 | 0.09 KM |
| Maryville Road, Bedford, Bedfordshire, MK42 | £ 270,000 | BUY | 6 / 10 | 0.11 KM |
| Eastville Road, Bedford | £ 240,000 | BUY | Unknown | 0.12 KM |
| Maryville Road, Bedford | £ 250,000 | BUY | 6 / 10 | 0.12 KM |
Nearby Properties
| Address | Price | Distance |
|---|---|---|
| 158 Ampthill Road | £ 261,000 | 0.03 KM |
| 138 Ampthill Road | £ 153,000 | 0.03 KM |
| 136 Ampthill Road | £ 175,000 | 0.03 KM |
| 148 Ampthill Road | £ 275,000 | 0.04 KM |
| 126 Ampthill Road | £ 265,000 | 0.04 KM |