Hedgemoor Court, 24 Castle Avenue, London, E4
By Rooted
£ 600,000
Reviews
3 out of 5 stars
Rooted says ..
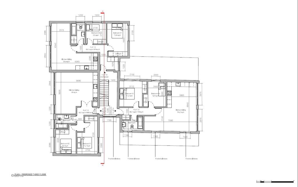
Rarely available to market is the opportunity to purchase the freehold and airspace of Hedgemoor Court in the heart of Chingford. Planning has already been agreed for the addition of two levels comprising of six, two bedroom apartments. Hedgemoor Court is perfectly placed ...
Property Oracle says ..
The property is a plot located on Castle Avenue, London, E4. It is situated in a well-connected area with good access to transportation, local amenities, and schools. The property appears to be in good condition, suggesting a modern build that does not require immediate renovation. However, the lack of specific information regarding the property’s square footage makes it challenging to accurately assess the value for money. The average price in the area is £325,000, while nearby properties are listed between £483,000 and £1,140,000.
Therefore, we give this property 6 / 10. *Disclaimer: This is our option and does constitute a recommendation or financial advice. Do your own research. *
- Price
- 4
- Condition
- 8
- Location
- 7
- Land
- 5
- Bedrooms
- 0
- Bathrooms
- 0
The heatmap indicates the level of crime in the area. The color of the heatmap indicates the crime severity and recency.
Metrics Year-on-Year
- Average area value
- 325,000.00 £Decreased by 45.55 %
- Average area rental value
- 2,250.00 £/moIncreased by 7.55 %
- Est rental Yield
- 8.31 %Increased by 97.39 %
- Crime Rate
- 9.00 %Unchanged by 0.00 %
Agent Activity
Rooted created the listing.
Nearby Schools
| Name | Type | Ofsted | Distance |
|---|---|---|---|
| Highams Park School | Academy Converter | Good | 0.19 KM |
| Handsworth Primary School | Community School | Good | 0.29 KM |
| Joseph Clarke School | Academy Special Sponsor Led | Good | 0.38 KM |
| Oakhill Primary School | Community School | Outstanding | 0.67 KM |
| Longshaw Primary Academy | Academy Sponsor Led | 1.16 KM |
Images
Nearby Streets
| Name | Average Price | Average Sqft | Distance |
|---|---|---|---|
| Belmont Close | £ 0 | 0 | 0.00 KM |
| The Avenue | £ 617,380 | 0 | 0.00 KM |
| St. Leonard's Avenue | £ 0 | 0 | 0.00 KM |
| Richmond Avenue | £ 786,248 | 0 | 0.00 KM |
| Gordon Avenue | £ 768,063 | 0 | 0.00 KM |
Nearby Transport
| Name | NLC | TLC | Distance |
|---|---|---|---|
| Highams Park | 6919 | HIP | 0.44 KM |
| Chingford | 6914 | CHI | 2.66 KM |
| Wood Street | 6954 | WST | 2.69 KM |
| Walthamstow Central | 6953 | WHC | 3.96 KM |
| Walthamstow Queen'S Road | 7407 | WMW | 4.38 KM |
Nearby Listings
| Address | Price | Type | Score | Distance |
|---|---|---|---|---|
| Hedgemoor Court, 24 Castle Avenue, London, E4 | £ 600,000 | BUY | 6 / 10 | 0.00 KM |
| Hedgemoor Court, Castle Avenue, Highams Park, Castle Avenue, London | £ 310,000 | BUY | Unknown | 0.00 KM |
| Castle Avenue, Highams Park | £ 400,000 | BUY | 6 / 10 | 0.07 KM |
| Castle Avenue, Highams Park, London. E4 9PY | £ 725,000 | BUY | 6 / 10 | 0.07 KM |
| Castle Avenue, Highams Park, London. E4 9PY | £ 699,995 | BUY | 6 / 10 | 0.07 KM |
Nearby Properties
| Address | Price | Distance |
|---|---|---|
| 30 Castle Avenue | £ 1,140,000 | 0.04 KM |
| 16 Castle Avenue | £ 1,075,000 | 0.04 KM |
| 22 Castle Avenue | £ 870,000 | 0.04 KM |
| 36 Castle Avenue | £ 615,000 | 0.04 KM |
| 48 Castle Avenue | £ 129,000 | 0.04 KM |