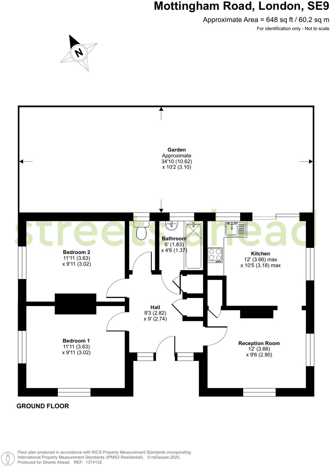
Mottingham Road, London, SE9
By Streets Ahead
£ 350,000
Reviews
2 out of 5 stars
Streets Ahead says ..
CASH BUYERS ONLY Set within this period development is this unique two bedroom detached bungalow. In need of complete modernisation but offering huge potential.Offered onto the market with no onward chain.
Property Oracle says ..
This is a 2-bedroom bungalow located on Mottingham Road, London. The property is listed for £350,000. Streets Ahead is the listing estate agent. The property’s location offers good access to local amenities, schools, and transportation, with Mottingham station nearby. However, the internal condition of the bungalow requires extensive renovation, as evidenced by the damaged walls, flooring, and fixtures. The property includes a garden, adding to its appeal. Considering the average price per square foot in the area and the need for renovation, the asking price appears reasonable, presenting a potential investment opportunity for those willing to undertake refurbishment work.
Therefore, we give this property 5 / 10. *Disclaimer: This is our option and does constitute a recommendation or financial advice. Do your own research. *
- Price
- 7
- Condition
- 3
- Location
- 7
- Land
- 6
- Bedrooms
- 2
- Bathrooms
- 1
The heatmap indicates the level of crime in the area. The color of the heatmap indicates the crime severity and recency.
Metrics Year-on-Year
- Average area value
- 383,571.00 £Decreased by 14.34 %
- Average area rental value
- 1,863.00 £/moIncreased by 10.17 %
- Est rental Yield
- 5.83 %Increased by 28.70 %
- Crime Rate
- 6.00 %Unchanged by 0.00 %
Agent Activity
Streets Ahead created the listing.
Nearby Schools
| Name | Type | Ofsted | Distance |
|---|---|---|---|
| Mottingham Primary School | Academy Converter | Good | 0.51 KM |
| St Vincent'S Catholic Primary School | Academy Converter | 0.67 KM | |
| Greenacres Primary School And Language Impairment Unit | Academy Converter | 0.94 KM | |
| Greenacres Children'S Centre | Children's Centre Linked Site | 0.99 KM | |
| Elmstead Wood Primary School | Academy Converter | Good | 1.03 KM |
Images
Nearby Streets
| Name | Average Price | Average Sqft | Distance |
|---|---|---|---|
| Sycamore Close | £ 750,000 | 0 | 0.00 KM |
| Tenterden Close | £ 0 | 0 | 0.00 KM |
| Longcroft | £ 442,500 | 0 | 0.00 KM |
| Middle Park Avenue | £ 0 | 0 | 0.00 KM |
| White Horse Hill | £ 437,000 | 0 | 0.00 KM |
Nearby Transport
| Name | NLC | TLC | Distance |
|---|---|---|---|
| Mottingham | 5118 | MTG | 0.87 KM |
| Elmstead Woods | 5135 | ESD | 1.78 KM |
| New Eltham | 5119 | NEH | 2.52 KM |
| Eltham | 5103 | ELW | 2.60 KM |
| Grove Park | 5139 | GRP | 2.96 KM |
Nearby Listings
| Address | Price | Type | Score | Distance |
|---|---|---|---|---|
| Mottingham Road, London, SE9 | £ 350,000 | BUY | 5 / 10 | 0.00 KM |
| Mottingham Road, London, SE9 | £ 250,000 | BUY | 5 / 10 | 0.00 KM |
| Mottingham Road, London | £ 375,000 | BUY | 7 / 10 | 0.00 KM |
| Mottingham Road, London | £ 325,000 | BUY | 6 / 10 | 0.00 KM |
| Mottingham Road, London, SE9 | £ 250,000 | BUY | 5 / 10 | 0.00 KM |
Nearby Properties
| Address | Price | Distance |
|---|---|---|
| 42 Nunnington Close | £ 199,500 | 0.07 KM |
| 2 Nunnington Close | £ 301,500 | 0.07 KM |
| 5 Nunnington Close | £ 242,000 | 0.07 KM |
| 1 Nunnington Close | £ 250,000 | 0.07 KM |
| 14 Nunnington Close | £ 103,000 | 0.07 KM |