Masons says ..
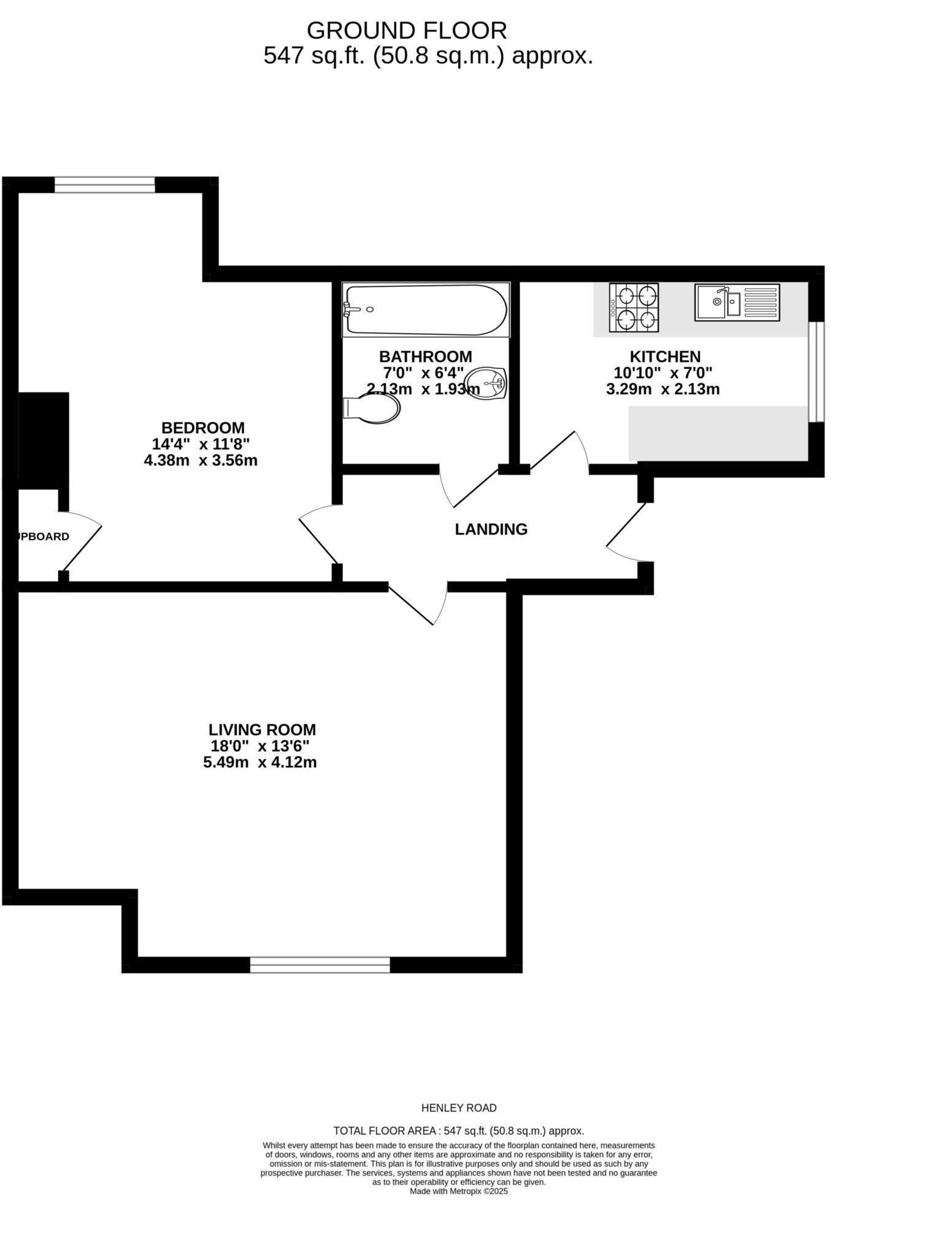
Masons are proud to offer to the market this well presented one bedroom second floor apartment, located on a sought after road in Caversham & within a few minutes walk of Caversham centre, as well as Reading town centre & mainline station. The property has been fully refurbished by its current owner
Property Oracle says ..
Therefore, we give this property 7 / 10. *Disclaimer: This is our option and does constitute a recommendation or financial advice. Do your own research. *
- Price
- 9
- Condition
- 8
- Location
- 8
- Land
- 5
- Bedrooms
- 1
- Bathrooms
- 1
- Sqft (est)
- 547.00
The heatmap indicates the level of crime in the area. The color of the heatmap indicates the crime severity and recency.
Metrics Year-on-Year
- Average area value
- 436,875.00 £Increased by 21.02 %
- Est sale value
- 282,799.00 £Increased by 14.13 %
- Average area rental value
- 1,527.00 £/moDecreased by 4.62 %
- Est letting value
- 547.00 £/moDecreased by 50.00 %
- Est rental Yield
- 4.19 %Decreased by 21.24 %
- Crime Rate
- 0.00 %
from 360,999.00 £
from 247,791.00 £
from 1,601.00 £/mo
from 1,094.00 £/mo
from 5.32 %
from 0.00 %
Agent Activity
Masons created the listing.
Nearby Schools
| Name | Type | Ofsted | Distance |
|---|---|---|---|
| St Anne'S Catholic Primary School | Voluntary Aided School | Good | 0.33 KM |
| Queen Anne'S School | Other Independent School | 0.52 KM | |
| Caversham Preparatory School | Other Independent School | 0.56 KM | |
| Chiltern Nursery Nurse Training School | Miscellaneous | 0.56 KM | |
| New Bridge Nursery School | Local Authority Nursery School | Outstanding | 0.56 KM |
Images
Nearby Streets
| Name | Average Price | Average Sqft | Distance |
|---|---|---|---|
| St John's Road | £ 0 | 0 | 0.00 KM |
| Tilbury Close | £ 0 | 0 | 0.00 KM |
| Short Street | £ 0 | 0 | 0.00 KM |
| Peel Close | £ 0 | 0 | 0.00 KM |
| Harley Road | £ 0 | 0 | 0.00 KM |
Nearby Transport
| Name | NLC | TLC | Distance |
|---|---|---|---|
| Reading | 3149 | RDG | 1.53 KM |
| Reading West | 3160 | RDW | 3.33 KM |
| Earley | 5694 | EAR | 6.01 KM |
| Tilehurst | 3154 | TLH | 7.30 KM |
| Winnersh Triangle | 5698 | WTI | 8.83 KM |
Nearby Listings
| Address | Price | Type | Score | Distance |
|---|---|---|---|---|
| Henley Road, Caversham | £ 210,000 | BUY | 7 / 10 | 0.00 KM |
| Field View, Caversham, Reading | £ 240,000 | BUY | Unknown | 0.20 KM |
| 11a Derby Road, Reading | £ 325,000 | BUY | 7 / 10 | 0.24 KM |
| Field View, Caversham, Reading | £ 505,000 | BUY | 6 / 10 | 0.25 KM |
| Donegal Close, Reading | £ 445,000 | BUY | 6 / 10 | 0.25 KM |
Nearby Properties
| Address | Price | Distance |
|---|---|---|
| 93 Henley Road | £ 455,000 | 0.01 KM |
| 95 Henley Road | £ 920,000 | 0.01 KM |
| 71 Henley Road | £ 650,000 | 0.01 KM |
| 77 Henley Road | £ 400,000 | 0.01 KM |
| 79 Henley Road | £ 690,000 | 0.01 KM |