Plot 14, Old Croft Place, Welney
By Maxey Grounds
£ 355,000
Reviews
3 out of 5 stars
Maxey Grounds says ..
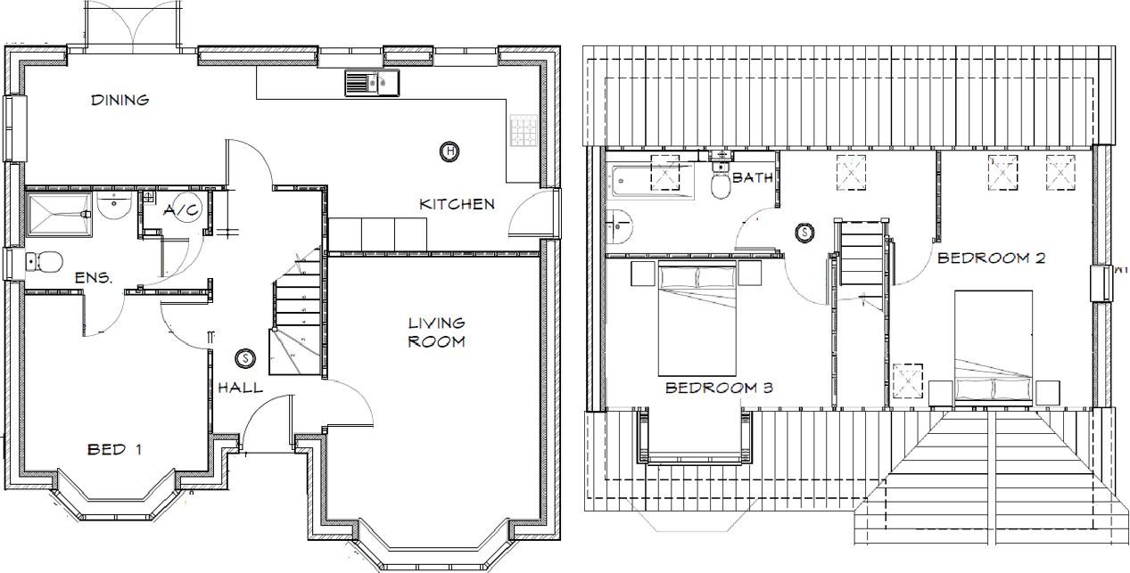
**BRAND NEW CHALET BUNGALOW** Three double bedroom detached property on a brand new executive CUL-DE-SAC, in the tranquil village of Welney.
Property Oracle says ..
This property is a new build chalet located in Welney, Norfolk. The property is in excellent condition and appears to be finished to a high standard. The location is a new build development, so there is limited information on the local amenities, however, there are a number of nearby schools and transport links. The plot size is small, but the property itself is a good size for a family home. The list price is slightly higher than the average price for the area, but this is likely due to the new build status and the high-quality finish. Overall, this property presents good value for money.
Therefore, we give this property 7 / 10. *Disclaimer: This is our option and does constitute a recommendation or financial advice. Do your own research. *
- Price
- 8
- Condition
- 10
- Location
- 7
- Land
- 3
- Bedrooms
- 3
- Bathrooms
- 2
- Sqft (est)
- 1,000.00
The heatmap indicates the level of crime in the area. The color of the heatmap indicates the crime severity and recency.
Metrics Year-on-Year
- Average area value
- 245,074.00 £Decreased by 15.93 %
- Est sale value
- 235,000.00 £Decreased by 37.50 %
- Average area rental value
- 1,254.00 £/moDecreased by 5.43 %
- Est letting value
- 1,000.00 £/moUnchanged by 0.00 %
- Est rental Yield
- 6.14 %Increased by 12.45 %
- Crime Rate
- 91.00 %Unchanged by 0.00 %
Agent Activity
Maxey Grounds created the listing.
Nearby Schools
| Name | Type | Ofsted | Distance |
|---|---|---|---|
| Townley Primary School | Community School | Requires improvement | 6.23 KM |
| Highfield Littleport Academy | Academy Special Sponsor Led | 8.27 KM | |
| Littleport Child And Family Centre | Children's Centre | 8.42 KM | |
| Littleport & East Cambs Academy | Academy Sponsor Led | 8.48 KM | |
| Littleport Community Primary School | Community School | Good | 8.53 KM |
Images
Nearby Streets
| Name | Average Price | Average Sqft | Distance |
|---|---|---|---|
| Bedford Bank (East) | £ 0 | 0 | 0.00 KM |
| Chestnut Avenue | £ 0 | 0 | 0.00 KM |
| Bedford Bank (West) | £ 75,648 | 0 | 0.00 KM |
| Wash Road | £ 0 | 0 | 0.00 KM |
Nearby Transport
| Name | NLC | TLC | Distance |
|---|---|---|---|
| Manea | 7165 | MNE | 8.34 KM |
| Littleport | 7072 | LTP | 9.93 KM |
Nearby Listings
| Address | Price | Type | Score | Distance |
|---|---|---|---|---|
| Plot 15, Old Croft Place, Welney | £ 335,000 | BUY | 6 / 10 | 0.00 KM |
| Plot 8, Old Croft Place, Welney | £ 365,000 | BUY | 7 / 10 | 0.00 KM |
| Plot 8, Old Croft Place, Welney | £ 365,000 | BUY | 8 / 10 | 0.00 KM |
| Plot 14, Old Croft Place, Welney | £ 355,000 | BUY | 7 / 10 | 0.00 KM |
| Main Street, Welney | £ 350,000 | BUY | 7 / 10 | 0.00 KM |
Nearby Properties
| Address | Price | Distance |
|---|---|---|
| The Old Chapel | £ 265,000 | 0.01 KM |
| Brooklands House | £ 100,000 | 0.01 KM |
| Three Ways | £ 175,000 | 0.01 KM |
| High Hill House | £ 300,000 | 0.01 KM |
| Wren Cottage | £ 460,000 | 0.01 KM |