SE
Rounce Lane, West End, Woking, Surrey, GU24
By Seymours Estate Agents
£ 900,000
Reviews
4 out of 5 stars
Seymours Estate Agents says ..
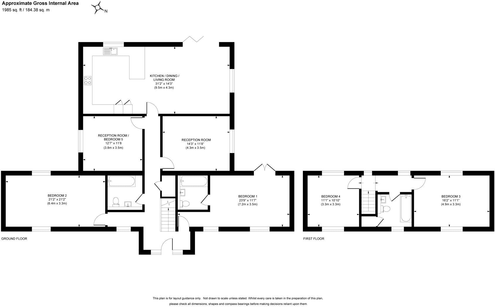
A substantial 4/5 bedroom detached family home, of just under 2000 sq ft, located in a delightful semi-rural private lane on the fringes of the village, close to Gordons and The Holy Trinity primary schools. Originally a small cottage, the property has seen significant extension and refurbishment...
Property Oracle says ..
Therefore, we give this property 8 / 10. *Disclaimer: This is our option and does constitute a recommendation or financial advice. Do your own research. *
- Price
- 9
- Condition
- 9
- Location
- 8
- Land
- 7
- Bedrooms
- 4
- Bathrooms
- 0
- Sqft (est)
- 1,985.00
The heatmap indicates the level of crime in the area. The color of the heatmap indicates the crime severity and recency.
Metrics Year-on-Year
- Average area value
- 644,188.00 £Increased by 3.54 %
- Est sale value
- 841,640.00 £Decreased by 26.64 %
- Average area rental value
- 2,466.00 £/moDecreased by 21.84 %
- Est letting value
- 1,985.00 £/moDecreased by 50.00 %
- Est rental Yield
- 4.59 %Decreased by 24.63 %
- Crime Rate
- 2.00 %Unchanged by 0.00 %
from 622,146.00 £
from 1,147,330.00 £
from 3,155.00 £/mo
from 3,970.00 £/mo
from 6.09 %
from 2.00 %
Agent Activity
Seymours Estate Agents created the listing.
Nearby Schools
| Name | Type | Ofsted | Distance |
|---|---|---|---|
| Gordon'S School | Academy Converter | Outstanding | 1.10 KM |
| Holy Trinity Cofe Primary School | Academy Converter | 2.20 KM | |
| Bisley Cofe Primary School | Voluntary Aided School | Good | 2.47 KM |
| Lightwater Village School | Academy Converter | 2.84 KM | |
| Hammond School | Academy Converter | Good | 3.20 KM |
Images
Nearby Streets
| Name | Average Price | Average Sqft | Distance |
|---|---|---|---|
| Sundew Close | £ 1,000,000 | 0 | 0.00 KM |
| Burnt Pollard Lane | £ 1,100,000 | 0 | 0.00 KM |
| Withy Close | £ 0 | 0 | 0.00 KM |
| Lightwater Bypass | £ 215,000 | 0 | 0.00 KM |
| Derwent Road | £ 0 | 0 | 0.00 KM |
Nearby Transport
| Name | NLC | TLC | Distance |
|---|---|---|---|
| Brookwood | 5687 | BKO | 4.18 KM |
| Bagshot | 5681 | BAG | 4.93 KM |
| Sunningdale | 5671 | SNG | 6.55 KM |
| Ascot (Berks) | 5666 | ACT | 8.11 KM |
| Longcross | 5674 | LNG | 8.48 KM |
Nearby Listings
| Address | Price | Type | Score | Distance |
|---|---|---|---|---|
| Rounce Lane, West End, Woking, Surrey, GU24 | £ 900,000 | BUY | 8 / 10 | 0.00 KM |
| Rounce Lane, West End, Woking, Surrey, GU24 | £ 925,000 | BUY | 7 / 10 | 0.03 KM |
| West End Village, Nr Woking | £ 865,000 | BUY | 7 / 10 | 0.13 KM |
| West End Village, Nr Woking | £ 900,000 | BUY | Unknown | 0.13 KM |
| Brentmoor Road, West End, Woking, Surrey, GU24 | £ 1,150,000 | BUY | 7 / 10 | 0.14 KM |
Nearby Properties
| Address | Price | Distance |
|---|---|---|
| Holly Lodge | £ 490,000 | 0.01 KM |
| Stonewold | £ 456,000 | 0.01 KM |
| La Cachette | £ 750,000 | 0.01 KM |
| Littlecote | £ 290,000 | 0.01 KM |
| Rounce Farm | £ 1,400,000 | 0.01 KM |