Avondale Road, Newbridge, Bath, BA1
By Nash & Co
£ 360,000
Reviews
3 out of 5 stars
Nash & Co says ..
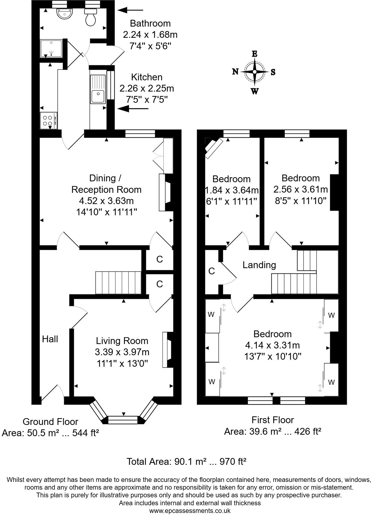
Offered for sale with no onward chain. A charming and characterful 1920s property located in the popular Newbridge area of Bath close to many local amenities. The property hosts a number of attractive period features
Property Oracle says ..
The property is located in a desirable area of Bath, close to schools and transport links. It is a terraced house in generally good condition, though some decor may be considered dated. The inclusion of a garden is a positive attribute. The list price of £360,000 seems reasonably competitive considering the average house price in the area and the property’s features, although its smaller size than average should be noted.
Therefore, we give this property 7 / 10. *Disclaimer: This is our option and does constitute a recommendation or financial advice. Do your own research. *
- Price
- 7
- Condition
- 7
- Location
- 8
- Land
- 7
- Bedrooms
- 3
- Bathrooms
- 1
- Sqft (est)
- 744.67
- Lot (est)
- 970.00
The heatmap indicates the level of crime in the area. The color of the heatmap indicates the crime severity and recency.
Metrics Year-on-Year
- Average area value
- 318,211.00 £Decreased by 21.80 %
- Est sale value
- 209,996.94 £Decreased by 21.45 %
- Average area rental value
- 2,110.00 £/moIncreased by 60.46 %
- Est letting value
- 744.67 £/moUnchanged by 0.00 %
- Est rental Yield
- 7.96 %Increased by 105.15 %
- Crime Rate
- 4.00 %Unchanged by 0.00 %
Agent Activity
Nash & Co created the listing.
Nearby Schools
| Name | Type | Ofsted | Distance |
|---|---|---|---|
| Newbridge Primary School | Community School | Good | 0.37 KM |
| First Steps Twerton Children'S Centre | Children's Centre | 0.84 KM | |
| St Michaels Junior Church School | Academy Sponsor Led | 0.95 KM | |
| Twerton Infant School | Community School | Good | 1.03 KM |
| St Mary'S Catholic Primary School | Voluntary Aided School | Good | 1.33 KM |
Images
Nearby Streets
| Name | Average Price | Average Sqft | Distance |
|---|---|---|---|
| Rackfield Place | £ 0 | 0 | 0.00 KM |
| Rosslyn Close | £ 0 | 0 | 0.00 KM |
| Connection Road | £ 0 | 0 | 0.00 KM |
| Mill Lane | £ 195,000 | 0 | 0.00 KM |
| Padfield Close | £ 480,000 | 0 | 0.00 KM |
Nearby Transport
| Name | NLC | TLC | Distance |
|---|---|---|---|
| Oldfield Park | 3219 | OLF | 1.60 KM |
| Bath Spa | 3271 | BTH | 4.19 KM |
Nearby Listings
| Address | Price | Type | Score | Distance |
|---|---|---|---|---|
| Avondale Road, Newbridge, Bath, BA1 | £ 360,000 | BUY | 7 / 10 | 0.00 KM |
| Newbridge Road, Bath | £ 550,000 | BUY | 7 / 10 | 0.14 KM |
| Newbridge Road, Bath, Somerset, BA1 | £ 550,000 | BUY | 7 / 10 | 0.15 KM |
| Newbridge Road, Bath, Somerset, BA1 | £ 235,000 | BUY | 7 / 10 | 0.16 KM |
| Brassmill Lane, Bath | £ 145,000 | BUY | 5 / 10 | 0.20 KM |
Nearby Properties
| Address | Price | Distance |
|---|---|---|
| 41 Avondale Road | £ 332,000 | 0.00 KM |
| 11 Avondale Road | £ 265,000 | 0.00 KM |
| 25 Avondale Road | £ 250,000 | 0.00 KM |
| 15 Avondale Road | £ 305,000 | 0.00 KM |
| 19 Avondale Road | £ 480,650 | 0.00 KM |