Northwood says ..
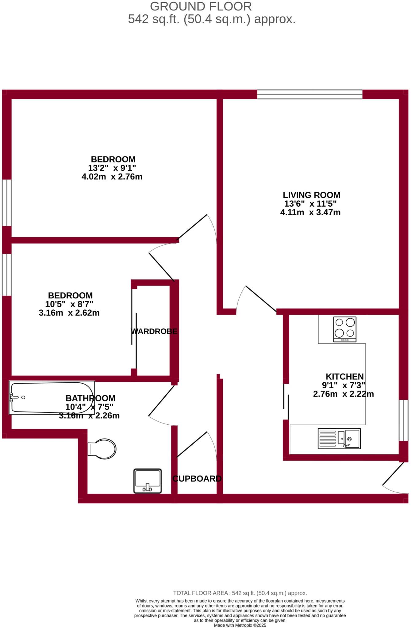
Refurbished, main door, 2 bedroom apartment, within walking distance to Ninewells Hospital.
Property Oracle says ..
This property is a 2 bedroom flat located in the West End of Dundee. The property benefits from a small garden and appears to have recently undergone a full refurbishment. The location is reasonably convenient, with rail links within a few kilometers. However, information on nearby schools is unavailable. The list price of £150,000 is significantly lower than the average property price in the area (£3,406,235), although this may be due to the difference in property type and size. Further information on the property size would allow for a more detailed price analysis. Nearby comparable properties are priced between £215,000 and £225,000, suggesting the list price may be undervalued, particularly given the apparent recent refurbishment.
Therefore, we give this property 6 / 10. *Disclaimer: This is our option and does constitute a recommendation or financial advice. Do your own research. *
- Price
- 8
- Condition
- 9
- Location
- 6
- Land
- 3
- Bedrooms
- 2
- Bathrooms
- 1
The heatmap indicates the level of crime in the area. The color of the heatmap indicates the crime severity and recency.
Metrics Year-on-Year
- Average area value
- 3,330,494.00 £Decreased by 9.19 %
- Average area rental value
- 2,935.00 £/moIncreased by 1.98 %
- Est rental Yield
- 1.06 %Increased by 12.77 %
- Crime Rate
- 0.00 %
Agent Activity
Northwood created the listing.
Images
Nearby Streets
| Name | Average Price | Average Sqft | Distance |
|---|---|---|---|
| Whitefauld Road | £ 0 | 0 | 0.00 KM |
| Hillside Terrace | £ 0 | 0 | 0.00 KM |
| Glamis Place | £ 0 | 0 | 0.00 KM |
| Kirkstead Drive | £ 0 | 0 | 0.00 KM |
| Glamis Road | £ 234,995 | 0 | 0.00 KM |
Nearby Transport
| Name | NLC | TLC | Distance |
|---|---|---|---|
| Invergowrie | 8778 | ING | 3.20 KM |
| Dundee | 9039 | DEE | 6.39 KM |
Nearby Listings
| Address | Price | Type | Score | Distance |
|---|---|---|---|---|
| Glamis Drive, Dundee, DD2 | £ 150,000 | BUY | 6 / 10 | 0.00 KM |
| Glamis Gardens, Dundee | £ 210,000 | BUY | 7 / 10 | 0.12 KM |
| Invergowrie Drive, Dundee | £ 270,000 | BUY | 7 / 10 | 0.19 KM |
| Hillside Road, Dundee, DD2 | £ 295,000 | BUY | 7 / 10 | 0.35 KM |
| Glamis Place, Dundee, DD2 | £ 450,000 | BUY | Unknown | 0.36 KM |