Pennys says ..
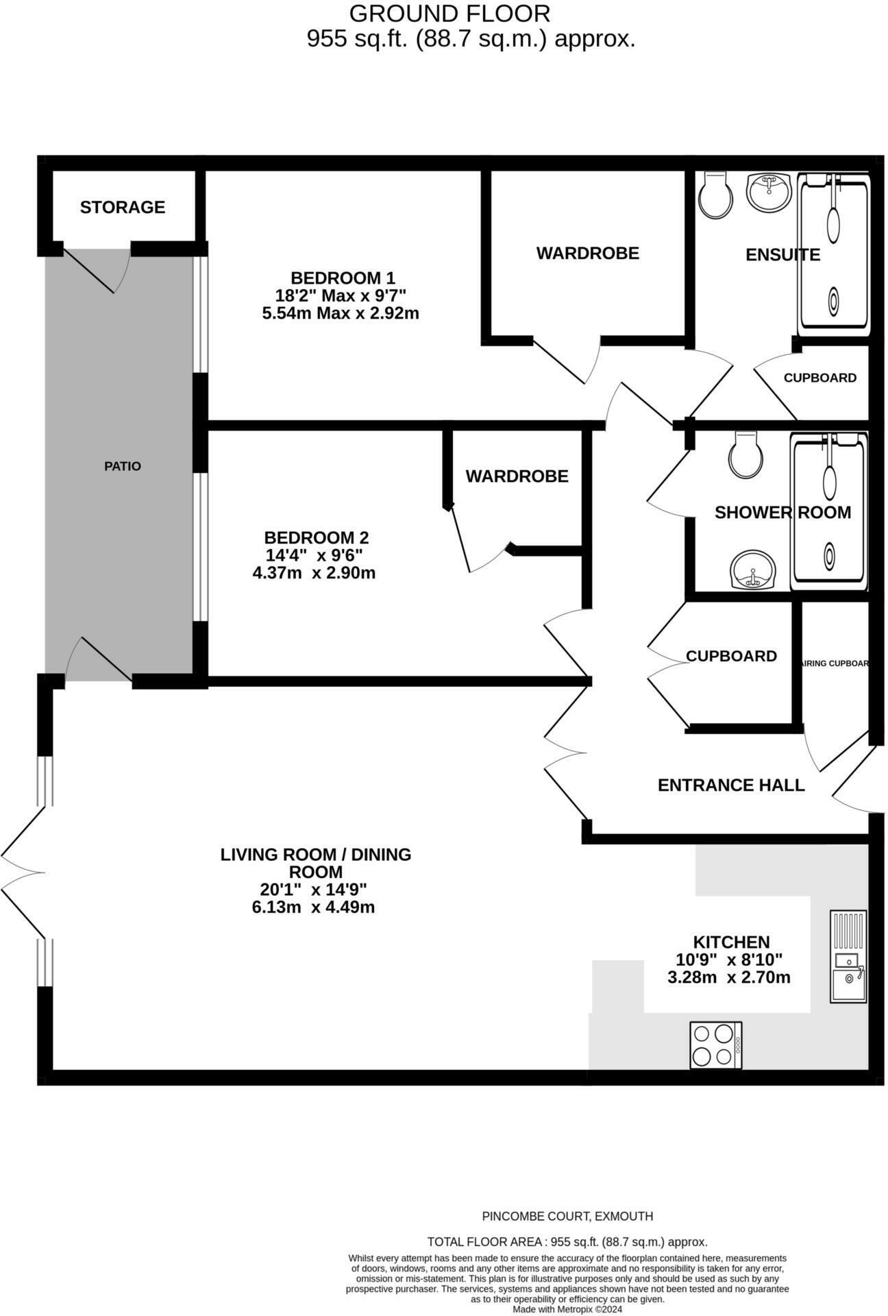
A McCarthy & Stone Built Lifestyle Two Bedroom Luxury Apartment Situated On The Ground Floor Of This Select Development With Impressive Communal Areas, Good Size Patio Sun Terrace, Well Tendered Communal Gardens And Secure Parking Space Enjoying A Convenient Location Close To A Ran...
Property Oracle says ..
This ground floor flat in Exmouth Littleham presents a modern living space with two bedrooms and two bathrooms. The kitchen and bathrooms appear well-maintained, though some areas could benefit from cosmetic updates. The flat includes a small patio and access to communal gardens. Its location offers proximity to schools and transportation, making it a potentially attractive option for small families or commuters. The price is in line with similar properties in the area, making it a reasonable investment.
Therefore, we give this property 6 / 10. *Disclaimer: This is our option and does constitute a recommendation or financial advice. Do your own research. *
- Price
- 7
- Condition
- 7
- Location
- 7
- Land
- 4
- Bedrooms
- 2
- Bathrooms
- 2
The heatmap indicates the level of crime in the area. The color of the heatmap indicates the crime severity and recency.
Metrics Year-on-Year
- Average area value
- 385,000.00 £Decreased by 11.33 %
- Average area rental value
- 1,650.00 £/moIncreased by 37.04 %
- Est rental Yield
- 5.14 %Increased by 54.35 %
- Crime Rate
- 6.00 %Unchanged by 0.00 %
Agent Activity
Pennys created the listing.
Nearby Schools
| Name | Type | Ofsted | Distance |
|---|---|---|---|
| Littleham Church Of England Primary School | Voluntary Controlled School | Requires improvement | 1.03 KM |
| Marpool Primary School | Foundation School | Good | 1.15 KM |
| Bassetts Farm Primary School | Foundation School | Good | 1.26 KM |
| Exmouth & District Children'S Centre | Children's Centre | 1.27 KM | |
| Withycombe Raleigh Church Of England Primary School | Voluntary Controlled School | Good | 1.65 KM |
Images
Nearby Streets
| Name | Average Price | Average Sqft | Distance |
|---|---|---|---|
| Sutton Road | £ 279,950 | 0 | 0.00 KM |
| Buckeridge Road | £ 264,000 | 0 | 0.00 KM |
| The Crescent | £ 0 | 0 | 0.00 KM |
| Chapman Road | £ 0 | 0 | 0.00 KM |
| Wade Close | £ 0 | 0 | 0.00 KM |
Nearby Transport
| Name | NLC | TLC | Distance |
|---|---|---|---|
| Exmouth | 5756 | EXM | 3.21 KM |
| Lympstone Village | 5761 | LYM | 5.74 KM |
| Starcross | 3413 | SCS | 6.85 KM |
| Dawlish Warren | 3409 | DWW | 6.90 KM |
| Lympstone Commando | 5762 | LYC | 7.50 KM |
Nearby Listings
| Address | Price | Type | Score | Distance |
|---|---|---|---|---|
| Buckingham Close, Exmouth, EX8 2JB | £ 325,000 | BUY | 6 / 10 | 0.00 KM |
| Pincombe Court, Buckingham Close, Exmouth | £ 325,000 | BUY | 6 / 10 | 0.00 KM |
| Pincombe Court, Buckingham Close, Exmouth | £ 395,000 | BUY | 7 / 10 | 0.03 KM |
| Buckingham Close, Exmouth | £ 325,000 | BUY | 5 / 10 | 0.05 KM |
| Pincombe Court, Buckingham Close, Exmouth | £ 335,000 | BUY | 7 / 10 | 0.08 KM |
Nearby Properties
| Address | Price | Distance |
|---|---|---|
| 108 Douglas Avenue | £ 395,000 | 0.25 KM |
| 80 Douglas Avenue | £ 365,000 | 0.25 KM |
| 61 Douglas Avenue | £ 300,000 | 0.25 KM |
| 116 Douglas Avenue | £ 247,500 | 0.25 KM |
| 49 Douglas Avenue | £ 390,000 | 0.25 KM |