Howards says ..
OPEN HOUSE JANUARY 24TH (FRIDAY) FROM 3pm CALL TO BOOK YOUR VIEWING SLOT ***CHAIN FREE*** Three bedroom detached house, in need of modernising throughout, located on a desirable road in Gorleston, offering spacious living throughout and sitting close to local amenities
Property Oracle says ..
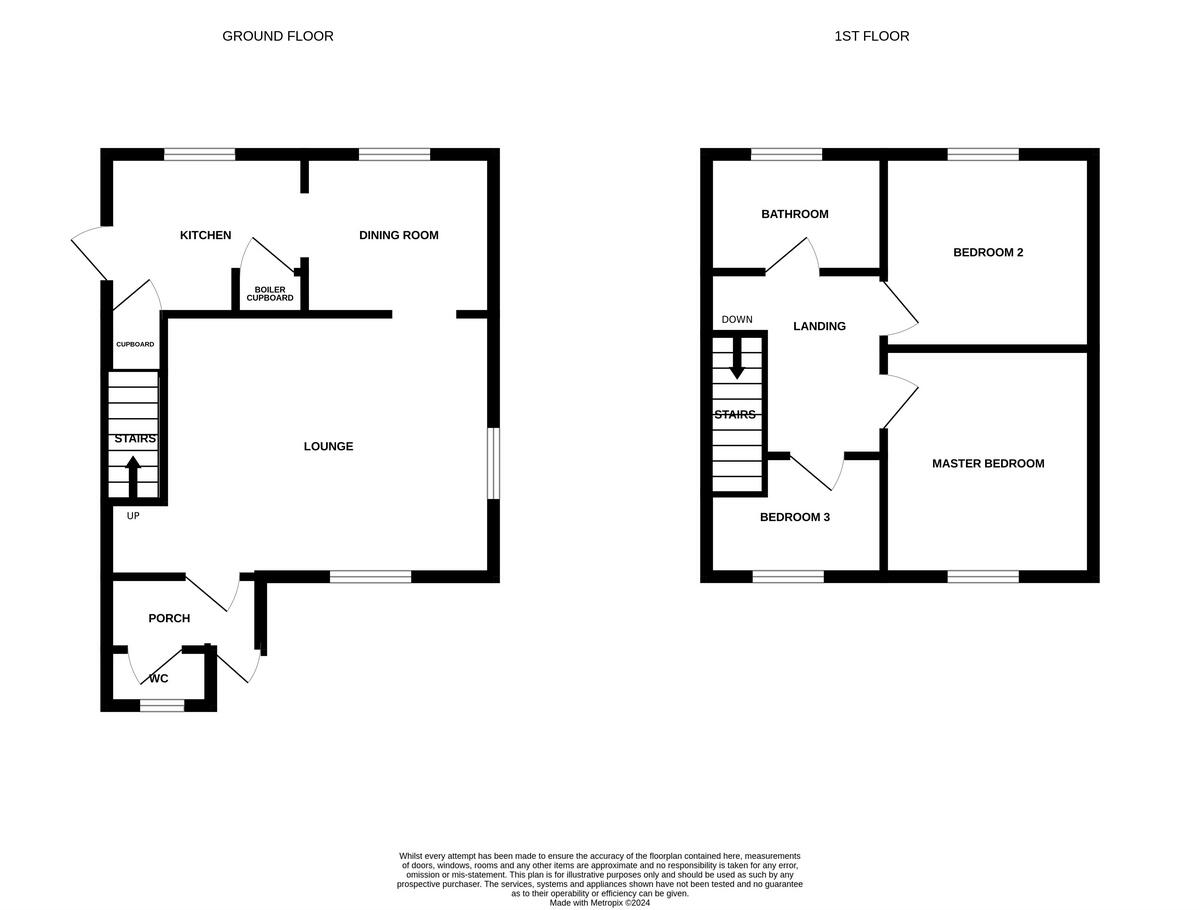
This three-bedroom detached house in Gorleston, Norfolk, presents a mixed bag. Located on Middlestone Close, it benefits from a relatively convenient location near schools and transport links to Great Yarmouth. The nearby Ofsted-rated ‘Good’ primary schools are a significant plus for families. The property itself is habitable, but shows its age, requiring updating and modernization. The kitchen and bathroom fixtures appear dated. The garden is present but small. While the asking price of £220,000 seems reasonable when compared to other properties on Middlestone Close and surrounding areas, the need for renovations should be considered. Potential buyers should factor in the cost of improvements to bring the property up to a more modern standard. The lack of precise square footage for nearby listings limits a more precise price-per-square-foot comparison. The overall impression is a property offering potential, situated in a decent location, but requiring investment to reach its full value.
Therefore, we give this property 6 / 10. *Disclaimer: This is our option and does constitute a recommendation or financial advice. Do your own research. *
- Price
- 7
- Condition
- 6
- Location
- 7
- Land
- 4
- Bedrooms
- 3
- Bathrooms
- 2
- Sqft (est)
- 1,000.00
The heatmap indicates the level of crime in the area. The color of the heatmap indicates the crime severity and recency.
Metrics Year-on-Year
- Average area value
- 232,778.00 £Increased by 7.44 %
- Est sale value
- 232,000.00 £Decreased by 10.08 %
- Average area rental value
- 1,009.00 £/moDecreased by 2.79 %
- Est letting value
- 1,000.00 £/moUnchanged by 0.00 %
- Est rental Yield
- 5.20 %Decreased by 9.57 %
- Crime Rate
- 7.00 %Unchanged by 0.00 %
Agent Activity
Howards created the listing.
Nearby Schools
| Name | Type | Ofsted | Distance |
|---|---|---|---|
| Stradbroke Primary Academy | Academy Sponsor Led | Good | 0.65 KM |
| Peterhouse Cofe Primary Academy | Academy Sponsor Led | Good | 0.67 KM |
| Gorleston And Hopton Children'S Centre | Children's Centre | 0.85 KM | |
| East Norfolk Sixth Form College | Academy 16-19 Converter | Good | 0.90 KM |
| Cliff Park Ormiston Academy | Academy Sponsor Led | Good | 0.96 KM |
Images
Nearby Streets
| Name | Average Price | Average Sqft | Distance |
|---|---|---|---|
| Keppel Road | £ 0 | 0 | 0.00 KM |
| Nelson Road | £ 0 | 0 | 0.00 KM |
| Amethyst Close | £ 0 | 0 | 0.00 KM |
| Kennedy Avenue | £ 0 | 0 | 0.00 KM |
| Saint Edmund Close | £ 0 | 0 | 0.00 KM |
Nearby Transport
| Name | NLC | TLC | Distance |
|---|---|---|---|
| Great Yarmouth | 7328 | GYM | 4.59 KM |
Nearby Listings
| Address | Price | Type | Score | Distance |
|---|---|---|---|---|
| Middlestone Close, Gorleston | £ 220,000 | BUY | 6 / 10 | 0.00 KM |
| Middlestone Close, Gorleston, Great Yarmouth | £ 225,000 | BUY | 7 / 10 | 0.06 KM |
| Middlestone Close, Gorleston, Great Yarmouth | £ 350,000 | BUY | 7 / 10 | 0.06 KM |
| Elmgrove Road, Gorleston, Great Yarmouth | £ 400,000 | BUY | 6 / 10 | 0.07 KM |
| Elmgrove Road, Gorleston, Great Yarmouth | £ 350,000 | BUY | 7 / 10 | 0.08 KM |
Nearby Properties
| Address | Price | Distance |
|---|---|---|
| 9 Middlestone Close | £ 172,500 | 0.05 KM |
| 1b Middlestone Close | £ 180,000 | 0.05 KM |
| 14 Middlestone Close | £ 217,500 | 0.05 KM |
| 11 Middlestone Close | £ 260,000 | 0.05 KM |
| 2 Middlestone Close | £ 202,500 | 0.05 KM |