Gilbert & Rose says ..
*Guide Price £400,000 - £425,000* This beautifully presented three bedroom semi-detached home offers a perfect blend of space, comfort, and practicality, making it ideal for growing families
Property Oracle says ..
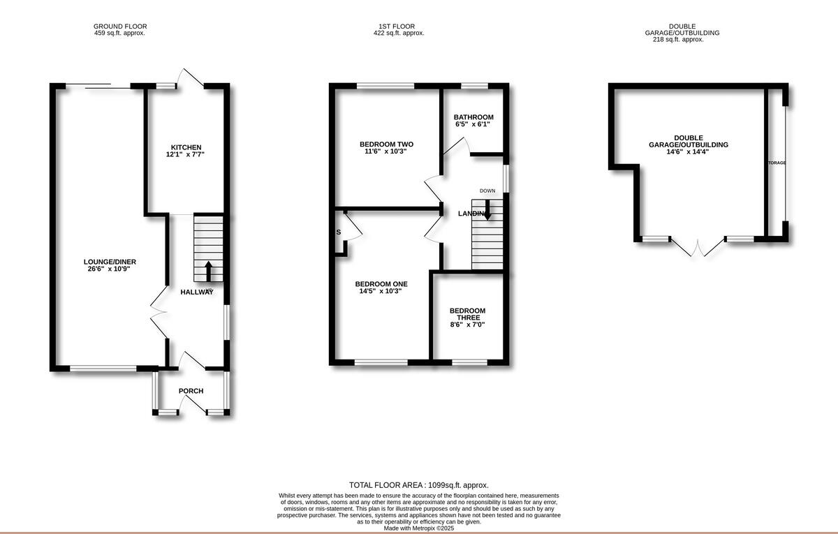
This is a three-bedroom semi-detached house in Hadleigh, Essex. The property benefits from a garden, off-street parking, and a garage. The house appears to be in good condition, with modern interiors. The location is convenient for families, with schools and transportation links nearby. The asking price of £400,000 seems reasonable compared to the average price in the area.
Therefore, we give this property 7 / 10. *Disclaimer: This is our option and does constitute a recommendation or financial advice. Do your own research. *
- Price
- 8
- Condition
- 7
- Location
- 7
- Land
- 6
- Bedrooms
- 3
- Bathrooms
- 1
- Sqft (est)
- 1,099.00
The heatmap indicates the level of crime in the area. The color of the heatmap indicates the crime severity and recency.
Metrics Year-on-Year
- Average area value
- 425,000.00 £Decreased by 8.87 %
- Est sale value
- 398,937.00 £Decreased by 7.16 %
- Average area rental value
- 2,435.00 £/moIncreased by 27.89 %
- Est letting value
- 2,198.00 £/moIncreased by 100.00 %
- Est rental Yield
- 6.88 %Increased by 40.41 %
- Crime Rate
- 19.00 %Unchanged by 0.00 %
Agent Activity
Gilbert & Rose created the listing.
Nearby Schools
| Name | Type | Ofsted | Distance |
|---|---|---|---|
| Hadleigh Infant And Nursery School | Academy Converter | Good | 1.06 KM |
| Hadleigh Junior School | Academy Converter | Good | 1.22 KM |
| Belfairs Academy | Academy Converter | Good | 1.77 KM |
| St. Michael'S School | Other Independent School | 1.94 KM | |
| Westwood Academy | Academy Converter | Outstanding | 2.35 KM |
Images
Nearby Streets
| Name | Average Price | Average Sqft | Distance |
|---|---|---|---|
| Broughton Road | £ 0 | 0 | 0.00 KM |
| Marshall Close | £ 495,000 | 0 | 0.00 KM |
| Warren Road | £ 1,410,000 | 0 | 0.00 KM |
| Thames Close | £ 0 | 0 | 0.00 KM |
| Chapmans Close | £ 750,000 | 0 | 0.00 KM |
Nearby Transport
| Name | NLC | TLC | Distance |
|---|---|---|---|
| Leigh-On-Sea | 7446 | LES | 2.06 KM |
| Rayleigh | 6884 | RLG | 5.10 KM |
| Chalkwell | 7469 | CHW | 5.29 KM |
| Benfleet | 7439 | BEF | 6.94 KM |
| Hockley | 6880 | HOC | 7.07 KM |
Nearby Listings
| Address | Price | Type | Score | Distance |
|---|---|---|---|---|
| Alma Close, Hadleigh, SS7 | £ 400,000 | BUY | 7 / 10 | 0.00 KM |
| Alma Close, Hadleigh | £ 650,000 | BUY | 7 / 10 | 0.10 KM |
| Heather Drive, Hadleigh, Essex | £ 425,000 | BUY | 6 / 10 | 0.12 KM |
| Olive Avenue, Leigh-On-Sea, Essex | £ 675,000 | BUY | 8 / 10 | 0.14 KM |
| Olive Avenue, Leigh-on-sea, SS9 | £ 475,000 | BUY | 7 / 10 | 0.15 KM |
Nearby Properties
| Address | Price | Distance |
|---|---|---|
| 11 Alma Road | £ 450,000 | 0.02 KM |
| 9 Alma Road | £ 288,000 | 0.02 KM |
| 5 Alma Close | £ 325,000 | 0.06 KM |
| 12 Alma Close | £ 248,000 | 0.06 KM |
| 14 Alma Close | £ 179,000 | 0.06 KM |