High Drive, Basingstoke, Hampshire, RG22
By Bridges Estate Agents
£ 400,000
Reviews
3 out of 5 stars
Bridges Estate Agents says ..
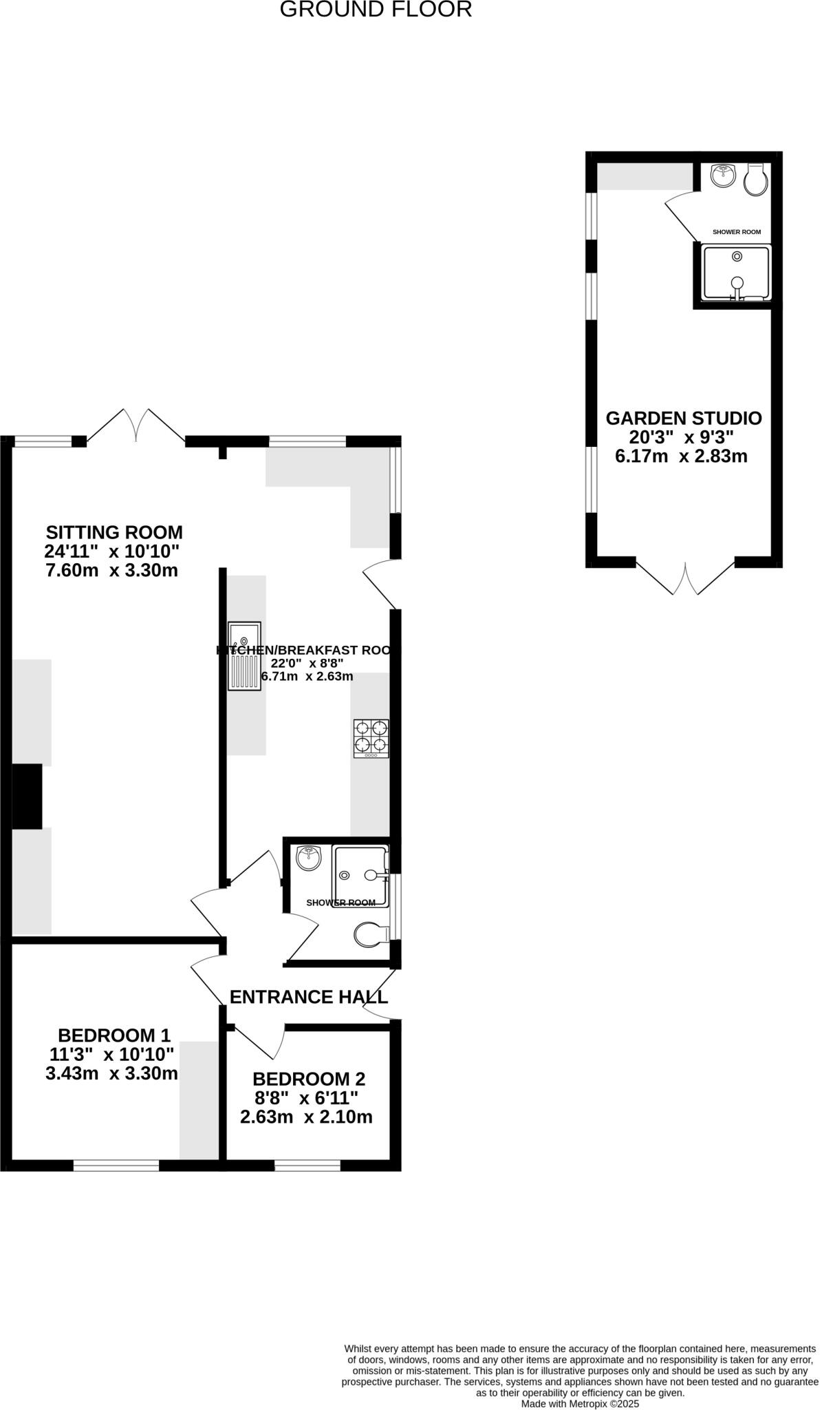
Tucked away in the ever popular Berg Estate, this extended and well presented two bedroom semi-detached bungalow offers bright and spacious living throughout. Ideally located with easy access to bus routes and local shops, the accommodation includes a Howdens fitted kitchen, open plan living and ...
Property Oracle says ..
This is a two-bedroom bungalow located on High Drive in Basingstoke. The property benefits from a modern kitchen and bathroom, and a garden with a shed and patio area. The property is located within a reasonable distance of local schools and Basingstoke station. While the average price per sqft in the area is £589, this property is offered at approximately £491 per sqft, suggesting it’s reasonably priced. The property appears to be in generally good condition, although some rooms may benefit from redecoration. The property is listed with Bridges Estate Agents.
Therefore, we give this property 6 / 10. *Disclaimer: This is our option and does constitute a recommendation or financial advice. Do your own research. *
- Price
- 7
- Condition
- 7
- Location
- 7
- Land
- 6
- Bedrooms
- 2
- Bathrooms
- 0
- Sqft (est)
- 813.99
The heatmap indicates the level of crime in the area. The color of the heatmap indicates the crime severity and recency.
Metrics Year-on-Year
- Average area value
- 1,258,750.00 £Increased by 38.62 %
- Est sale value
- 479,440.11 £Decreased by 3.12 %
- Average area rental value
- 2,017.00 £/moDecreased by 42.17 %
- Est letting value
- 0.00 £/moDecreased by 100.00 %
- Est rental Yield
- 1.92 %Decreased by 58.35 %
- Crime Rate
- 0.00 %
Agent Activity
Bridges Estate Agents created the listing.
Nearby Schools
| Name | Type | Ofsted | Distance |
|---|---|---|---|
| Bishop Challoner Catholic Secondary School | Voluntary Aided School | Good | 0.41 KM |
| Park View Primary School | Community School | Good | 0.49 KM |
| The Coppice Spring Academy | Academy Special Sponsor Led | Good | 0.50 KM |
| Aldworth School | Community School | Requires improvement | 0.65 KM |
| Westside Children'S Centre | Children's Centre | 0.69 KM |
Images
Nearby Streets
| Name | Average Price | Average Sqft | Distance |
|---|---|---|---|
| Winchester Road | £ 375,000 | 0 | 0.00 KM |
| Alliston Way | £ 0 | 0 | 0.00 KM |
| Dellwood | £ 0 | 0 | 0.00 KM |
| The Wolds | £ 0 | 0 | 0.00 KM |
| Cheviot Close | £ 0 | 0 | 0.00 KM |
Nearby Transport
| Name | NLC | TLC | Distance |
|---|---|---|---|
| Basingstoke | 5520 | BSK | 4.08 KM |
Nearby Listings
| Address | Price | Type | Score | Distance |
|---|---|---|---|---|
| High Drive, Basingstoke, Hampshire, RG22 | £ 400,000 | BUY | 6 / 10 | 0.00 KM |
| Brackley Way, Basingstoke | £ 390,000 | BUY | 7 / 10 | 0.09 KM |
| Pinkerton Road, Basingstoke, RG22 | £ 275,000 | BUY | Unknown | 0.14 KM |
| Brackley Way, Basingstoke, RG22 6LL | £ 360,000 | BUY | 6 / 10 | 0.16 KM |
| Pinkerton Road, Basingstoke | £ 138,000 | BUY | Unknown | 0.18 KM |
Nearby Properties
| Address | Price | Distance |
|---|---|---|
| 82 High Drive | £ 420,000 | 0.06 KM |
| 37 High Drive | £ 217,500 | 0.07 KM |
| 74 High Drive | £ 322,500 | 0.07 KM |
| 71 Brackley Way | £ 220,000 | 0.07 KM |
| 115 Pinkerton Road | £ 165,000 | 0.10 KM |