Daniels says ..
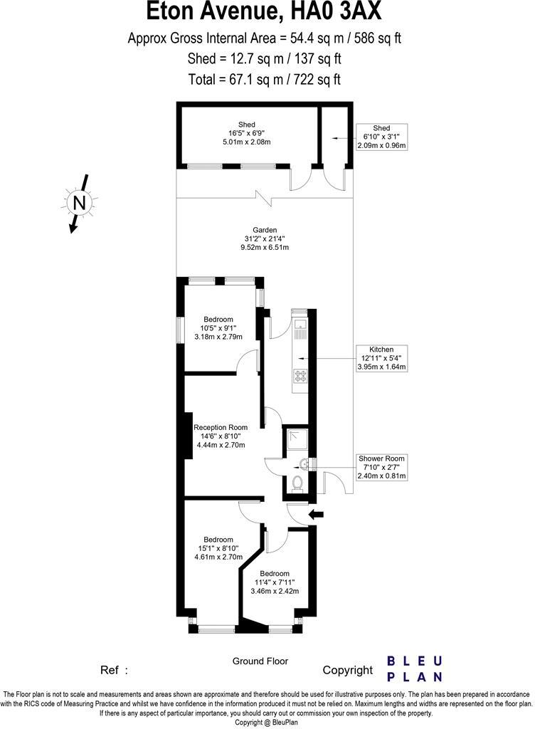
Daniels are delighted to be appointed sole agents on this chain-free three-bedroom detached bungalow, situated on a popular residential road on the borders of Sudbury and North Wembley. The property benefits from its own private garden, complete with an outbuilding to the rear – an excellent opti...
Property Oracle says ..
This is a 3-bedroom detached bungalow located on Eton Avenue in Wembley. The property is in need of renovation but offers a garden and is located in a well-connected area. The listing price is competitive for the location, considering the property’s condition and size.
Therefore, we give this property 5 / 10. *Disclaimer: This is our option and does constitute a recommendation or financial advice. Do your own research. *
- Price
- 7
- Condition
- 4
- Location
- 7
- Land
- 5
- Bedrooms
- 3
- Bathrooms
- 1
- Sqft (est)
- 722.26
The heatmap indicates the level of crime in the area. The color of the heatmap indicates the crime severity and recency.
Metrics Year-on-Year
- Average area value
- 497,772.00 £Increased by 11.11 %
- Est sale value
- 432,633.74 £Increased by 37.70 %
- Average area rental value
- 1,863.00 £/moDecreased by 5.72 %
- Est letting value
- 1,444.52 £/moIncreased by 100.00 %
- Est rental Yield
- 4.49 %Decreased by 15.12 %
- Crime Rate
- 13.00 %Unchanged by 0.00 %
Agent Activity
Daniels created the listing.
Nearby Schools
| Name | Type | Ofsted | Distance |
|---|---|---|---|
| Sudbury Primary School | Academy Converter | Good | 0.66 KM |
| Wembley High Technology College | Academy Converter | 0.86 KM | |
| East Lane Primary School | Academy Converter | Outstanding | 1.08 KM |
| North Brent School | Free Schools | 1.08 KM | |
| Barham Primary School | Community School | Good | 1.26 KM |
Images
Nearby Streets
| Name | Average Price | Average Sqft | Distance |
|---|---|---|---|
| Allendale Road | £ 367,500 | 0 | 0.00 KM |
| Chestnut Grove | £ 528,333 | 0 | 0.00 KM |
| Chestnut Avenue | £ 621,667 | 0 | 0.00 KM |
| Beaumont Court | £ 1,100,000 | 0 | 0.00 KM |
| Pasture Close | £ 916,667 | 0 | 0.00 KM |
Nearby Transport
| Name | NLC | TLC | Distance |
|---|---|---|---|
| Sudbury And Harrow Road | 1483 | SUD | 0.25 KM |
| North Wembley | 1422 | NWB | 1.36 KM |
| South Kenton | 1453 | SOK | 1.67 KM |
| Wembley Central | 1423 | WMB | 2.07 KM |
| Sudbury Hill Harrow | 1484 | SDH | 2.35 KM |
Nearby Listings
| Address | Price | Type | Score | Distance |
|---|---|---|---|---|
| Eton Avenue, Wembley | £ 475,000 | BUY | 5 / 10 | 0.00 KM |
| Eton Avenue, Wembley | £ 700,000 | BUY | 6 / 10 | 0.03 KM |
| Eton Avenue, Wembley, HA0 | £ 550,000 | BUY | 6 / 10 | 0.04 KM |
| Eton Avenue, Sudbury, Wembley, HA0 | £ 800,000 | BUY | 6 / 10 | 0.06 KM |
| Rugby Avenue, Wembley | £ 540,000 | BUY | 6 / 10 | 0.08 KM |
Nearby Properties
| Address | Price | Distance |
|---|---|---|
| 30 Eton Avenue | £ 305,000 | 0.04 KM |
| 26 Eton Avenue | £ 355,000 | 0.04 KM |
| 42 Eton Avenue | £ 308,000 | 0.06 KM |
| 28 Eton Avenue | £ 315,000 | 0.06 KM |
| 40 Eton Avenue | £ 425,000 | 0.06 KM |