The Thatched Cottage, Aylmerton Road, Sustead, Norfolk
By Stobart & Hurrell
£ 550,000
Reviews
3 out of 5 stars
Stobart & Hurrell says ..
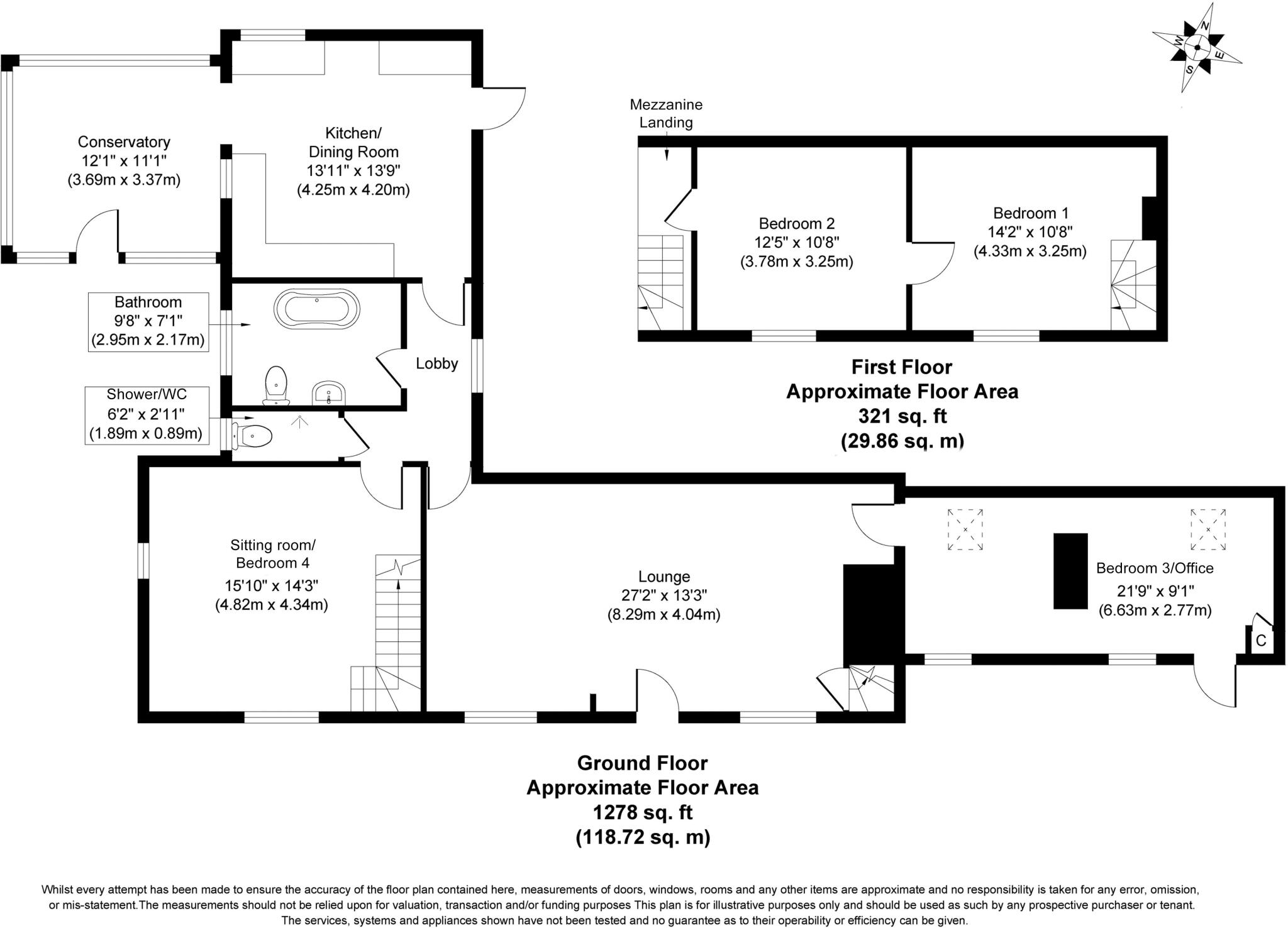
** NO ONWARD CHAIN** The Thatched Cottage is a detached, Grade II listed period property, that has retained many of its original features including beams, fireplaces and flooring throughout. It affords generous and versatile accommodation for any modern-day family. Rurally located on the ou...
Property Oracle says ..
This Grade II listed thatched cottage in Sustead, Norfolk offers a unique blend of period charm and modern conveniences. The property boasts exposed beams, fireplaces, and other original features characteristic of its heritage. The photographs show that the kitchen has undergone a recent renovation, which enhances the property’s overall appeal and functionality. The inclusion of a conservatory adds extra living space. However, while some rooms exhibit a rustic charm, other areas may require some updating or refurbishment to meet modern living standards. The property sits in a rural setting, offering peace and quiet, yet still within reasonable traveling distance to amenities and transportation. The outdoor space appears adequate, with a garden offering potential for enhancement. The asking price of £550,000 falls within a range of similar properties in the area, yet the lack of precise measurements and information on improvements needed makes it hard to definitively assert value for money. The overall impression is that this property would appeal to buyers seeking a character home in a peaceful, countryside setting, however prospective buyers should undertake a thorough survey to assess the extent of any necessary work. The property’s appeal lies in its unique character and its location, however the condition and cost of upgrading needs to be factored into the buying decision.
Therefore, we give this property 6 / 10. *Disclaimer: This is our option and does constitute a recommendation or financial advice. Do your own research. *
- Price
- 7
- Condition
- 6
- Location
- 7
- Land
- 4
- Bedrooms
- 3
- Bathrooms
- 1
- Sqft (est)
- 1,277.89
The heatmap indicates the level of crime in the area. The color of the heatmap indicates the crime severity and recency.
Metrics Year-on-Year
- Average area value
- 608,722.00 £Increased by 14.72 %
- Est sale value
- 470,263.52 £Increased by 13.23 %
- Average area rental value
- 1,408.00 £/moIncreased by 52.22 %
- Est letting value
- 0.00 £/mo
- Est rental Yield
- 2.78 %Increased by 33.01 %
- Crime Rate
- 0.00 %
Agent Activity
Stobart & Hurrell created the listing.
Nearby Schools
| Name | Type | Ofsted | Distance |
|---|---|---|---|
| Gresham Village School | Academy Converter | 2.38 KM | |
| Aldborough Primary School | Foundation School | Good | 3.63 KM |
| St Andrew'S School | Other Independent Special School | Good | 3.77 KM |
| Argyll House | Other Independent Special School | Inadequate | 4.46 KM |
| Beeston Hall School | Other Independent School | 5.08 KM |
Images
Nearby Streets
| Name | Average Price | Average Sqft | Distance |
|---|---|---|---|
| Sustead Lane | £ 700,000 | 0 | 0.00 KM |
Nearby Transport
| Name | NLC | TLC | Distance |
|---|---|---|---|
| West Runton | 7329 | WRN | 4.66 KM |
| Roughton Road | 7297 | RNR | 6.40 KM |
| Cromer | 7295 | CMR | 6.46 KM |
| Sheringham | 7319 | SHM | 6.71 KM |
Nearby Listings
| Address | Price | Type | Score | Distance |
|---|---|---|---|---|
| The Thatched Cottage, Aylmerton Road, Sustead, Norfolk | £ 550,000 | BUY | 6 / 10 | 0.00 KM |
| School Road, Aylmerton, Norwich | £ 375,000 | BUY | 7 / 10 | 0.38 KM |
| Willow Cottage, Felbrigg Lodge, School Road, Aylmerton, Norwich, Norfolk NR11 8RA | £ 170,000 | BUY | 6 / 10 | 0.41 KM |
| Willow Cottage, Felbrigg Lodge, School Road, Aylmerton, Norwich, Norfolk NR11 8RA | £ 185,000 | BUY | 6 / 10 | 0.41 KM |
| Aylmerton Road, Sustead, Norfolk | £ 650,000 | BUY | 6 / 10 | 0.51 KM |
Nearby Properties
| Address | Price | Distance |
|---|---|---|
| Ashgrove | £ 217,000 | 1.43 KM |
| 57a Sustead Road | £ 190,000 | 1.43 KM |
| Wingfield | £ 245,000 | 1.43 KM |
| Danesbury | £ 230,000 | 1.43 KM |
| Mol-rus | £ 158,000 | 1.43 KM |