Julian Marks says ..
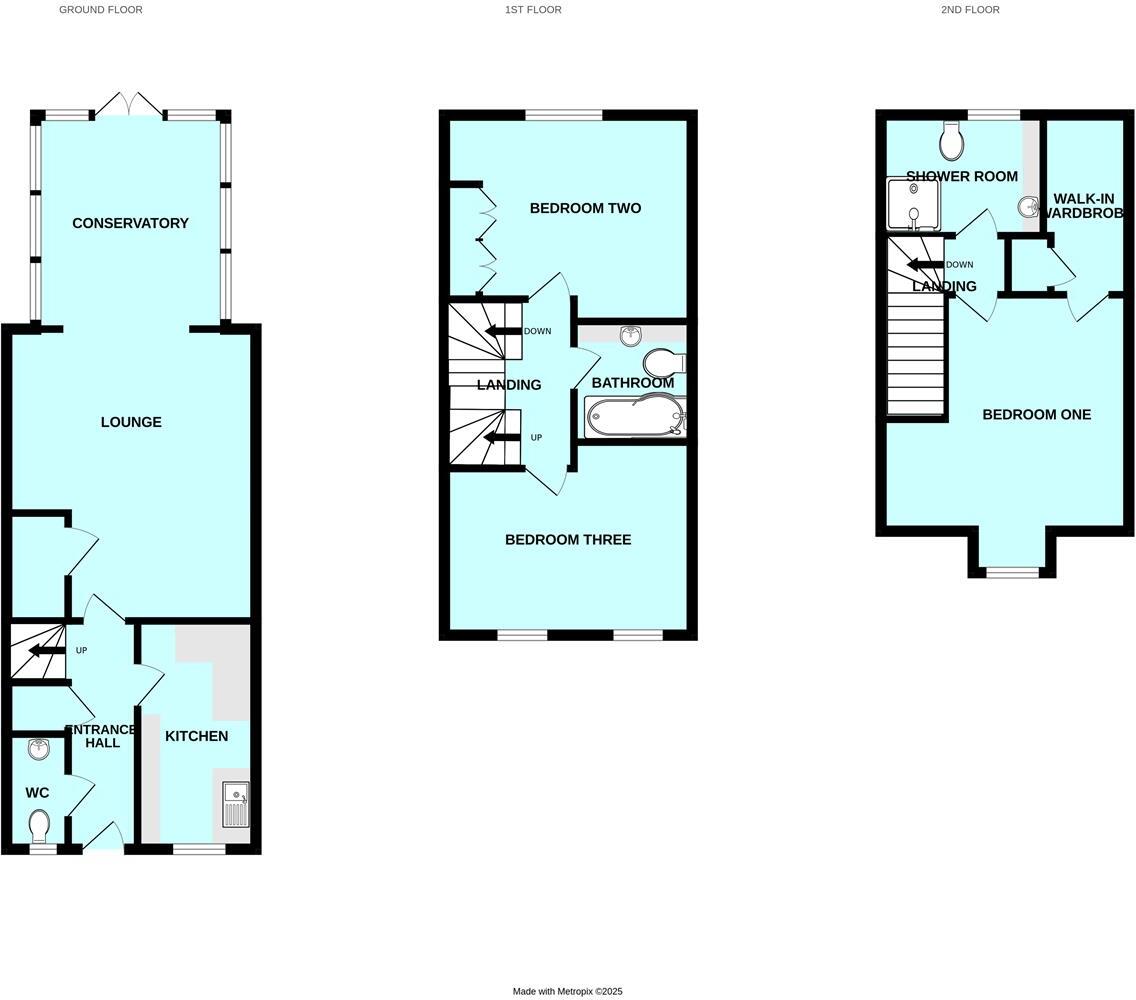
This well-presented property is conveniently located for local schools & briefly comprises an entrance hall, lounge/diner, conservatory, kitchen & downstairs cloakroom with 2 spacious bedrooms & a family bathroom. The top floor hosts the master bedroom which has a walk-in wardrobe & its own showe...
Property Oracle says ..
Therefore, we give this property 6 / 10. *Disclaimer: This is our option and does constitute a recommendation or financial advice. Do your own research. *
- Price
- 6
- Condition
- 8
- Location
- 7
- Land
- 5
- Bedrooms
- 3
- Bathrooms
- 2
- Sqft (est)
- 955.00
The heatmap indicates the level of crime in the area. The color of the heatmap indicates the crime severity and recency.
Metrics Year-on-Year
- Average area value
- 251,250.00 £Decreased by 14.94 %
- Est sale value
- 283,635.00 £Decreased by 1.33 %
- Average area rental value
- 1,138.00 £/moIncreased by 4.88 %
- Est letting value
- 955.00 £/moUnchanged by 0.00 %
- Est rental Yield
- 5.44 %Increased by 23.36 %
- Crime Rate
- 3.00 %Unchanged by 0.00 %
from 295,390.00 £
from 287,455.00 £
from 1,085.00 £/mo
from 955.00 £/mo
from 4.41 %
from 3.00 %
Agent Activity
Julian Marks marked this listing as sold.
Julian Marks created the listing.
Nearby Schools
| Name | Type | Ofsted | Distance |
|---|---|---|---|
| St Boniface'S Rc College | Academy Sponsor Led | Requires improvement | 0.44 KM |
| Manadon Vale Primary School | Academy Converter | Good | 0.65 KM |
| Whitleigh Community Primary School | Foundation School | Good | 1.23 KM |
| Widey Court Primary School | Academy Converter | Good | 1.27 KM |
| Popin Children'S Centre | Children's Centre | 1.42 KM |
Images
Nearby Streets
| Name | Average Price | Average Sqft | Distance |
|---|---|---|---|
| Frobisher Approach | £ 0 | 0 | 0.00 KM |
| Rothesay Gardens | £ 180,000 | 0 | 0.00 KM |
| Dryden Avenue | £ 0 | 0 | 0.00 KM |
| Berkeley Square | £ 545,000 | 0 | 0.00 KM |
| St Joseph's Close | £ 360,000 | 0 | 0.00 KM |
Nearby Transport
| Name | NLC | TLC | Distance |
|---|---|---|---|
| Plymouth | 3580 | PLY | 3.29 KM |
| Devonport | 3579 | DPT | 4.70 KM |
| Keyham | 3571 | KEY | 4.84 KM |
| Dockyard (Devonport) | 3588 | DOC | 4.90 KM |
| St Budeaux Ferry Road | 3590 | SBF | 5.28 KM |
Nearby Listings
| Address | Price | Type | Score | Distance |
|---|---|---|---|---|
| Manadon, Plymouth | £ 300,000 | BUY | 6 / 10 | 0.00 KM |
| Manadon, Plymouth | £ 300,000 | BUY | 7 / 10 | 0.02 KM |
| Frobisher Approach, Manadon Park, Plymouth | £ 250,000 | BUY | 7 / 10 | 0.05 KM |
| Frobisher Approach, Manadon Park, Plymouth | £ 260,000 | BUY | 6 / 10 | 0.08 KM |
| Temeraire Road, Manadon Park, Plymouth | £ 525,000 | BUY | 7 / 10 | 0.10 KM |
Nearby Properties
| Address | Price | Distance |
|---|---|---|
| 35 Frobisher Approach | £ 133,000 | 0.08 KM |
| 27 Frobisher Approach | £ 156,000 | 0.08 KM |
| 32 Frobisher Approach | £ 160,000 | 0.08 KM |
| 12 Frobisher Approach | £ 155,000 | 0.08 KM |
| 16 Frobisher Approach | £ 170,000 | 0.08 KM |