Naylor Powell says ..
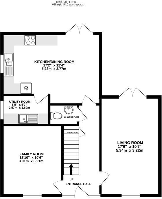
Constructed by Linden Homes in 2023, this 'Knightley' style home is brilliantly designed for the ever growing family and well-presented throughout. The detached house has sizeable accommodation throughout and benefits from an East facing garden. The ground floor houses an entrance hall, living ro...
Property Oracle says ..
This is a well-presented, modern detached property in Cam West. It benefits from a convenient location near transport links and schools. The house appears to be in excellent condition and features a well-maintained garden. The price is reasonable for the area, although the square footage is below average.
Therefore, we give this property 7 / 10. *Disclaimer: This is our option and does constitute a recommendation or financial advice. Do your own research. *
- Price
- 6
- Condition
- 9
- Location
- 7
- Land
- 6
- Bedrooms
- 4
- Bathrooms
- 2
- Sqft (est)
- 495.96
The heatmap indicates the level of crime in the area. The color of the heatmap indicates the crime severity and recency.
Metrics Year-on-Year
- Average area value
- 251,538.00 £Increased by 21.55 %
- Est sale value
- 102,663.72 £Decreased by 4.17 %
- Average area rental value
- 754.00 £/moDecreased by 18.22 %
- Est letting value
- 0.00 £/mo
- Est rental Yield
- 3.60 %Decreased by 32.71 %
- Crime Rate
- 9.00 %Unchanged by 0.00 %
Agent Activity
Naylor Powell created the listing.
Nearby Schools
| Name | Type | Ofsted | Distance |
|---|---|---|---|
| Slimbridge Primary School | Community School | Good | 1.73 KM |
| Cam Hopton Church Of England Primary School | Voluntary Aided School | Good | 1.96 KM |
| Cam Everlands Primary School | Community School | Good | 2.04 KM |
| Cam Woodfield Junior School | Academy Sponsor Led | 2.23 KM | |
| Cam Woodfield Infant School | Community School | Good | 2.23 KM |
Images
Nearby Streets
| Name | Average Price | Average Sqft | Distance |
|---|---|---|---|
| Whatling Way | £ 226,875 | 0 | 0.00 KM |
| Barley Close | £ 472,500 | 0 | 0.00 KM |
| Brunel Road | £ 445,000 | 0 | 0.00 KM |
| Pippen Leaze | £ 452,500 | 0 | 0.00 KM |
| Otter Way | £ 0 | 0 | 0.00 KM |
Nearby Transport
| Name | NLC | TLC | Distance |
|---|---|---|---|
| Cam And Dursley | 3238 | CDU | 0.66 KM |
| Stonehouse | 4770 | SHU | 9.90 KM |
Nearby Listings
| Address | Price | Type | Score | Distance |
|---|---|---|---|---|
| Whatling Way, Cam, Dursley | £ 465,000 | BUY | 7 / 10 | 0.00 KM |
| Whatling Way, Box Road, Cam, Dursley | £ 420,000 | BUY | 6 / 10 | 0.07 KM |
| Whatling Way, Box Road, Cam | £ 395,000 | BUY | 6 / 10 | 0.07 KM |
| Whatling Way, Cam, Dursley, Gloucestershire, GL11 | £ 400,000 | BUY | 7 / 10 | 0.10 KM |
| Little Elms, Cam, Dursley | £ 580,000 | BUY | 7 / 10 | 0.15 KM |
Nearby Properties
| Address | Price | Distance |
|---|---|---|
| 25 Box Road | £ 230,000 | 0.15 KM |
| 3 Box Road | £ 375,000 | 0.15 KM |
| 13 Box Road | £ 250,000 | 0.15 KM |
| 29 Box Road | £ 237,000 | 0.15 KM |
| 21 Box Road | £ 305,000 | 0.15 KM |