Bridgehouse Mills, River View, Haworth, BD22 8SB
By Davies Properties
£ 220,000
Reviews
3 out of 5 stars
Davies Properties says ..
Nestled in the historic village of Haworth, this elegant building enjoys a prime location within a short stroll of the renowned Worth Valley Steam Railway and the picturesque cobbled Main Street leading to the Brontë Parsonage Museum, the former residence of the illustrious Brontë family. Meticul...
Property Oracle says ..
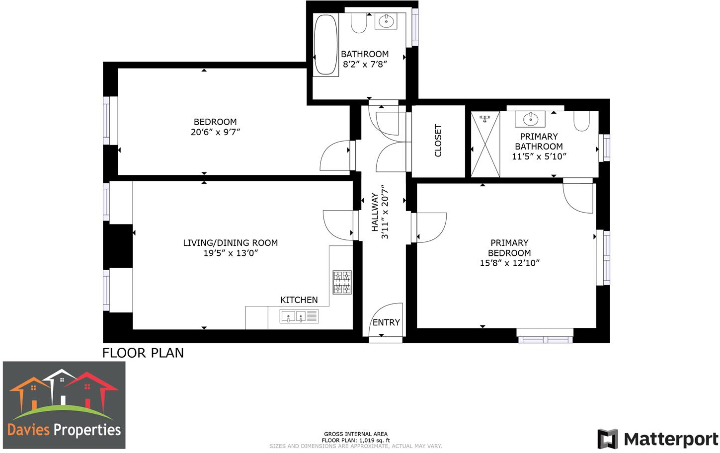
This two-bedroom, two-bathroom apartment in Bridgehouse Mills, Haworth, offers a modern and stylish living experience within a highly desirable location. The property boasts a well-appointed interior, with a contemporary kitchen and bathrooms, and spacious bedrooms. The overall condition appears excellent, suggesting minimal need for immediate repairs or upgrades. Haworth’s charming village setting, close proximity to the Worth Valley Steam Railway and the Brontë Parsonage Museum, and relatively convenient access to transport links, are considerable advantages. However, a key drawback is the lack of outdoor space, a common limitation with apartments. While the list price is comparable to other properties in the area, a more definitive assessment of value requires more details on the apartment’s size and specific features. The absence of plot size information prevents a comprehensive valuation and limits the ability to determine exceptional value for money.
Therefore, we give this property 6 / 10. *Disclaimer: This is our option and does constitute a recommendation or financial advice. Do your own research. *
- Price
- 7
- Condition
- 8
- Location
- 9
- Land
- 1
- Bedrooms
- 2
- Bathrooms
- 2
- Sqft (est)
- 1,019.00
The heatmap indicates the level of crime in the area. The color of the heatmap indicates the crime severity and recency.
Metrics Year-on-Year
- Average area value
- 856,250.00 £Increased by 15.74 %
- Est sale value
- 723,490.00 £Increased by 21.37 %
- Average area rental value
- 2,000.00 £/moDecreased by 15.25 %
- Est letting value
- 1,019.00 £/moUnchanged by 0.00 %
- Est rental Yield
- 2.80 %Decreased by 26.89 %
- Crime Rate
- 23.00 %Unchanged by 0.00 %
Agent Activity
Davies Properties created the listing.
Nearby Schools
| Name | Type | Ofsted | Distance |
|---|---|---|---|
| Treetops Children'S Centre | Children's Centre Linked Site | 0.75 KM | |
| Haworth Primary School | Academy Converter | Good | 0.75 KM |
| Lees Primary School | Academy Converter | 1.52 KM | |
| Oakworth Primary School | Academy Converter | 1.87 KM | |
| Oxenhope Cofe Primary School | Academy Converter | Good | 1.97 KM |
Images
Nearby Streets
| Name | Average Price | Average Sqft | Distance |
|---|---|---|---|
| Thomas Street | £ 0 | 0 | 0.00 KM |
| May Street | £ 0 | 0 | 0.00 KM |
| Park Street | £ 0 | 0 | 0.00 KM |
| Bright Street | £ 149,995 | 0 | 0.00 KM |
| Pine Street | £ 0 | 0 | 0.00 KM |
Nearby Transport
| Name | NLC | TLC | Distance |
|---|---|---|---|
| Keighley | 8468 | KEI | 6.78 KM |
| Steeton And Silsden | 8469 | SON | 7.98 KM |
Nearby Listings
| Address | Price | Type | Score | Distance |
|---|---|---|---|---|
| Bridgehouse Mills, River View, Haworth, BD22 8SB | £ 220,000 | BUY | 6 / 10 | 0.00 KM |
| River View, Haworth, Keighley, BD22 | £ 235,000 | BUY | 7 / 10 | 0.06 KM |
| River View, Haworth, Keighley, BD22 | £ 160,000 | BUY | 7 / 10 | 0.07 KM |
| River View, Haworth, Keighley, BD22 | £ 380,000 | BUY | 7 / 10 | 0.10 KM |
| River View, Haworth, Keighley, West Yorkshire, BD22 | £ 320,000 | BUY | 7 / 10 | 0.10 KM |
Nearby Properties
| Address | Price | Distance |
|---|---|---|
| 10 Surgery Street | £ 92,000 | 0.04 KM |
| 2 Thomas Street | £ 155,000 | 0.12 KM |
| 7 May Street | £ 111,000 | 0.14 KM |
| 1 May Street | £ 85,000 | 0.14 KM |
| 4 May Street | £ 92,500 | 0.14 KM |