igomove says ..
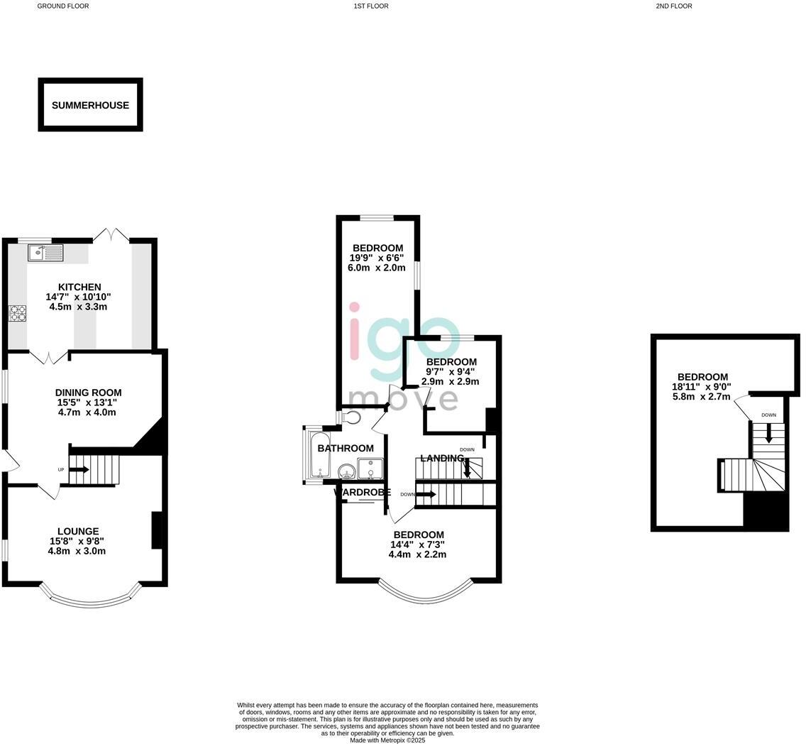
Igomove are delighted to offer to the market this exclusive four bedroom, three storey, semi-detached property, situated within the much sought after and popular residential area in Linthorpe. Meticulously refurbished and modernised, this property ensures a fresh and timeless living space ready t...
Property Oracle says ..
This is a four-bedroom semi-detached property on The Avenue, Middlesbrough. The house benefits from a modern kitchen and bathroom, suggesting recent renovations. The property includes a garden. The house is located close to local schools and amenities. The listing price of £275,000 appears reasonable when compared to similar properties in the area.
Therefore, we give this property 7 / 10. *Disclaimer: This is our option and does constitute a recommendation or financial advice. Do your own research. *
- Price
- 7
- Condition
- 8
- Location
- 7
- Land
- 7
- Bedrooms
- 4
- Bathrooms
- 1
- Sqft (est)
- 1,008.83
The heatmap indicates the level of crime in the area. The color of the heatmap indicates the crime severity and recency.
Metrics Year-on-Year
- Average area value
- 339,299.00 £Increased by 1.34 %
- Est sale value
- 367,214.12 £Increased by 25.52 %
- Average area rental value
- 1,364.00 £/moIncreased by 34.92 %
- Est letting value
- 1,008.83 £/mo
- Est rental Yield
- 4.82 %Increased by 33.15 %
- Crime Rate
- 2.00 %Unchanged by 0.00 %
Agent Activity
igomove created the listing.
Nearby Schools
| Name | Type | Ofsted | Distance |
|---|---|---|---|
| St Edward'S Catholic Primary School | Academy Converter | 0.48 KM | |
| The Northern School Of Art | Further Education | Outstanding | 0.61 KM |
| Newham Bridge Primary School | Community School | Good | 0.81 KM |
| Beverley School | Community Special School | Good | 0.84 KM |
| Hollis Academy | Academy Special Sponsor Led | Requires improvement | 0.90 KM |
Images
Nearby Streets
| Name | Average Price | Average Sqft | Distance |
|---|---|---|---|
| Benton Road | £ 0 | 0 | 0.00 KM |
| Highbury Avenue | £ 190,000 | 0 | 0.00 KM |
| Brookside Avenue | £ 0 | 0 | 0.00 KM |
| Lichfield Road | £ 144,000 | 0 | 0.00 KM |
| Sutton Way | £ 149,950 | 0 | 0.00 KM |
Nearby Transport
| Name | NLC | TLC | Distance |
|---|---|---|---|
| Middlesbrough | 7929 | MBR | 2.95 KM |
| James Cook University Hospital | 9507 | JCH | 3.47 KM |
| Marton | 7947 | MTO | 4.69 KM |
| Thornaby | 7976 | TBY | 6.83 KM |
| Gypsy Lane | 7930 | GYP | 7.07 KM |
Nearby Listings
| Address | Price | Type | Score | Distance |
|---|---|---|---|---|
| The Avenue, Middlesbrough | £ 275,000 | BUY | 7 / 10 | 0.00 KM |
| The Avenue, Middlesbrough | £ 300,000 | BUY | 7 / 10 | 0.01 KM |
| The Avenue, Middlesbrough | £ 240,000 | BUY | 7 / 10 | 0.01 KM |
| The Avenue, Linthorpe, Middlesbrough, TS5 | £ 350,000 | BUY | 6 / 10 | 0.06 KM |
| Emerson Avenue, Middlesbrough | £ 300,000 | BUY | 6 / 10 | 0.07 KM |
Nearby Properties
| Address | Price | Distance |
|---|---|---|
| 114 The Avenue | £ 130,000 | 0.04 KM |
| 118 The Avenue | £ 120,500 | 0.04 KM |
| 92 The Avenue | £ 120,000 | 0.04 KM |
| 110 The Avenue | £ 130,000 | 0.04 KM |
| 121 The Avenue | £ 185,000 | 0.06 KM |