Edward Mellor Ltd says ..
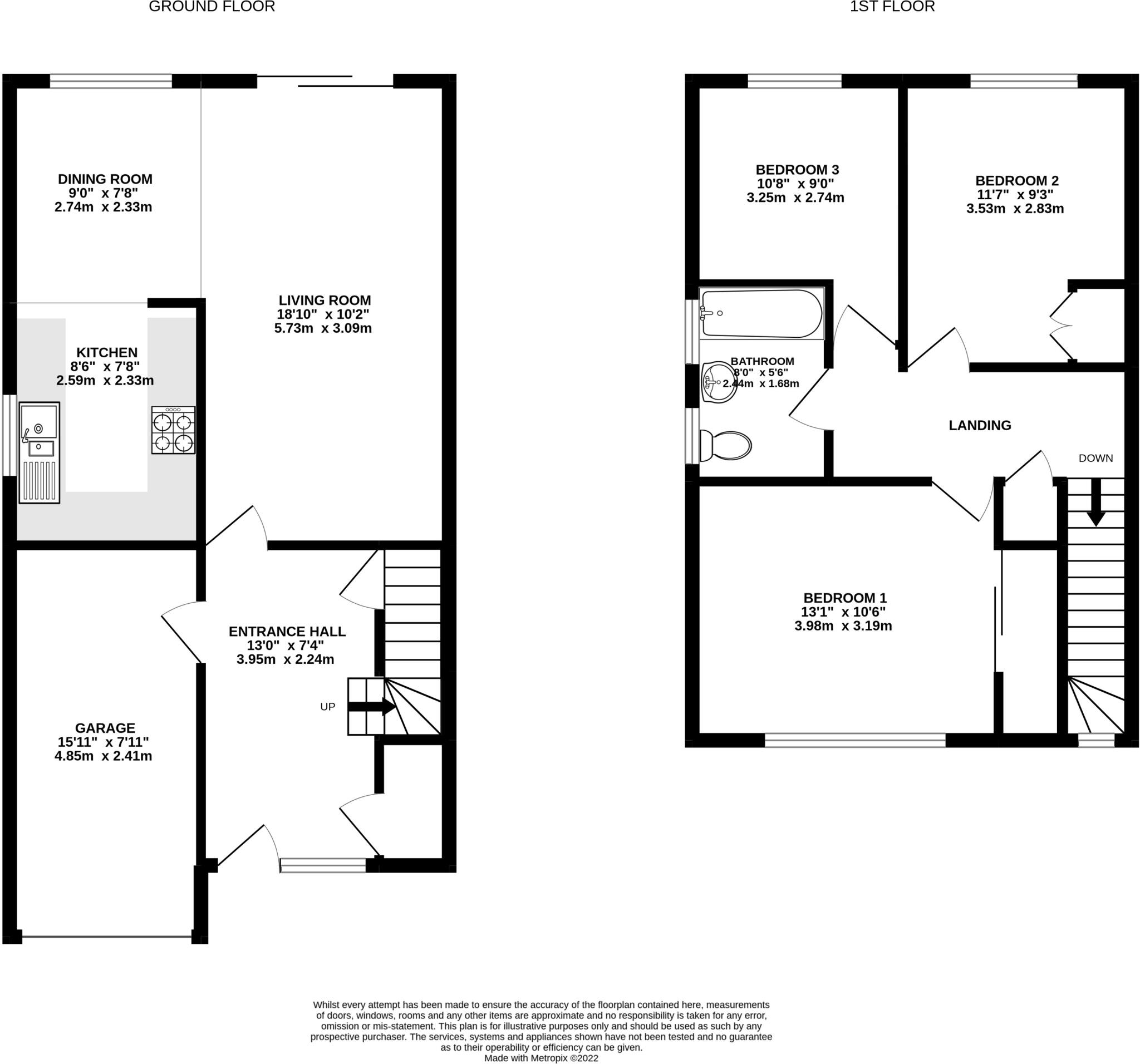
Situated in the desirable residential location of Edgeley lies this well proportioned, three bedroom property offered for sale with no vendor chain. Positioned on a favourable residential road the property is conveniently positioned to local commuter links, Alexa...
Property Oracle says ..
Therefore, we give this property 5 / 10. *Disclaimer: This is our option and does constitute a recommendation or financial advice. Do your own research. *
- Price
- 4
- Condition
- 4
- Location
- 7
- Land
- 6
- Bedrooms
- 3
- Bathrooms
- 1
- Sqft (est)
- 929.14
The heatmap indicates the level of crime in the area. The color of the heatmap indicates the crime severity and recency.
Metrics Year-on-Year
- Average area value
- 209,286.00 £Decreased by 22.79 %
- Est sale value
- 168,174.34 £Decreased by 27.60 %
- Average area rental value
- 1,297.00 £/moIncreased by 14.37 %
- Est letting value
- 929.14 £/moUnchanged by 0.00 %
- Est rental Yield
- 7.44 %Increased by 48.21 %
- Crime Rate
- 0.00 %
from 271,052.00 £
from 232,285.00 £
from 1,134.00 £/mo
from 929.14 £/mo
from 5.02 %
from 0.00 %
Agent Activity
Edward Mellor Ltd created the listing.
Nearby Schools
| Name | Type | Ofsted | Distance |
|---|---|---|---|
| Alexandra Park Primary School | Community School | Outstanding | 0.35 KM |
| Lark Hill Nursery School | Local Authority Nursery School | Outstanding | 0.47 KM |
| Lark Hill Primary School | Community School | Requires improvement | 0.47 KM |
| Stockport Academy | Academy Sponsor Led | Good | 0.49 KM |
| Bridge Hall Primary School | Community School | Good | 1.14 KM |
Images
Nearby Streets
| Name | Average Price | Average Sqft | Distance |
|---|---|---|---|
| Waverley Road | £ 0 | 0 | 0.00 KM |
| Alandale Road | £ 0 | 0 | 0.00 KM |
| Pangbourne Close | £ 300,000 | 0 | 0.00 KM |
| Cypress Close | £ 0 | 0 | 0.00 KM |
| Bennett Street | £ 130,000 | 0 | 0.00 KM |
Nearby Transport
| Name | NLC | TLC | Distance |
|---|---|---|---|
| Stockport | 2771 | SPT | 1.89 KM |
| Heaton Chapel | 2861 | HTC | 2.76 KM |
| Cheadle Hulme | 2870 | CHU | 2.94 KM |
| Davenport | 2770 | DVN | 3.12 KM |
| Woodsmoor | 2773 | WSR | 4.42 KM |
Nearby Listings
| Address | Price | Type | Score | Distance |
|---|---|---|---|---|
| St. Lesmo Road, Edgeley | £ 260,000 | BUY | 5 / 10 | 0.00 KM |
| St. Lesmo Road, Edgeley | £ 260,000 | BUY | Unknown | 0.06 KM |
| St. Lesmo Road, Edgeley | £ 400,000 | BUY | 7 / 10 | 0.06 KM |
| St. Lesmo Road, Stockport, SK3 | £ 450,000 | BUY | Unknown | 0.07 KM |
| Ingleton Road,Stockport,SK3 9NR | £ 225,000 | BUY | Unknown | 0.16 KM |
Nearby Properties
| Address | Price | Distance |
|---|---|---|
| 17 St Lesmo Road | £ 300,000 | 0.06 KM |
| 33 St Lesmo Road | £ 365,000 | 0.06 KM |
| 57 St Lesmo Road | £ 395,000 | 0.06 KM |
| 18 St Lesmo Road | £ 250,000 | 0.06 KM |
| 16 St Lesmo Road | £ 326,000 | 0.06 KM |