Newton Place, Park, Glasgow
RE

Newton Place, Park, Glasgow

By Rettie & Co

£ 725,000

Reviews

3 out of 5 stars

Rettie & Co says ..

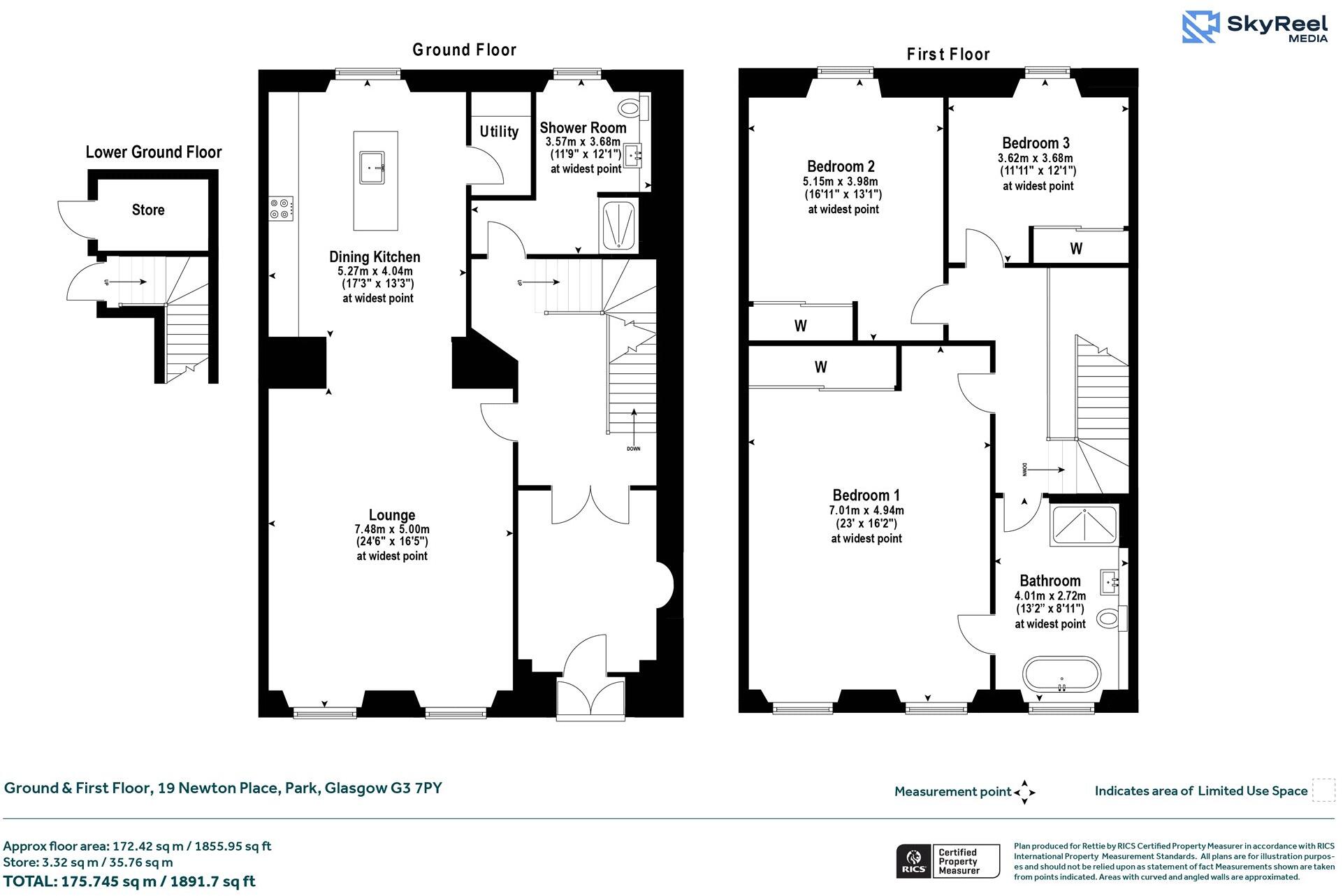
The home for sale is an instantly impressive three-bedroom main door duplex conversion, offering luxurious living space over two levels, with the additional advantages of private gated rear parking area, enclosed rear terrace and cellar storage space. This magnificent property at No. 1...

Property Oracle says ..

This is a spacious 3-bedroom apartment located in the desirable Park area of Glasgow. The property boasts modern interiors, including updated bathrooms and a contemporary kitchen. The apartment also features a garden, adding to its appeal. While the location is well-connected with nearby transportation links and local amenities, the list price of £725,000 appears high compared to the average price per square foot in the area. Overall, this property offers a blend of modern living in a sought-after location, but potential buyers may need to consider the price in relation to comparable properties.

Therefore, we give this property 7 / 10. *Disclaimer: This is our option and does constitute a recommendation or financial advice. Do your own research. *

Price
5
Condition
9
Location
8
Land
6
Bedrooms
3
Bathrooms
2
Sqft (est)
1,891.70

The heatmap indicates the level of crime in the area. The color of the heatmap indicates the crime severity and recency.

Metrics Year-on-Year

Average area value
187,350.00 £
Decreased by 5.41 %
from 198,063.00 £
Est sale value
476,708.40 £
Increased by 16.13 %
from 410,498.90 £
Average area rental value
1,626.00 £/mo
Increased by 1.75 %
from 1,598.00 £/mo
Est letting value
3,783.40 £/mo
Increased by 100.00 %
from 1,891.70 £/mo
Est rental Yield
10.41 %
Increased by 7.54 %
from 9.68 %
Crime Rate
0.00 %
from 0.00 %

Agent Activity

  • Rettie & Co created the listing.

Images

Picture No. 43 Picture No. 42 Picture No. 50 Picture No. 48 Picture No. 51 Picture No. 34 Picture No. 35 Picture No. 44 Picture No. 45 Picture No. 46 Picture No. 47 Picture No. 55 Picture No. 56 Picture No. 36 Picture No. 38 Picture No. 67 Picture No. 61 Picture No. 59 Picture No. 60 Picture No. 63 Picture No. 62 Picture No. 16 Picture No. 64 Picture No. 02 Picture No. 03 Picture No. 05 Picture No. 04 Picture No. 06 Picture No. 07 Picture No. 08 Picture No. 09 Picture No. 11 Picture No. 18 Picture No. 13 Picture No. 15 Picture No. 21 Picture No. 20 Picture No. 22 Picture No. 23 Picture No. 24 Picture No. 28 Picture No. 25 Picture No. 27 Picture No. 29 Picture No. 30 Picture No. 31 Picture No. 32 Picture No. 12 Picture No. 37

Nearby Streets

NameAverage PriceAverage SqftDistance
Newton Place £ 000.00 KM
Woodside Place £ 365,00000.00 KM
Woodside Terrace £ 000.00 KM
Woodside Crescent £ 1,750,00000.00 KM
Newton Terrace £ 215,00000.00 KM

Nearby Transport

NameNLCTLCDistance
Charing Cross (Glasgow)9911CHC0.46 KM
Anderston9965AND0.79 KM
Exhibition Centre (Glasgow)9914EXG1.24 KM
Glasgow Central9813GLC1.92 KM
Glasgow Queen Street9950GLQ2.49 KM

Nearby Listings

AddressPriceTypeScoreDistance
Newton Place, Park, Glasgow £ 725,000BUY7 / 100.00 KM
Newton Place, Park, G3 £ 340,000BUY7 / 100.01 KM
8 Woodside Place, Park, G3 £ 510,000BUYUnknown0.09 KM
2/2A 38 Berkeley Street, Charing Cross, G3 7DW £ 249,000BUYUnknown0.13 KM
17 Woodside Place, Park, G3 £ 310,000BUY6 / 100.13 KM