M
Guest Avenue, Emersons Green, Bristol
By M Coleman Estate Agents
£ 350,000
Reviews
3 out of 5 stars
M Coleman Estate Agents says ..
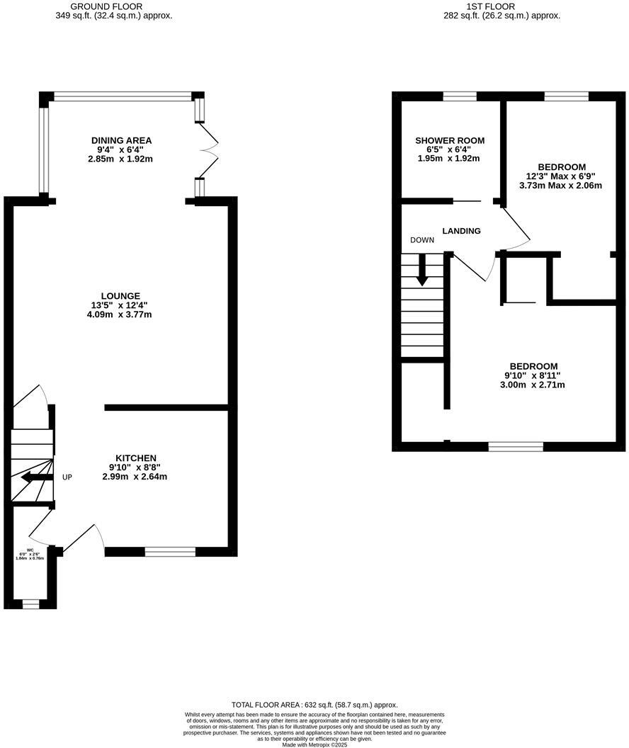
M.Coleman are delighted to present for sale this stunning two-bedroom semi-detached home. A true gem offering a sophisticated and thoughtfully designed interior that perfectly blends modern convenience with stylish living. The ground floor has been cleverly reconfigured to provide a stunning ...
Property Oracle says ..
Therefore, we give this property 7 / 10. *Disclaimer: This is our option and does constitute a recommendation or financial advice. Do your own research. *
- Price
- 6
- Condition
- 8
- Location
- 7
- Land
- 7
- Bedrooms
- 2
- Bathrooms
- 1
- Sqft (est)
- 518.80
The heatmap indicates the level of crime in the area. The color of the heatmap indicates the crime severity and recency.
Metrics Year-on-Year
- Average area value
- 399,497.00 £Decreased by 1.14 %
- Est sale value
- 230,866.00 £Increased by 19.62 %
- Average area rental value
- 1,402.00 £/moDecreased by 1.61 %
- Est letting value
- 518.80 £/moUnchanged by 0.00 %
- Est rental Yield
- 4.21 %Decreased by 0.47 %
- Crime Rate
- 5.00 %Unchanged by 0.00 %
from 404,099.00 £
from 192,993.60 £
from 1,425.00 £/mo
from 518.80 £/mo
from 4.23 %
from 5.00 %
Agent Activity
M Coleman Estate Agents created the listing.
Nearby Schools
| Name | Type | Ofsted | Distance |
|---|---|---|---|
| Emersons Green Primary School | Community School | Good | 0.46 KM |
| Blackhorse Primary School | Community School | Good | 0.66 KM |
| Barley Close Community Primary School | Community School | Good | 1.06 KM |
| Mangotsfield Church Of England Voluntary Controlled Primary School | Voluntary Controlled School | Outstanding | 1.08 KM |
| Mangotsfield Children'S Centre | Children's Centre Linked Site | 1.17 KM |
Images
Nearby Streets
| Name | Average Price | Average Sqft | Distance |
|---|---|---|---|
| Saint Lukes Close | £ 0 | 0 | 0.00 KM |
| Cherry Grove | £ 0 | 0 | 0.00 KM |
| Feynman Way (North) | £ 0 | 0 | 0.00 KM |
| Kingston Close | £ 450,000 | 0 | 0.00 KM |
| Barn Close | £ 0 | 0 | 0.00 KM |
Nearby Transport
| Name | NLC | TLC | Distance |
|---|---|---|---|
| Bristol Parkway | 3230 | BPW | 6.91 KM |
| Yate | 3380 | YAE | 7.44 KM |
| Keynsham | 3237 | KYN | 8.76 KM |
| Filton Abbey Wood | 3235 | FIT | 8.91 KM |
| Patchway | 3213 | PWY | 9.49 KM |
Nearby Listings
| Address | Price | Type | Score | Distance |
|---|---|---|---|---|
| Guest Avenue, Emersons Green, Bristol | £ 350,000 | BUY | 7 / 10 | 0.00 KM |
| Meadgate, Emersons Green, Bristol | £ 425,000 | BUY | Unknown | 0.08 KM |
| Guest Avenue, Emersons Green, Bristol | £ 325,000 | BUY | 6 / 10 | 0.18 KM |
| Cousins Way, Emersons Green, Bristol, BS16 7DG | £ 375,000 | BUY | 6 / 10 | 0.21 KM |
| Cyrus Court, Emersons Green, Bristol, Gloucestershire, BS16 | £ 525,000 | BUY | 6 / 10 | 0.23 KM |
Nearby Properties
| Address | Price | Distance |
|---|---|---|
| 81 Meadgate | £ 263,000 | 0.09 KM |
| 77 Meadgate | £ 165,000 | 0.09 KM |
| 55 Meadgate | £ 205,000 | 0.09 KM |
| 61 Meadgate | £ 235,000 | 0.09 KM |
| 69 Meadgate | £ 250,000 | 0.09 KM |