Rushmore Road, London,Clapton,Hackney,Milfields, E5
By Dimension Estates
£ 495,000
Reviews
2 out of 5 stars
Dimension Estates says ..
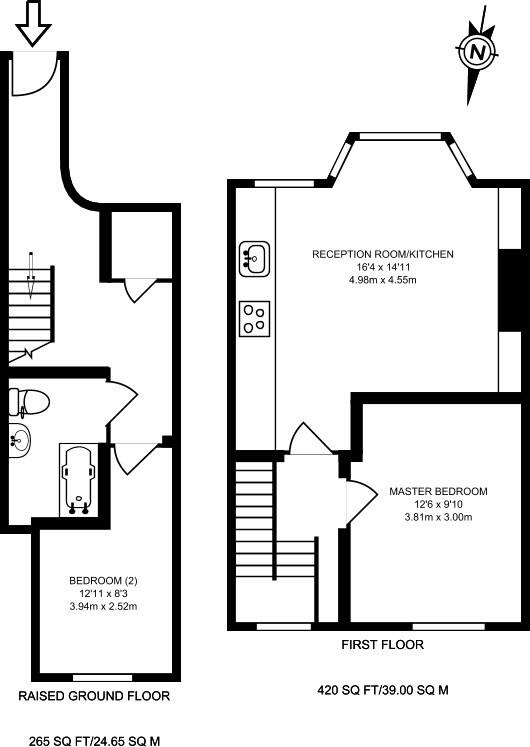
Available for sale is this fantastic period maisonette flat forming part of this modern Victorian style residence adjacent to famous Chatsworth Road. Boasting bright and spacious interiors, offering a wealth of amenities on your doorstep boasts high ceilings with original period features.
Property Oracle says ..
This maisonette is located in Clapton, Hackney, a popular area of East London. The property itself is a traditional style maisonette, benefitting from a good-sized living area with a fireplace and bay window. The kitchen is modern and well-equipped. The bathroom is clean and functional. There is also a second bedroom. The property benefits from being close to several highly-rated primary schools, and is within walking distance to several London Overground stations, providing easy access to the city centre. However, the property lacks a garden and the list price is slightly above the average price per square foot for the area, although below the average house price. Given the location, amenities, and proximity to transport links, this property could be a good investment, particularly for first-time buyers or those looking for a property in a convenient location.
Therefore, we give this property 5 / 10. *Disclaimer: This is our option and does constitute a recommendation or financial advice. Do your own research. *
- Price
- 6
- Condition
- 7
- Location
- 8
- Land
- 1
- Bedrooms
- 2
- Bathrooms
- 1
- Sqft (est)
- 685.12
The heatmap indicates the level of crime in the area. The color of the heatmap indicates the crime severity and recency.
Metrics Year-on-Year
- Average area value
- 786,667.00 £Decreased by 0.96 %
- Est sale value
- 516,580.48 £Decreased by 11.29 %
- Average area rental value
- 2,720.00 £/moDecreased by 8.48 %
- Est letting value
- 1,370.24 £/moDecreased by 33.33 %
- Est rental Yield
- 4.15 %Decreased by 7.57 %
- Crime Rate
- 9.00 %Unchanged by 0.00 %
Agent Activity
Dimension Estates created the listing.
Nearby Schools
| Name | Type | Ofsted | Distance |
|---|---|---|---|
| Rushmore Primary School | Community School | Good | 0.35 KM |
| Mandeville Primary School | Community School | Good | 0.52 KM |
| Daubeney Primary School | Community School | Requires improvement | 0.68 KM |
| Daubeney Children'S Centre | Children's Centre | 0.71 KM | |
| Millfields Children'S Centre | Children's Centre | 0.73 KM |
Images
Nearby Streets
| Name | Average Price | Average Sqft | Distance |
|---|---|---|---|
| Thyme Walk | £ 0 | 0 | 0.00 KM |
| Fisher Close | £ 0 | 0 | 0.00 KM |
| Chatsworth Road | £ 0 | 0 | 0.00 KM |
| Fletching Road | £ 0 | 0 | 0.00 KM |
| Chowdhury Walk | £ 625,000 | 0 | 0.00 KM |
Nearby Transport
| Name | NLC | TLC | Distance |
|---|---|---|---|
| Homerton | 6979 | HMN | 0.89 KM |
| Lea Bridge | 6927 | LEB | 1.51 KM |
| Hackney Central | 6977 | HKC | 1.61 KM |
| Clapton | 6926 | CPT | 1.65 KM |
| Hackney Downs | 6867 | HAC | 2.01 KM |
Nearby Listings
| Address | Price | Type | Score | Distance |
|---|---|---|---|---|
| Rushmore Road, London,Clapton,Hackney,Milfields, E5 | £ 495,000 | BUY | 5 / 10 | 0.00 KM |
| Rushmore Road, London | £ 1,125,000 | BUY | Unknown | 0.00 KM |
| Rushmore Road, London, E5 | £ 950,000 | BUY | Unknown | 0.02 KM |
| Rushmore Road, E5 | £ 1,300,000 | BUY | 7 / 10 | 0.06 KM |
| Blurton Road, Homerton, London, E5 | £ 1,350,000 | BUY | Unknown | 0.07 KM |
Nearby Properties
| Address | Price | Distance |
|---|---|---|
| 145 Rushmore Road | £ 388,000 | 0.01 KM |
| 137a Rushmore Road | £ 310,000 | 0.01 KM |
| 153 Rushmore Road | £ 1,150,000 | 0.01 KM |
| 133b Rushmore Road | £ 190,000 | 0.01 KM |
| 129 Rushmore Road | £ 185,000 | 0.01 KM |