Queen Street, Sandhurst, Cranbrook, TN18
By BTF Partnership
£ 375,000
Reviews
3 out of 5 stars
BTF Partnership says ..
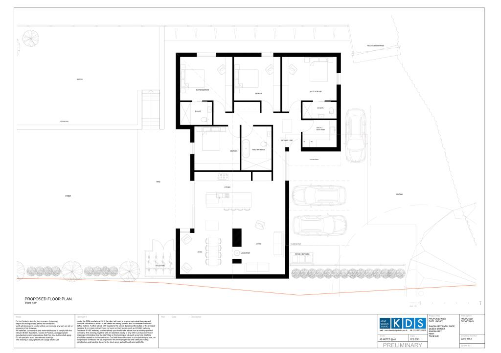
Consent for the redevelopment of a single detached former farm shop site to a 4 bedroom residential dwelling with easy access to local facilities in a sought after location in the High Weald.
Property Oracle says ..
This property in Sandhurst, Kent, presents a unique opportunity. It’s a development project involving the conversion of a former farm shop into a four-bedroom detached house. The proposed design, as shown in the architectural drawings, indicates a contemporary style with a focus on modern living. The location offers a desirable balance between village life and access to nearby Cranbrook. The presence of a garden, though the exact size is unspecified, is a desirable feature. However, it’s crucial to note that the property is under construction; therefore, buyers should account for completion timelines and associated costs. The listing price seems reasonably competitive when compared with other properties in the area; however, without concrete details about square footage and a comparison to similar new-builds, it’s difficult to definitively determine value. Furthermore, it is important to examine local council planning documents to evaluate the final build plans and confirm planning permission. A viewing of the site will help buyers to assess its suitability for them.
Therefore, we give this property 6 / 10. *Disclaimer: This is our option and does constitute a recommendation or financial advice. Do your own research. *
- Price
- 7
- Condition
- 6
- Location
- 7
- Land
- 4
- Bedrooms
- 4
- Bathrooms
- 0
The heatmap indicates the level of crime in the area. The color of the heatmap indicates the crime severity and recency.
Metrics Year-on-Year
- Average area value
- 786,875.00 £Increased by 13.64 %
- Average area rental value
- 1,549.00 £/moDecreased by 7.30 %
- Est rental Yield
- 2.36 %Decreased by 18.62 %
- Crime Rate
- 6.00 %Unchanged by 0.00 %
Agent Activity
BTF Partnership created the listing.
Nearby Schools
| Name | Type | Ofsted | Distance |
|---|---|---|---|
| Sandhurst Primary School | Community School | Good | 1.23 KM |
| St Ronan'S School | Other Independent School | 3.15 KM | |
| Bodiam Church Of England Primary School | Voluntary Controlled School | Good | 3.49 KM |
| Hawkhurst Church Of England Primary School | Voluntary Controlled School | Good | 4.75 KM |
| Benenden Church Of England Primary School | Voluntary Controlled School | Good | 4.77 KM |
Images
Nearby Streets
| Name | Average Price | Average Sqft | Distance |
|---|---|---|---|
| Megrims Hill | £ 375,000 | 0 | 0.00 KM |
| The Hopyard | £ 1,150,000 | 0 | 0.00 KM |
| Tanyard | £ 0 | 0 | 0.00 KM |
| The Coomes | £ 0 | 0 | 0.00 KM |
| Millers Meadow | £ 0 | 0 | 0.00 KM |
Nearby Listings
| Address | Price | Type | Score | Distance |
|---|---|---|---|---|
| Queen Street, Sandhurst, Cranbrook, TN18 | £ 375,000 | BUY | 6 / 10 | 0.00 KM |
| Sponden Lane, Sandhurst, Kent, TN18 5NR | £ 1,100,000 | BUY | 7 / 10 | 0.34 KM |
| Shared Ownership In Sandhurst | £ 90,000 | BUY | 6 / 10 | 0.45 KM |
| With A South West Facing Garden In Sandhurst | £ 295,000 | BUY | 7 / 10 | 0.53 KM |
| Bodiam Road, Sandhurst | £ 1,000,000 | BUY | 8 / 10 | 0.57 KM |
Nearby Properties
| Address | Price | Distance |
|---|---|---|
| 20 Stream Pit Lane | £ 244,000 | 0.41 KM |
| 30 Stream Pit Lane | £ 185,000 | 0.41 KM |
| 12 Stream Pit Lane | £ 300,000 | 0.41 KM |
| 2 Stream Pit Lane | £ 363,000 | 0.41 KM |
| 10 Stream Pit Lane | £ 169,000 | 0.41 KM |