KN
Searle House, St John's Wood NW8
By Knight Frank
£ 2,750,000
Reviews
3 out of 5 stars
Knight Frank says ..
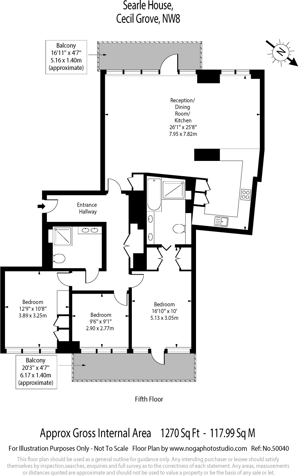
An excellently presented apartment with a private balcony. Set on the fourth floor, the property benefits from a private balcony with stunning views and comprises a principal bedroom with en suite bathroom, two further bedrooms, a family bathroom and an open reception room and kitchen. • Two te...
Property Oracle says ..
Therefore, we give this property 6 / 10. *Disclaimer: This is our option and does constitute a recommendation or financial advice. Do your own research. *
- Price
- 4
- Condition
- 9
- Location
- 9
- Land
- 4
- Bedrooms
- 3
- Bathrooms
- 2
- Sqft (est)
- 1,237.42
The heatmap indicates the level of crime in the area. The color of the heatmap indicates the crime severity and recency.
Metrics Year-on-Year
- Average area value
- 952,139.00 £Decreased by 44.31 %
- Est sale value
- 1,307,952.94 £Decreased by 13.08 %
- Average area rental value
- 2,414.00 £/moDecreased by 22.03 %
- Est letting value
- 2,474.84 £/moUnchanged by 0.00 %
- Est rental Yield
- 3.04 %Increased by 40.09 %
- Crime Rate
- 1.00 %Unchanged by 0.00 %
from 1,709,750.00 £
from 1,504,702.72 £
from 3,096.00 £/mo
from 2,474.84 £/mo
from 2.17 %
from 1.00 %
Agent Activity
Knight Frank created the listing.
Nearby Schools
| Name | Type | Ofsted | Distance |
|---|---|---|---|
| Saint Christina'S School | Other Independent School | 0.06 KM | |
| St Paul'S Church Of England Primary School | Voluntary Aided School | Good | 0.60 KM |
| Robinsfield Infant School | Community School | Good | 0.65 KM |
| Barrow Hill Junior School | Community School | Good | 0.69 KM |
| St John'S Wood Pre-Preparatory School | Other Independent School | Good | 0.77 KM |
Images
Nearby Streets
| Name | Average Price | Average Sqft | Distance |
|---|---|---|---|
| Titchfield Road | £ 0 | 0 | 0.00 KM |
| Rudgwick Terrace | £ 4,950,000 | 0 | 0.00 KM |
| Primrose Hill Road | £ 0 | 0 | 0.00 KM |
| Lyttleton Close | £ 0 | 0 | 0.00 KM |
| Lord's Rounabout | £ 0 | 0 | 0.00 KM |
Nearby Transport
| Name | NLC | TLC | Distance |
|---|---|---|---|
| Marylebone | 1475 | MYB | 1.54 KM |
| South Hampstead | 1451 | SOH | 1.75 KM |
| Hampstead Heath | 1413 | HDH | 2.11 KM |
| Kentish Town West | 1449 | KTW | 2.22 KM |
| Gospel Oak | 1409 | GPO | 2.57 KM |
Nearby Listings
| Address | Price | Type | Score | Distance |
|---|---|---|---|---|
| Searle House, St John's Wood NW8 | £ 2,750,000 | BUY | 6 / 10 | 0.00 KM |
| St. Edmunds Terrace, London, NW8 | £ 3,000,000 | BUY | Unknown | 0.02 KM |
| Searle House, Cecil Grove, St John's Wood, London, NW8 | £ 1,095,000 | BUY | 6 / 10 | 0.02 KM |
| Kingsland, Broxwood Way, St John's Wood, NW8 | £ 495,000 | BUY | Unknown | 0.06 KM |
| Cecil Grove, St John's Wood, London | £ 2,375,000 | BUY | 6 / 10 | 0.06 KM |
Nearby Properties
| Address | Price | Distance |
|---|---|---|
| 14c Avenue Road | £ 1,210,000 | 0.10 KM |
| 14f Avenue Road | £ 1,425,000 | 0.10 KM |
| 14d Avenue Road | £ 675,000 | 0.10 KM |
| 14g Avenue Road | £ 2,100,000 | 0.13 KM |
| 34 St Edmunds Terrace | £ 517,500 | 0.15 KM |