Western Way, Buttershaw, Bradford, BD6
By Robert Watts
£ 250,000
Reviews
3 out of 5 stars
Robert Watts says ..
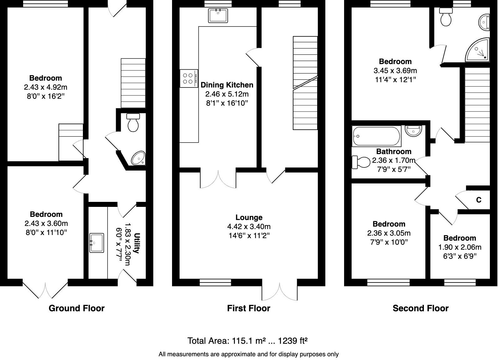
STUNNING EXAMPLE OF ITS TYPE! VERSATILE LIVING ACCOMMODATION! Only upon internal inspection can this delightful MODERN INNER TOWN HOUSE be fully appreciated! Exceptional with the presentation and benefitting from a garage conversion which allows the ground floor to be used as a separate area for ...
Property Oracle says ..
This four-bedroom, two-bathroom property located on Western Way in Buttershaw, Bradford, presents itself as a well-maintained and recently updated home. The interior is stylish and modern, with a contemporary kitchen and bathrooms. The property benefits from a small, but well-presented, garden with a decked area and patio. The location offers access to local schools and transport links, including proximity to the M62 motorway. While Buttershaw may not be the most sought-after area of Bradford, the property’s condition and recent upgrades are notable. The list price appears to be competitive within the local market, although a precise valuation is difficult without more comprehensive data on the average price per square foot for similar properties in the immediate vicinity. Overall, the property presents a good opportunity for a family or individual seeking a modern, well-maintained home in a convenient location. Potential buyers should conduct thorough research into the Buttershaw area to ensure it meets their specific needs and preferences.
Therefore, we give this property 6 / 10. *Disclaimer: This is our option and does constitute a recommendation or financial advice. Do your own research. *
- Price
- 7
- Condition
- 9
- Location
- 6
- Land
- 4
- Bedrooms
- 4
- Bathrooms
- 2
- Sqft (est)
- 1,238.93
The heatmap indicates the level of crime in the area. The color of the heatmap indicates the crime severity and recency.
Metrics Year-on-Year
- Average area value
- 856,250.00 £Increased by 15.74 %
- Est sale value
- 879,640.30 £Increased by 21.37 %
- Average area rental value
- 2,000.00 £/moDecreased by 15.25 %
- Est letting value
- 1,238.93 £/moUnchanged by 0.00 %
- Est rental Yield
- 2.80 %Decreased by 26.89 %
- Crime Rate
- 14.00 %Unchanged by 0.00 %
Agent Activity
Robert Watts created the listing.
Nearby Schools
| Name | Type | Ofsted | Distance |
|---|---|---|---|
| Farfield Primary And Nursery School | Community School | Good | 0.54 KM |
| Woodside Academy | Academy Converter | Good | 0.89 KM |
| Buttershaw Business & Enterprise College Academy | Academy Sponsor Led | Requires improvement | 0.89 KM |
| Broadbeck Learning Centre | Other Independent Special School | Good | 0.98 KM |
| Woodside Children'S Centre | Children's Centre | 0.98 KM |
Images
Nearby Streets
| Name | Average Price | Average Sqft | Distance |
|---|---|---|---|
| Ullswater Drive | £ 164,995 | 0 | 0.00 KM |
| Waverton Green | £ 0 | 0 | 0.00 KM |
| Albion Street | £ 150,000 | 0 | 0.00 KM |
| Acorn Close | £ 155,000 | 0 | 0.00 KM |
| Alderholt Drive | £ 0 | 0 | 0.00 KM |
Nearby Transport
| Name | NLC | TLC | Distance |
|---|---|---|---|
| Low Moor | 8416 | LMR | 4.28 KM |
| Bradford Interchange | 8345 | BDI | 5.93 KM |
| Bradford Forster Square | 8346 | BDQ | 6.10 KM |
| Brighouse | 8514 | BGH | 6.73 KM |
| Frizinghall | 8556 | FZH | 7.41 KM |
Nearby Listings
| Address | Price | Type | Score | Distance |
|---|---|---|---|---|
| Western Way, Buttershaw, Bradford, BD6 | £ 250,000 | BUY | 6 / 10 | 0.00 KM |
| Wellgarth Gardens, Off Halifax Road, Bradford, BD6 | £ 215,000 | BUY | 6 / 10 | 0.16 KM |
| Collinfield Rise,Bradford | £ 90,000 | BUY | 5 / 10 | 0.17 KM |
| Collinfield Rise,Bradford | £ 90,000 | BUY | 5 / 10 | 0.17 KM |
| Collinfield Rise,Bradford | £ 90,000 | BUY | 6 / 10 | 0.17 KM |
Nearby Properties
| Address | Price | Distance |
|---|---|---|
| 40 Western Way | £ 180,000 | 0.01 KM |
| 48 Western Way | £ 140,500 | 0.01 KM |
| 2 Sunshine Court | £ 87,500 | 0.04 KM |
| 1 Sunshine Court | £ 75,000 | 0.04 KM |
| 11 Allerby Green | £ 93,500 | 0.07 KM |