Whiphill Top Lane, Branton
By Portfield, Garrard & Wright
£ 475,000
Reviews
3 out of 5 stars
Portfield, Garrard & Wright says ..
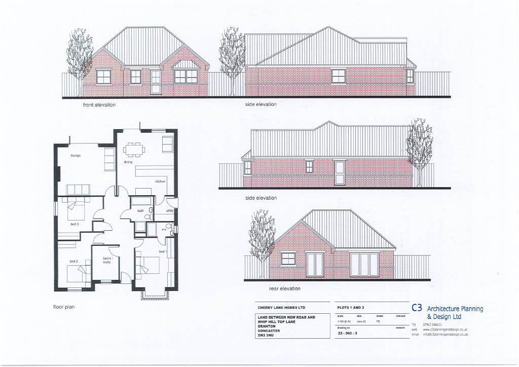
PLOT 1 On completion the property will be finished to a high standard being a 3/4 bedroom New build detached bungalow having contemporary fixtures and fittings with open plan dining kitchen and fitted appliances including oven, hob, dishwasher, microwave, handy utility, ensuite to the main bedroo...
Property Oracle says ..
This property listing presents a new detached bungalow in Branton, Doncaster. The marketing materials highlight modern, contemporary fixtures and fittings, an open-plan dining kitchen, and an en-suite to the master bedroom. It is described as a 3⁄4 bedroom property. The provided images of the kitchen suggest a high standard of finish with modern appliances. The nearby listings show a range of property prices which would suggest that this property is in a relatively average range, however due to the lack of information regarding the size and final build this can not be definitively stated. Given its new-build status, the property’s condition is expected to be excellent. The immediate proximity to Branton St Wilfrid’s Church of England Primary School is a positive for families. The area offers a balance of rural tranquility and convenient access to Doncaster. The lack of detailed plot size information and the absence of external images of the completed property prevent a more complete evaluation. Nearby similar properties are selling for comparable prices, with some larger houses within a similar range. However, lacking the precise plot size is a critical omission in assessing the overall value.
Therefore, we give this property 6 / 10. *Disclaimer: This is our option and does constitute a recommendation or financial advice. Do your own research. *
- Price
- 7
- Condition
- 8
- Location
- 7
- Land
- 2
- Bedrooms
- 4
- Bathrooms
- 2
- Sqft (est)
- 930.00
The heatmap indicates the level of crime in the area. The color of the heatmap indicates the crime severity and recency.
Metrics Year-on-Year
- Average area value
- 301,786.00 £Decreased by 1.95 %
- Est sale value
- 310,620.00 £Increased by 25.56 %
- Average area rental value
- 1,172.00 £/moIncreased by 19.71 %
- Est letting value
- 930.00 £/mo
- Est rental Yield
- 4.66 %Increased by 21.99 %
- Crime Rate
- 26.00 %Unchanged by 0.00 %
Agent Activity
Portfield, Garrard & Wright created the listing.
Nearby Schools
| Name | Type | Ofsted | Distance |
|---|---|---|---|
| Branton St Wilfrid'S Church Of England Primary School | Voluntary Aided School | Good | 0.78 KM |
| Auckley School | Academy Converter | Good | 2.03 KM |
| New College Doncaster | Free Schools 16 To 19 | 2.12 KM | |
| The Hayfield School | Academy Converter | Good | 2.12 KM |
| Hayfield Lane Primary School | Community School | Good | 2.50 KM |
Images
Nearby Streets
| Name | Average Price | Average Sqft | Distance |
|---|---|---|---|
| Old Farm Way | £ 0 | 0 | 0.00 KM |
| Woodview | £ 0 | 0 | 0.00 KM |
| Conway Drive | £ 325,000 | 0 | 0.00 KM |
| Quarry Lane | £ 0 | 0 | 0.00 KM |
| Myrtle Grove | £ 290,000 | 0 | 0.00 KM |
Nearby Transport
| Name | NLC | TLC | Distance |
|---|---|---|---|
| Kirk Sandall | 6527 | KKS | 7.61 KM |
| Hatfield And Stainforth | 6528 | HFS | 8.83 KM |
Nearby Listings
| Address | Price | Type | Score | Distance |
|---|---|---|---|---|
| Whiphill Top Lane, Branton | £ 475,000 | BUY | 6 / 10 | 0.00 KM |
| Whiphill Top Lane, Branton, Doncaster | £ 500,000 | BUY | 6 / 10 | 0.02 KM |
| Whiphill Top Lane, Branton, Doncaster | £ 595,000 | BUY | Unknown | 0.12 KM |
| Whiphill Top Lane , Branton, Doncaster, DN3 | £ 475,000 | BUY | 7 / 10 | 0.21 KM |
| 2 Chapel Lane, Branton, Doncaster, DN3 | £ 255,000 | BUY | 7 / 10 | 0.21 KM |
Nearby Properties
| Address | Price | Distance |
|---|---|---|
| Pentewan | £ 183,000 | 0.00 KM |
| Avalon | £ 182,500 | 0.00 KM |
| Spindlewood | £ 230,000 | 0.00 KM |
| Sunnydene | £ 145,000 | 0.00 KM |
| Lincoln | £ 200,000 | 0.00 KM |