Stags says ..
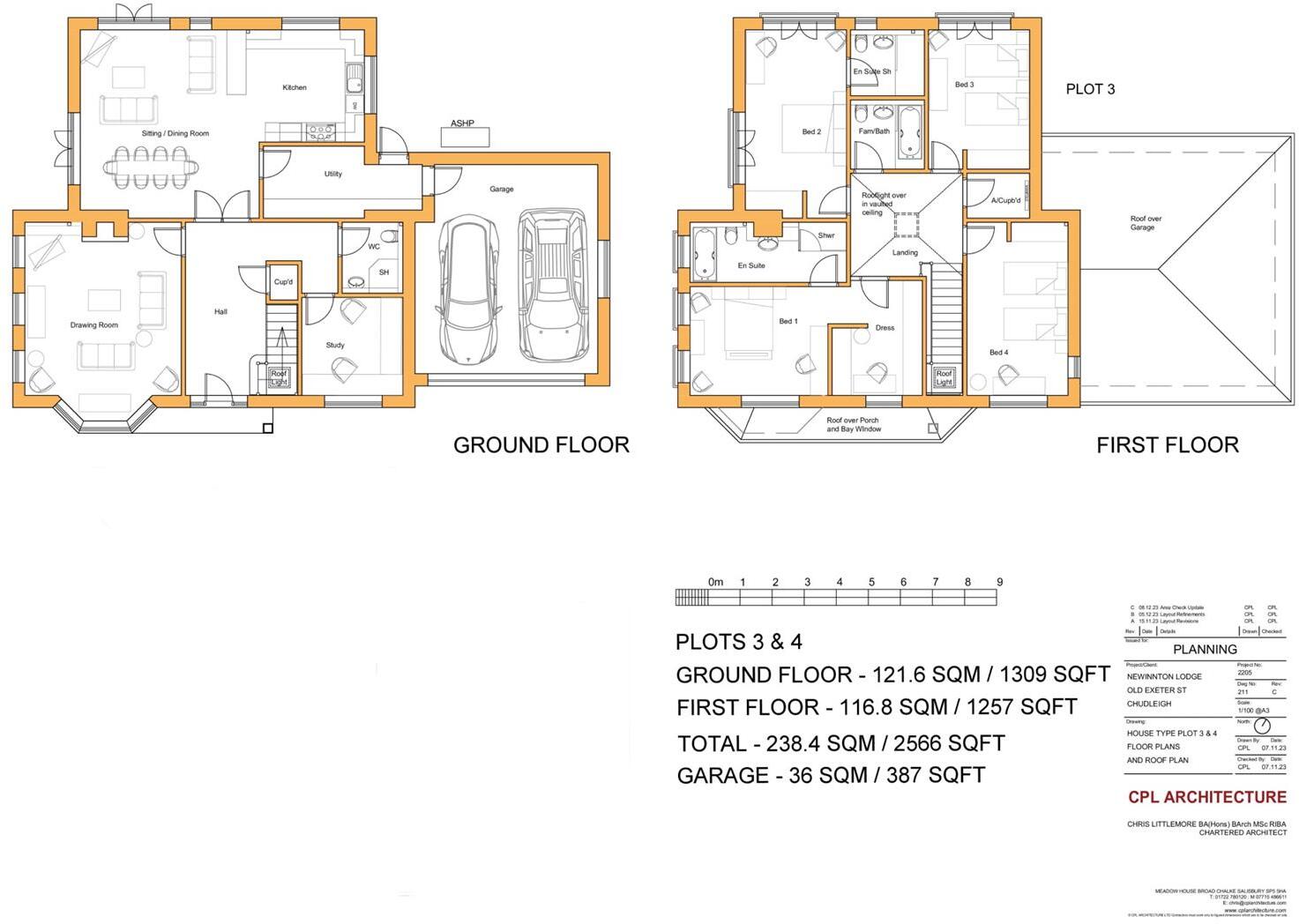
A superb development site with planning for 4 impressive detached executive homes on the edge of Chudleigh with beautiful far reaching views.
Property Oracle says ..
Therefore, we give this property 6 / 10. *Disclaimer: This is our option and does constitute a recommendation or financial advice. Do your own research. *
- Price
- 4
- Condition
- 0
- Location
- 7
- Land
- 8
- Bedrooms
- 0
- Bathrooms
- 0
- Sqft (est)
- 387.50
- Lot (est)
- 2,566.12
The heatmap indicates the level of crime in the area. The color of the heatmap indicates the crime severity and recency.
Metrics Year-on-Year
- Average area value
- 700,000.00 £Increased by 145.15 %
- Est sale value
- 119,737.50 £Increased by 11.96 %
- Average area rental value
- 600.00 £/moDecreased by 51.02 %
- Est letting value
- 0.00 £/moDecreased by 100.00 %
- Est rental Yield
- 1.03 %Decreased by 80.00 %
- Crime Rate
- 18.00 %Unchanged by 0.00 %
from 285,543.00 £
from 106,950.00 £
from 1,225.00 £/mo
from 387.50 £/mo
from 5.15 %
from 18.00 %
Agent Activity
Stags created the listing.
Nearby Schools
| Name | Type | Ofsted | Distance |
|---|---|---|---|
| Teign Valley Children'S Centre | Children's Centre | 0.29 KM | |
| Chudleigh Church Of England Community Primary School | Voluntary Controlled School | Good | 0.49 KM |
| Chudleigh Knighton Church Of England Primary School | Academy Converter | Good | 4.34 KM |
| Kingsteignton School | Free Schools | Good | 5.84 KM |
| Teign School | Academy Converter | Requires improvement | 5.89 KM |
Images
Nearby Streets
| Name | Average Price | Average Sqft | Distance |
|---|---|---|---|
| Pulins Terrace | £ 265,000 | 0 | 0.00 KM |
| Brookfield Court | £ 460,000 | 0 | 0.00 KM |
| Bottle Bridge Hill | £ 0 | 0 | 0.00 KM |
| Sycamore Way | £ 290,000 | 0 | 0.00 KM |
| Holly Close | £ 290,000 | 0 | 0.00 KM |
Nearby Transport
| Name | NLC | TLC | Distance |
|---|---|---|---|
| Newton Abbot | 3426 | NTA | 8.53 KM |
Nearby Listings
| Address | Price | Type | Score | Distance |
|---|---|---|---|---|
| Chudleigh, Newton Abbot | £ 1,000,000 | BUY | 6 / 10 | 0.00 KM |
| The Retreat, Chudleigh, Newton Abbot | £ 975,000 | BUY | 7 / 10 | 0.02 KM |
| Old Exeter Street, Chudleigh, Newton Abbot | £ 995,000 | BUY | 6 / 10 | 0.03 KM |
| Old Exeter Street, Newton Abbot | £ 200,000 | BUY | 7 / 10 | 0.07 KM |
| Woodway Street, Chudleigh, TQ13 | £ 255,000 | BUY | 6 / 10 | 0.08 KM |
Nearby Properties
| Address | Price | Distance |
|---|---|---|
| 36 Old Exeter Street | £ 173,500 | 0.01 KM |
| 37 Old Exeter Street | £ 190,000 | 0.01 KM |
| 59 Old Exeter Street | £ 320,000 | 0.01 KM |
| 50 Old Exeter Street | £ 230,000 | 0.01 KM |
| 63 Old Exeter Street | £ 250,000 | 0.01 KM |