Gilders Road, Chessington, Surrey. KT9 2AL
By Compass Property & Letting
£ 385,000
Reviews
4 out of 5 stars
Compass Property & Letting says ..
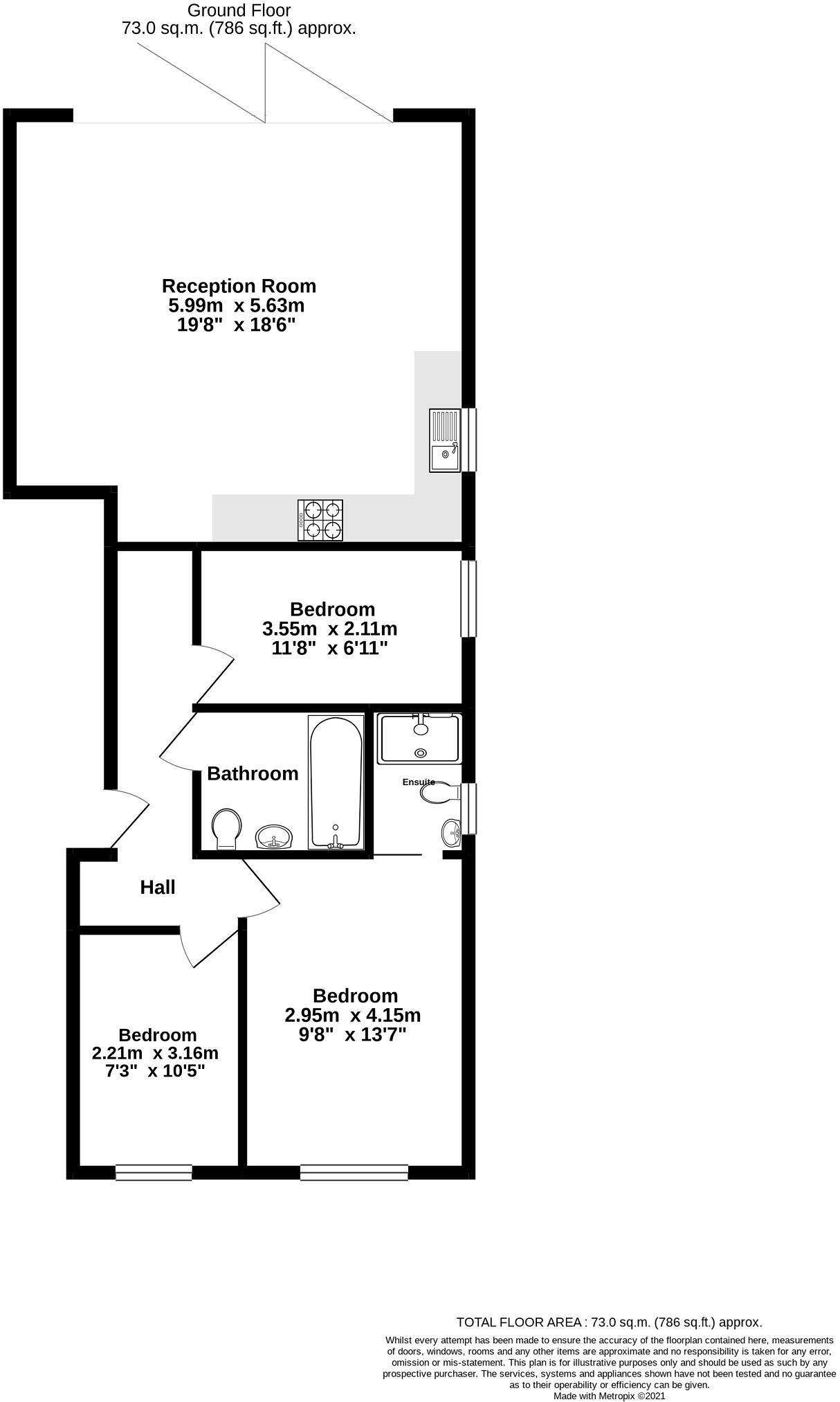
A rarely available three bedroom ground floor flat built approximately four years ago with the added benefit of having direct access to it's own private garden. An ideal first time buy, viewings highly recommended.
Property Oracle says ..
This property is located in Chessington, Surrey, an area with a mix of housing options and amenities. The property itself appears to be in excellent condition, recently renovated or newly built, with modern fixtures and finishes. The presence of a garden is a positive feature, although its size is not specified. The list price is below the average price for the area, but without square footage information, a precise price per square foot comparison cannot be made. However, considering the apparent high quality of the property and its features, the price may represent good value for money. The proximity to several schools and railway stations adds to the property’s appeal.
Therefore, we give this property 8 / 10. *Disclaimer: This is our option and does constitute a recommendation or financial advice. Do your own research. *
- Price
- 8
- Condition
- 9
- Location
- 8
- Land
- 7
- Bedrooms
- 3
- Bathrooms
- 2
- Lot (est)
- 73.00
The heatmap indicates the level of crime in the area. The color of the heatmap indicates the crime severity and recency.
Metrics Year-on-Year
- Average area value
- 376,667.00 £Decreased by 11.42 %
- Average area rental value
- 1,100.00 £/moIncreased by 18.92 %
- Est rental Yield
- 3.50 %Increased by 34.10 %
- Crime Rate
- 8.00 %Unchanged by 0.00 %
Agent Activity
Compass Property & Letting marked this listing as sold.
Compass Property & Letting created the listing.
Nearby Schools
| Name | Type | Ofsted | Distance |
|---|---|---|---|
| Chessington Children'S Centre | Children's Centre | 0.60 KM | |
| Castle Hill Primary School | Academy Converter | Good | 0.60 KM |
| St Mary'S Cofe (Aided) Primary School | Voluntary Aided School | Requires improvement | 0.68 KM |
| Tolworth Girls' School And Sixth Form | Academy Converter | Outstanding | 1.50 KM |
| St Paul'S Cofe Primary School | Voluntary Aided School | Good | 1.62 KM |
Images
Nearby Streets
| Name | Average Price | Average Sqft | Distance |
|---|---|---|---|
| Durbin Road | £ 450,000 | 0 | 0.00 KM |
| The Causeway | £ 500,000 | 0 | 0.00 KM |
| Davis Road | £ 0 | 0 | 0.00 KM |
| Albury Road | £ 325,000 | 0 | 0.00 KM |
| Queen Mary Close | £ 0 | 0 | 0.00 KM |
Nearby Transport
| Name | NLC | TLC | Distance |
|---|---|---|---|
| Chessington North | 5582 | CSN | 0.90 KM |
| Chessington South | 5554 | CSS | 1.76 KM |
| Tolworth | 5573 | TOL | 2.28 KM |
| Surbiton | 5571 | SUR | 3.65 KM |
| Epsom | 5360 | EPS | 4.04 KM |
Nearby Listings
| Address | Price | Type | Score | Distance |
|---|---|---|---|---|
| Gilders Road, Chessington, KT9 | £ 425,000 | BUY | 7 / 10 | 0.08 KM |
| Gilders Road, Chessington, Surrey. KT9 2AD | £ 700,000 | BUY | 7 / 10 | 0.09 KM |
| Juniper Close, CHESSINGTON, Surrey, KT9 | £ 600,000 | BUY | 6 / 10 | 0.12 KM |
| Juniper Close, Chessington | £ 605,000 | BUY | 6 / 10 | 0.13 KM |
| May Close, Chessington, Surrey. KT9 2AP | £ 285,000 | BUY | Unknown | 0.13 KM |
Nearby Properties
| Address | Price | Distance |
|---|---|---|
| 48 Gilders Road | £ 355,000 | 0.00 KM |
| 6 Gilders Road | £ 410,500 | 0.00 KM |
| 38 Gilders Road | £ 345,000 | 0.00 KM |
| 44 Gilders Road | £ 435,000 | 0.00 KM |
| 40 Gilders Road | £ 485,000 | 0.00 KM |