Weston Road, Strood, Rochester, Kent. ME2
By Moxy Property Consultants
£ 335,000
Reviews
3 out of 5 stars
Moxy Property Consultants says ..
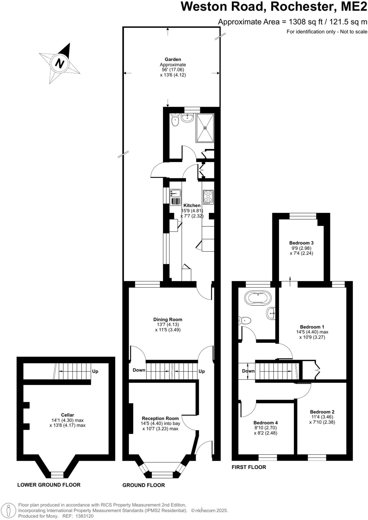
This charming, four bedroom, mid-terrace property presents an excellent opportunity for those seeking a spacious, characterful home with modern comforts. Extending to over 1,300 sq ft, the home offers an impressive amount of living accommodation arranged over multiple levels, making it perfectly ...
Property Oracle says ..
This terraced property on Weston Road, Strood, offers four bedrooms and two bathrooms. The house has a modern kitchen and updated bathrooms, and a garden with paved and artificial grass areas. The property is located near schools and transportation links. The asking price of £335,000 is higher than the average for the area.
Therefore, we give this property 7 / 10. *Disclaimer: This is our option and does constitute a recommendation or financial advice. Do your own research. *
- Price
- 6
- Condition
- 8
- Location
- 7
- Land
- 7
- Bedrooms
- 4
- Bathrooms
- 2
The heatmap indicates the level of crime in the area. The color of the heatmap indicates the crime severity and recency.
Metrics Year-on-Year
- Average area value
- 224,000.00 £Decreased by 29.61 %
- Average area rental value
- 1,116.00 £/moDecreased by 12.40 %
- Est rental Yield
- 5.98 %Increased by 24.58 %
- Crime Rate
- 20.00 %Unchanged by 0.00 %
Agent Activity
Moxy Property Consultants created the listing.
Nearby Schools
| Name | Type | Ofsted | Distance |
|---|---|---|---|
| Gordons Children'S Academy, Junior | Academy Sponsor Led | Good | 0.22 KM |
| Gordons Children'S Academy, Infant | Academy Sponsor Led | Good | 0.22 KM |
| St Nicholas Church Of England Voluntary Controlled Infant School | Voluntary Controlled School | Outstanding | 0.28 KM |
| All Faiths Children'S Academy | Academy Converter | Good | 0.42 KM |
| Gun Lane Children'S Centre | Children's Centre | 0.43 KM |
Images
Nearby Streets
| Name | Average Price | Average Sqft | Distance |
|---|---|---|---|
| Edward Street | £ 0 | 0 | 0.00 KM |
| Kaler Mews | £ 0 | 0 | 0.00 KM |
| Taylor's Lane | £ 0 | 0 | 0.00 KM |
| Cedar Road; Hawthorn Road | £ 300,000 | 0 | 0.00 KM |
| Ash Road | £ 0 | 0 | 0.00 KM |
Nearby Transport
| Name | NLC | TLC | Distance |
|---|---|---|---|
| Strood (Kent) | 5191 | SOO | 1.16 KM |
| Rochester | 5203 | RTR | 2.70 KM |
| Chatham | 5199 | CTM | 4.02 KM |
| Higham | 5202 | HGM | 4.04 KM |
| Cuxton | 5201 | CUX | 4.18 KM |
Nearby Listings
| Address | Price | Type | Score | Distance |
|---|---|---|---|---|
| Weston Road, Strood, Rochester, Kent. ME2 | £ 335,000 | BUY | 7 / 10 | 0.00 KM |
| Weston Road, Strood, Rochester | £ 375,000 | BUY | 7 / 10 | 0.08 KM |
| Bryant Road, Rochester, Kent, | £ 230,000 | BUY | 5 / 10 | 0.09 KM |
| Bryant Road, Strood, Rochester, ME2 3EY | £ 275,000 | BUY | 6 / 10 | 0.09 KM |
| Gordon Road, Rochester, Kent, ME2 | £ 240,000 | BUY | 7 / 10 | 0.10 KM |
Nearby Properties
| Address | Price | Distance |
|---|---|---|
| 91 Weston Road | £ 171,995 | 0.06 KM |
| 111 Weston Road | £ 322,000 | 0.06 KM |
| 99 Weston Road | £ 243,500 | 0.06 KM |
| 119 Weston Road | £ 187,500 | 0.06 KM |
| 81 Weston Road | £ 157,000 | 0.06 KM |