CH
Davy Close, Hebburn, Tyne and Wear, NE31
By Chase Holmes
£ 170,000
Reviews
3 out of 5 stars
Chase Holmes says ..
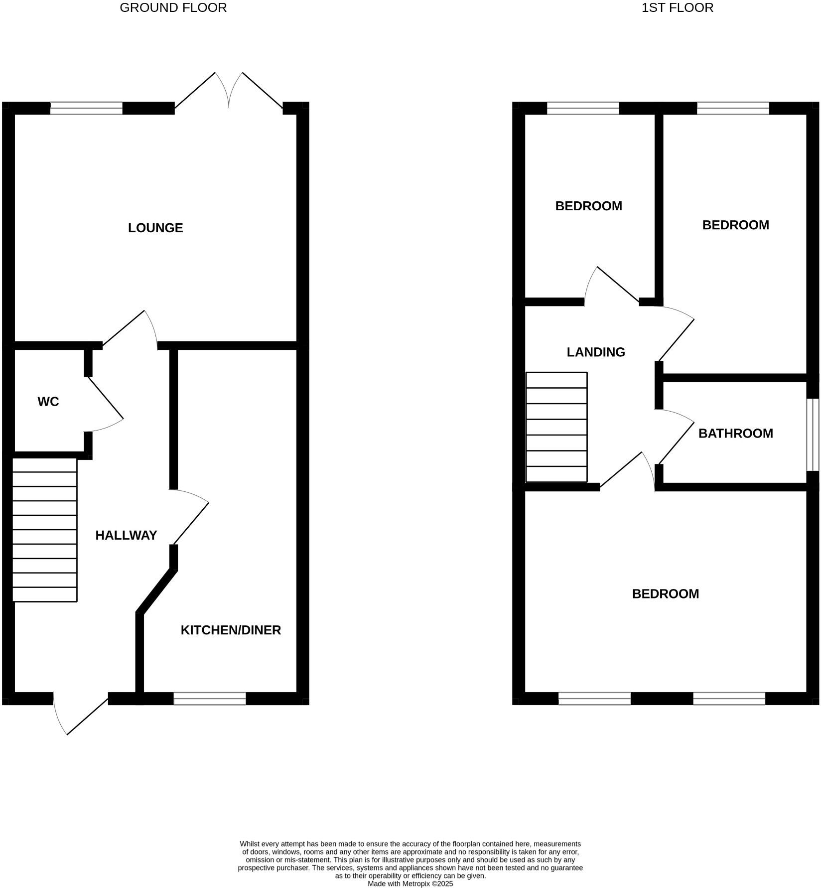
Welcome to this end-terrace house, perfectly situated on Davy Close in Hebburn. This property is an excellent opportunity for families or first-time buyers seeking a comfortable and practical home in a convenient location.
Property Oracle says ..
Therefore, we give this property 7 / 10. *Disclaimer: This is our option and does constitute a recommendation or financial advice. Do your own research. *
- Price
- 9
- Condition
- 8
- Location
- 7
- Land
- 7
- Bedrooms
- 3
- Bathrooms
- 1
- Sqft (est)
- 929.00
The heatmap indicates the level of crime in the area. The color of the heatmap indicates the crime severity and recency.
Metrics Year-on-Year
- Average area value
- 410,714.00 £Increased by 0.52 %
- Est sale value
- 390,180.00 £Increased by 4.48 %
- Average area rental value
- 1,363.00 £/moDecreased by 8.52 %
- Est letting value
- 929.00 £/moUnchanged by 0.00 %
- Est rental Yield
- 3.98 %Decreased by 9.13 %
- Crime Rate
- 11.00 %Unchanged by 0.00 %
from 408,604.00 £
from 373,458.00 £
from 1,490.00 £/mo
from 929.00 £/mo
from 4.38 %
from 11.00 %
Agent Activity
Chase Holmes created the listing.
Nearby Schools
| Name | Type | Ofsted | Distance |
|---|---|---|---|
| St Aloysius Catholic Junior School Academy | Academy Converter | Outstanding | 0.53 KM |
| St Aloysius Catholic Infant School, Hebburn | Academy Converter | 0.57 KM | |
| The Sue Hedley Nursery School | Local Authority Nursery School | Outstanding | 0.62 KM |
| South Tyneside Early Excellence Centre | Children's Centre | 0.64 KM | |
| Groundwork South Tyneside And Newcastle | Special Post 16 Institution | Good | 0.72 KM |
Images
Nearby Streets
| Name | Average Price | Average Sqft | Distance |
|---|---|---|---|
| Shakespeare Avenue | £ 0 | 0 | 0.00 KM |
| Witton Road | £ 0 | 0 | 0.00 KM |
| Coppergate Court | £ 0 | 0 | 0.00 KM |
| Coleridge Square | £ 0 | 0 | 0.00 KM |
| Duchess Gardens | £ 0 | 0 | 0.00 KM |
Nearby Transport
| Name | NLC | TLC | Distance |
|---|---|---|---|
| Heworth | 7766 | HEW | 5.89 KM |
Nearby Listings
| Address | Price | Type | Score | Distance |
|---|---|---|---|---|
| Davy Close, Hebburn, Tyne and Wear, NE31 | £ 170,000 | BUY | 7 / 10 | 0.00 KM |
| Wilkinson Gardens, Hebburn, Tyne and Wear, NE31 1TH | £ 185,000 | BUY | 7 / 10 | 0.08 KM |
| Montrose Crescent, Hebburn | £ 103,750 | BUY | 7 / 10 | 0.11 KM |
| Montrose Crescent, Hebburn | £ 155,000 | BUY | Unknown | 0.11 KM |
| Makendon Street, Hebburn | £ 105,000 | BUY | 6 / 10 | 0.12 KM |
Nearby Properties
| Address | Price | Distance |
|---|---|---|
| 4 Davy Close | £ 136,000 | 0.01 KM |
| 18 Davy Close | £ 145,000 | 0.01 KM |
| 9 Montrose Crescent | £ 181,500 | 0.06 KM |
| 7 Wilkinson Gardens | £ 135,000 | 0.11 KM |
| 5 Wilkinson Gardens | £ 124,950 | 0.11 KM |