Irving Geddes W.S. says ..
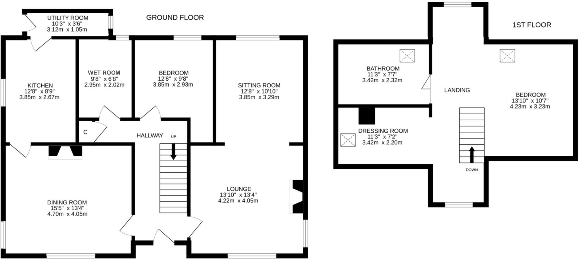
Irving Geddes is delighted to offer for sale a charming detached cottage enjoying large gardens, set within the beautiful Perthshire countryside, close to the iconic Munro Schiehallion, and only 3miles from the picturesque village of Kinloch Rannoch, which sits on the eastern edge of Loch Rannoch.
Property Oracle says ..
Therefore, we give this property 7 / 10. *Disclaimer: This is our option and does constitute a recommendation or financial advice. Do your own research. *
- Price
- 7
- Condition
- 6
- Location
- 0
- Land
- 8
- Bedrooms
- 2
- Bathrooms
- 0
The heatmap indicates the level of crime in the area. The color of the heatmap indicates the crime severity and recency.
Metrics Year-on-Year
- Average area value
- 331,333.00 £Decreased by 2.19 %
- Average area rental value
- 1,088.00 £/moDecreased by 3.97 %
- Est rental Yield
- 3.94 %Decreased by 1.75 %
- Crime Rate
- 0.00 %
from 338,753.00 £
from 1,133.00 £/mo
from 4.01 %
from 0.00 %
Agent Activity
Irving Geddes W.S. created the listing.
Images
Nearby Listings
| Address | Price | Type | Score | Distance |
|---|---|---|---|---|
| PH16 | £ 295,000 | BUY | 7 / 10 | 0.00 KM |